点击蓝字
圆湾绿城项目(Oval Village)——伦敦中心一个独特而优雅的存在,既有世外桃源的安谧,也有着不可思议的便利环境。
地处伦敦老牌居住区与皮姆利科Pimlico隔河相望,坐落在历史氛围浓郁的Kennington肯宁顿,尽享优美的环境,以及宁静优雅的氛围,隶属皇家管理,治安非常好。
项目占地2公顷的土地上,集现代化公寓住宅、景观绿地、历史建筑、商铺配套等于一身,为居民们提供了极具特色的英式小镇生活氛围与城市便利巧妙结合的生活体验。
内部50%的占地面积被规划为公用绿地,其中匠心打造的Central Plaza将成为社区景观中心,成为项目居住者日常休闲放松的美好去处。
项目亮点
① 新晋城市核心正在形成,从伦敦二区变身一区抢手楼盘,用二区的价格抓住升值成一区价值的增长潜力!
② 市中心1310套棕地开发项目,7-8年跨度,周边无新建小区,未来升值潜力大,租赁竞争力强。
③ 小区自带Oval Works办公大楼,增加未来租赁市场流量。
④ 项目本身以及周边绿化涵盖50%以上,周边拥有60多个公园,以肯宁顿公园为代表,城市中的绿洲生活!
交通概览
10分钟步行范围内可达三个地铁站——Vauxhall(维多利亚线,伦敦一区),Oval(地铁北线,伦敦二区)以及Kennington(地铁北线,伦敦二区)。
✦ Vauxhall地铁站
4分钟到达维多利亚站
8分钟到达牛津街
15分钟到达国王十字
✦ Oval地铁站
6分钟到达Waterloo站
9分钟到达Bank站(伦敦金融城)
12分钟到达Leicester Square(中国城)
✦ Vauxhall火车
5分钟可至Clapham Junction
7分钟可至Waterloo站
33分钟可至盖特威国际机场
肯宁顿公园,距离圆湾绿城只有5分钟的步行路程;步行10分钟至泰晤士河,7分钟至1区地铁站;毗邻皇家投资财产Oval版球场。
出行极便利,3大地铁站涵盖伦敦市中心所有精华站点。4分钟到Victoria,9分钟直达Bank金融城
教育资源
所有市中心知名大学LSE、UCL、帝国理工等都在30分钟通勤内。
✦ 从项目出发,到达附近大学:
12分钟巴士—伦艺UAL
18分钟步行—伦艺切尔西院校
21分钟巴士—伦敦政经LSE
21分钟巴士—西敏寺大学
21分钟巴士—国王学院KCL
26分钟地铁—伦敦大学学院UCL
27分钟地铁—帝国理工 Imperial College
项目不仅紧密连接着世界知名的大学学府,并且周围也环绕着许多优秀的中小学。
周边1英里范围所有公立中小学100% 为Outstanding。全英国最有名私立中学Westminster只要10分钟开车距离。
通过步行、乘搭巴士或地铁,以及驾车均能到达各个优秀学校。
✦ 从项目出发,到达附近中学:
15分钟地铁—皮姆立蔻学院 Pimlico Academy
16分钟巴士—西敏寺公学 Westminster School
22分钟巴士—哈里斯巴特西学院 Harris Academy Battersea
26分钟地铁—女王盖特学校 Queen’s Gate
32分钟地铁—伦敦城市学校 City of London School
32分钟驾车—古多芬学校 Godolphin and Latymer School
45分钟驾车—圣保罗公学 St Paul’s School
项目设计
项目室内哇哦都注入了精致而简约的设计,具有现代感。
这些配饰和配件提供干净的线条和反光饰面,从而营造出层次分明的内在美感。
精心策划的空间,带有无缝的暗装配件,设计用于娱乐和满足任何场合的需求。
简洁的线条和锐利的角度营造出现代精致的美感。对比鲜明的深色和浅色瓷砖的简单使用为整个设计带来了温暖,使公寓成为典雅的家。
全屋设备选择都有配备嵌入式主浴室地暖、舒适新风系统,室内采用中央控制暖气系统,客厅厨房及主卧有新风系统,浴室地暖,德国Miele 整体厨房;卧室配备地毯,客厅、厨房和走廊均为木地板。
配套服务
项目小区设施顶级配备,24小时礼宾物业服务,从提供安全保障到收发信件,住户专享游泳池和健身房,居住于此更加轻松惬意。
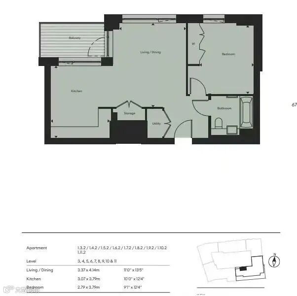
推荐户型
面积:54平方米
楼层:9楼
朝向:北朝向,看小区花园
价格:£810,000
交房时间:2023年第三季度
产权:999年
项目细节&实地看房更多
外事邦海房顾问或添加小邦主
还想了解哪些英国公寓,
后台留言,更多英国优质房源分享
关注外事邦获取选房避坑指南、海外房产资讯!

