Part.1
预制水磨石-产品介绍
Product Introduction
—
预制板分为环氧磨石和无机磨石:
以特种水泥为主要粘接料制成的水磨石叫无机磨石,
用环氧树脂粘接料制成的水磨石又叫环氧磨石,环氧磨石是有机磨石的一种。
预制水磨石是通过在工厂经过现代化设备加工而成,经过布料、震动、高压、养护、切割等工序,可控性较高,成品为单片板材,运输方便,施工成熟,适合各种空间应用。
Part.1
预制水磨石-地面施工
Ground construction
—
—— · 薄底法铺贴· ——
薄底法铺贴工艺流程一般如下:
①基层处理→②调配胶粘剂→③基层涂胶粘剂→④材料背涂胶粘剂→⑤正式铺贴 →⑥留缝清理 → ⑦质量检查→⑧成品保护
薄底法施工方法与半干湿法在找平层以后的工艺大同小异。由于薄底法基层已经固化成熟, 湿度较低,因而可以避免大部分因地下水汽及找平层湿度高引发的人造石后期使用中的质量 问题,且施工简单方便,安全性更高。
采用薄底法铺贴施工时,基层必须满足如下要求:
■基面必须干净,无污垢、油污、油脂、蜡状物、养护剂、密封剂等影响胶粘剂粘结强度的杂物;
■基面平整度满足 2m 跨度的偏差不超过 4mm;
■基面具有足够的结构强度,可承受预期载荷;当承受最大载荷时,中间点的变形不超过石 材单边跨度的 1/360;
■混凝土和砂浆基面无明水,含水量不高于 5%;
■基面抗剪强度不小于 0.5MPa,抗拉强度不小于 1.0MPa;
■基面为混凝土时,混凝土基层需养护 4 周以上。
⑴基层检查
确认基层平整度、结构强度满足要求;施工 面无污物、无积水。当基层为混凝土基面时, 可采用泼刷水泥素浆或粘结剂浆作为界面剂 润湿基面。
⑵调配胶粘剂
根据选定胶粘剂的商家使用说明书按比例进 行调配使用。不得加水过多搅拌太稀,要求 在灰刀铲起时能倒挂 5 秒为准,粘结剂在醒 至 5~10 分钟后正式使用前再次搅拌 2 分钟。(粘结剂需在当天之内用完,超过规定使用 时间未用完或表面起皮结块时禁止使用)
⑶基层涂刮胶粘剂
采用 10mm*10mm 齿形镘刀直边,将粘结 剂在基层上平整地涂抹一层,再用镘刀锯齿 边将胶粘剂梳理出饱满无间断的锯齿状条 纹,厚度约为 6~8mm。
⑷板材背面涂刮胶粘剂
使用干抹布或毛刷清理石材粘贴面的浮灰、 油脂、铁锈等影响粘结的附着物。在石材背 面用力涂刮一层厚度约为3~4mm的胶粘剂, 同时,将板材四边的胶粘剂补充足并倒角。
⑸铺贴
要求配吸盘将涂刮好胶粘剂的石材板平稳放 到找平砂浆层上,充分揉压,并用橡胶锤由 中心向四周逐步敲击,敲实、调平即可(石 材边角位置严禁采用暴力敲击,建议垫木板 敲击)。
⑹留缝清缝
后象无机石 产品铺贴时膨胀伸缩缝留缝宽度 为 1.0~1.5mm,留缝完成后及时用海绵清 理缝边;纵横每隔 8~10m 需预留 6~10mm 的结构伸缩缝,并深至基层,以防地表或结 构体应力作用导致石材起鼓或开裂。
⑺质量检查
铺贴过程中每铺贴 30 块都需要撬开 1 片进 行质量检查。铺贴 3 天后,使用空鼓锤检查 已经铺好地面是否松动、边角空鼓现象,如 果存在需立即采取灌浆修补或重新铺贴等措 施修缮。
⑻成品保护
前期保护:3 天内不可上人,拉线或者简易 栏杆围住,做好标志牌;后期保护:3-4 天后软性地毯 + 胶合板密拼, 每隔 7-10
Part.2
预制水磨石-幕墙施工
Curtain wall construction
—
墙面常用施工方法包括
①干挂施工方法、②墙面湿贴施工方法。
国家标准3米以下墙面可以湿贴,3米以上必须使用干挂方式,干挂方式通常和石材一样。
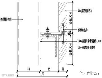
—— ·①·干挂施工方法· ——
▲背栓式(R 挂构件式焊接)
▲背栓式(R 挂装配 S、D 系统)
▲背栓式(R 挂构件式装配 G 系统)
▲短槽式(T 挂、钢销)
▲短槽点挂法
干挂石材施工主要有短槽式、钢销式和背栓式,工艺流程一般如下:
■测量、定位放基准线
■预埋件、支座安装
■金属骨架安装
■人造石板块安装
■嵌缝处理或打胶
■墙面清理
■工程验收
开槽式,工艺流程一般如下:
■板材打孔或开槽
■安装挂件
■挂装板材
■螺栓紧固
■板缝清理
■贴胶带 / 美纹
■填泡棒
■注胶
■修理撕胶
■清理验收




干挂法施工工艺流程一般如下:
■测量定位放线
■测量结构偏差
■后置埋件安装
■主龙骨安装
■次龙骨安装
■龙骨焊接
■干挂各节点防锈
■石材安装
■打密封胶或勾缝剂
—— ·②·墙面湿贴方法· ——
■测量、定位放基准线
■墙面基层清理涂界面剂
■胶粘剂浆料搅拌
■涂布胶结剂
■人造石粘贴
■调平整垂直度
■墙面勾缝清理
■工程验收

整理:弃医跨界的工程师
【免责声明:我们尊重原创,主要目的在于分享信息。所有文字和图片均从网络转载,版权原作者所有,如有侵犯您的权益请告知我们,我们将及时删除,对文中陈述内容和观点均保持中立,不对其准确性、可靠性或完整性提供任何明示或暗示的保证,仅供读者参考。】
评论处大家可以补充文章解释不对或欠缺的部分,这样下一个看到的人会学到更多,你知道的正是大家需要的。。。

