
在疫情反复、地缘冲突等特殊背景下,英国房产凭借其强大的抗风能力,令房价保持稳健增长趋势,吸引着全球投资者的目光。
在伦敦,比邻伦敦富人区肯辛顿、切尔西、诺丁山、骑士桥的伦敦西二区Acton,是真正名副其实的伦敦“投资热点地区”。
该地区向北是政府投资260亿英镑的老橡树与皇家公园(Old Oak Comman & Park Royal)大型升级改造区;向东是吸引80亿英镑的白城(White City)潜力区,向西和向南分别是传统的优质街区伊灵(Ealing)及奇西克(Chiswick)。
其中,White City的80亿英镑改造计划包括扩建全球最大商场Westfield,提升整个区域的商业气息,重建BBC电视中心,建立帝国理工、皇家艺术学院新校区,为整个区域带来学术氛围的同时,为当地注入更多生机与活力。
而Old Oak & Park Royal,斥资260亿英镑,是自奥运新村斯特拉福德(stratford)项目以来,伦敦最大的城市改造项目,也是全英投入最多的区域重建项目。过去五年,这里的房屋交易价格上涨了至少25%。
项目包括建立全英第二大的交通枢纽Old Oak Common,以及打造全英最大的战略性工业区Park Royal。
根据最新的规划,这里将提供25500套新建住宅,打造2000多家企业、提供65000个工作岗位,预计经济价值将达到760万英镑每年,交通日吞吐量达25万人次。
因此,在这两个区域的建设改造包围下,共计340亿英镑的投入打造了英国最大的地区重建项目,带动整个区域成为“伦敦的另一个中心”。
从过往的经验来看,伦敦政府规划的机会重建区都是当地房价涨幅的排头兵,因此,位于西二区这样中心地段建设项目、拥有前所未有大手笔投入的Acton地区,发展潜力、Western Circus 西城SOHO房价优势未来可期。
Western Circus
项目详情
项目名称:Western Circus
地址:Western Circus SOHO 西城SOHO
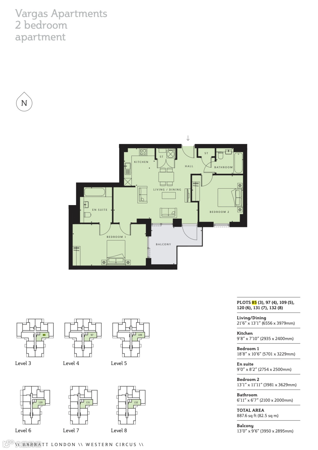
面积:82.5平米
参考价格:£585,000
状态:准现房
朝向:西、南
项目位于作为一个四通八达、活力四射的区域,该地区将成为伦敦的另外一个市中心。西城SOHO所在的Acton配套设施一应俱全,为居住于此的专业人士和高品质家庭提供了诸多便利。
Western Circus
多线交通,出行便利
✧ 从小区出发:步行8分钟即可到达East Acton地铁站,可搭乘地铁 Central线。
✧搭乘地铁或公交:11分钟到达White City,25分钟可达帕丁顿和邦德街,40分钟即可抵达希思罗机场。
除家门口的东阿克顿(East Acton) 地铁站外,附近还有Acton Central和Acton Mainline两个地铁站点步行可达,方便乘坐轨交通往城市各处。
伊丽莎白线Crossrail也将途经Acton,从西城SOHO步行到伊丽莎白线的Acton Mainline站点只要十几分钟,乘坐女王线到邦德街将缩短到9分钟,到希思罗机场只要17分钟!
另一个与伊丽莎白线齐名的国家级轨交项目——高铁2号High Speed 2(简称HS2),该线东起Euston、西至伯明翰,将于2026年底通车。
而位于Acton的Old Oak Common站则是该线路在伦敦唯二的停靠站点之一。
随着这两条轨道交通的建设,多线交汇、交通便利的Acton也被评为“有望将成为未来伦敦的另一个国王十字”。
这一方面令西城SOHO本身的交通条件得到提升,另一方面,交通进步所带来的区域发展,也使得项目自身的价值上涨,是绝佳的投资机会。
政府投入340亿英镑升级建设old oak and park royal 与white city 两大区域,共同加持阿克顿地区发展。
Western Circus
优质教育资源
✧从小区出发:步行21分钟可达皇家艺术学院RCA白城校区;步行25分钟可达帝国理工学院IC白城校区。
从Western Circus出发,半小时左右,可到达多所世界顶级大学:伦敦大学学院(UCL)、伦敦政治经济学院(LSE)、伦敦帝国理工学院主校区(IC)和伦敦国王学院(KCL)等。
由顶尖高校自上而下的辐射,自然能给Acton带来无上荣光,然而有着上百年历史积淀的伦敦西二区,原本就是尊贵显赫的富人居住区,因此这里的中小学名校也多如繁星。
大名鼎鼎的顶尖私立学校圣保罗女校St Paul’s Girls School和歌得芬腊提玛中学Godolphin and Latymer School 都在西区距离项目不远,驱车只要十多分钟车程。
该地区除了私校云集外,附近一英里范围内还有9个评级为Outstanding的公立学校。
Western Circus
宜居的生活环境
Western Circus 地处伦敦西二区Acton,周围有许多商店、酒吧、餐厅、休闲设施和公园绿地,充满生机与活力。
✧步行9分钟可达David Lloyd Acton Park运动中心;
✧步行10分钟可达Acton Park;
✧步行20分钟则是占地170英亩的郊野公园Wormwood Scrubs。
项目临近英国大型购物中心Westfield、传媒创意园区White City Place、BBC电视中心,该区域焕发出全新的活力。
Hammersmith Apollo是伦敦最著名的娱乐场所之一,从巴迪·霍利、大卫·鲍伊、比利·康纳利到迈克尔·麦金太尔,许多著名演员的职业生涯都从这里开始的,人们常年热衷于到此打卡“朝圣”,观赏高品质的节目演出。
Western Circus
理想住宅至尊体验
西城SOHO的每一套住宅都经过精心的设计,装修考究、质量上乘。厨 房中配备齐全的现代化高端设备,时尚雅致的白色系家具与高级的浴室装潢,处处彰显着现代 化的便捷与尊贵。
项目除了周边已经拥有了环境一流的Gunnersbury公园外,还专门精心打造了能让住户放松身心的景观花园。
西城SOHO采用了充满了现代感的室内设计,每一套住宅都经过精心的设计,装修考究、质量上乘,采光一流。
无论是选择一居室、两居室或是三居室的套间,您都可在宽敞明亮的家中充分享受到与所在地区品质相符的至尊居住感受。
所有的套间均设有私人阳台、门廊或花园,为您打造从室内向户外延伸的居住空间,让您可以在每时每刻充分沐浴阳光或观赏花园的景致。
项目同时融入了可持续发展的理念,太阳能节能减排的装置布局,完美符合了当代人环保意识为先的思想,为居民创造了高效环保的环境。
作为生活品质的象征,厨房中配备齐全的现代化高端设备,会让下厨成为一种享受。
时尚雅致的白色系家具与高级的浴室装潢,处处彰显着现代化的便捷与尊贵。
✧ 外事邦 ✧
年终感恩回馈
限时推出精选户型
折扣优惠:活动户型可享97折房价优惠
优惠时间:2022年12月25日-2023年2月5日
活动详情:联系顾问或点击【阅读全文】在线小邦为您解答
活动详情
关注【外事邦海外房产】
带您了解更多海外房产资讯

