
海量工程资料免费下载
http://down.gmz100.com
象征戏剧与整体
浙江大学海宁国际校区西区书院设计

西区书院西北侧鸟瞰
占地1000亩、以“住宿制书院”为基本型制的浙江大学海宁国际校区,西区书院位于校区西部,紧邻校区西大门。北侧与教师公寓隔路相望,东侧与以学术大讲堂为核心的教学北区隔路相邻。
书院总建筑面积为24949.2平方米,建筑高度为15.3米(至檐口)。
建筑单体由东西两栋C型的4层楼围合而成,未来将接待来自国内外的专家学者长居或短住,为书院内的餐饮、会议、休闲娱乐等功能提供了多样化的场地选择。

西区书院区位图
西区书院定位相当于四星的特色文化酒店,既满足了客人的基本入住需求,同时也从室内室外乃至软装配置等不同维度,展现浙大的校园文化和海宁校区的国际化背景。
如何对浙江大学的历史文化有适度的象征与传达,使本项目有自身的特点而又融于整个校区,既有视觉的普适性又有基于项目属性的个性特征,集情理而合一,是设计的出发点和难点。

书院北面主入口大堂南侧

大堂室内空间

大堂室内空间

大堂东侧餐厅及庭院鸟瞰

书院东南侧庭院
设计之初提出了将浙江大学玉泉校区不同时期的建筑风格做适度的象征或者提炼性演绎的观点。
清水红砖砌筑的主墙面、扎实稳重的石材基座、中国传统坡屋顶及装饰线脚这些元素不同程度地承载了几代浙大人最深刻的校园记忆,西区书院的外立面设计将其提炼概括,结合现代建筑的结构方式和营造特征,试图较为象征地呈现老浙大的建筑历史文脉。不同的校区,创造相对的文化关联与视觉联系是我们的用意所在。

书院东侧入口及立面

清水红砖、垂花门等延续浙大老校区立面元素

墙身细部

垂花门细部
总平面布局上,书院中心围合出了大小不同、动静相宜的四个内部庭院,通过起承转合的连廊,组合形成了丰富的室外空间,从而融各种行为方式与场景的戏剧化于一体。
精细的砌筑、自然的色调,使最终建成的清水砖或红砖表皮呈现了生动的表情;青绿的草坪,红色的砖饰以及浅色的砂岩,温和而不失雅致,有时间的沉淀也有现代建构技术信息的传递。

连廊围合出不同的内部庭院

庭院空间分析

大堂吧南侧中央庭院结合全景大堂吧,可以互动举办户外派对或是阳光下的学术盛宴

东南侧游廊雪景

游廊内外部空间

游廊立面细节

游廊细部

从中央庭院看东南侧游廊
办学模式向西方“书院”溯源的海宁国际校区在整体规划以“理性为主,自然相间”为前提,西区书院的设计融于其中并极富特色,从规划整体性符合的思考到传承与沿袭老浙大建筑中“以现代的手法,用砖石为材料,对古典语汇作新的阐释”的设计理念,既有设计体系的探讨与深化,更有基于项目本体的演变与创新;既有建筑实体的象征性直接表达,又有庭园空间的戏剧性细微诠释。统于一体,而竞相争辉,集情理而合一。

庭院景观细节

庭院景观细节

游廊节点

深邃的连廊

庭院景观

庭院草坪

建筑雪景

建筑雪景

建筑雪景

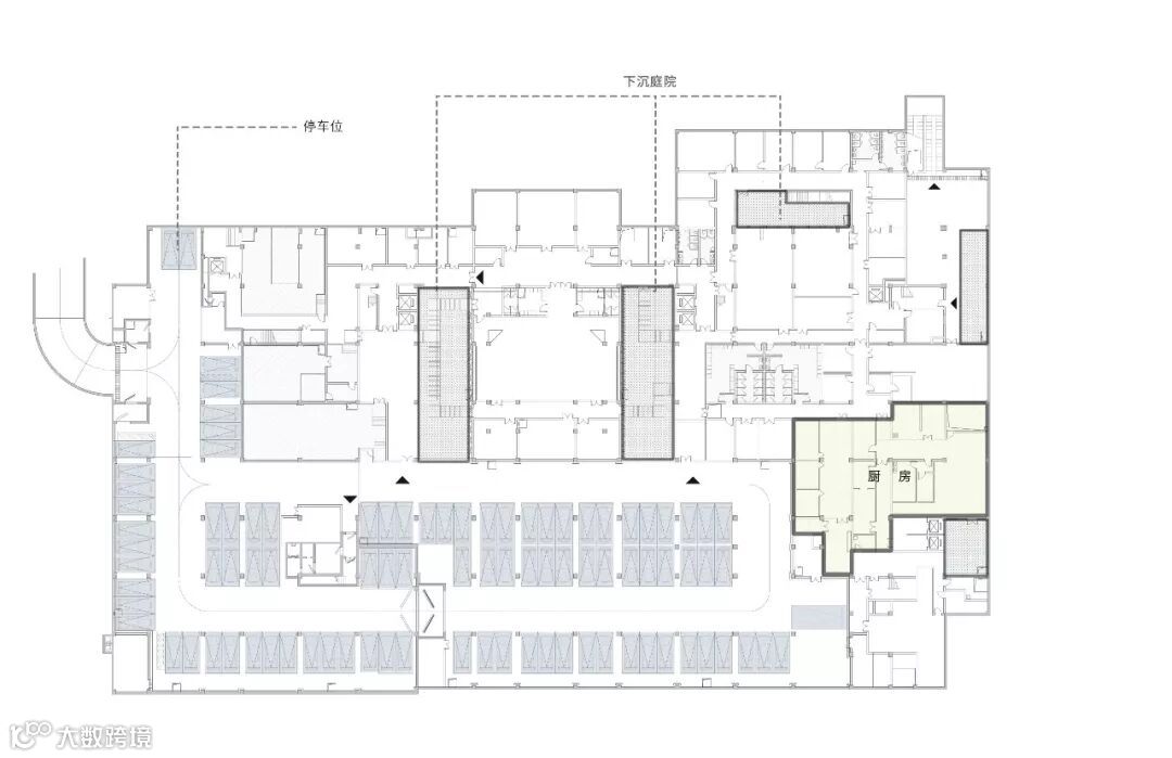
地下一层平面图

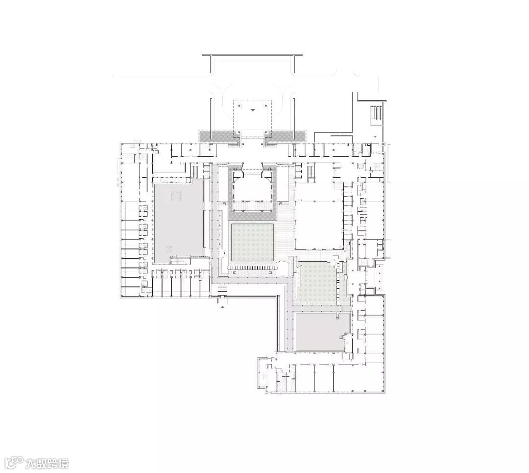
一层平面图

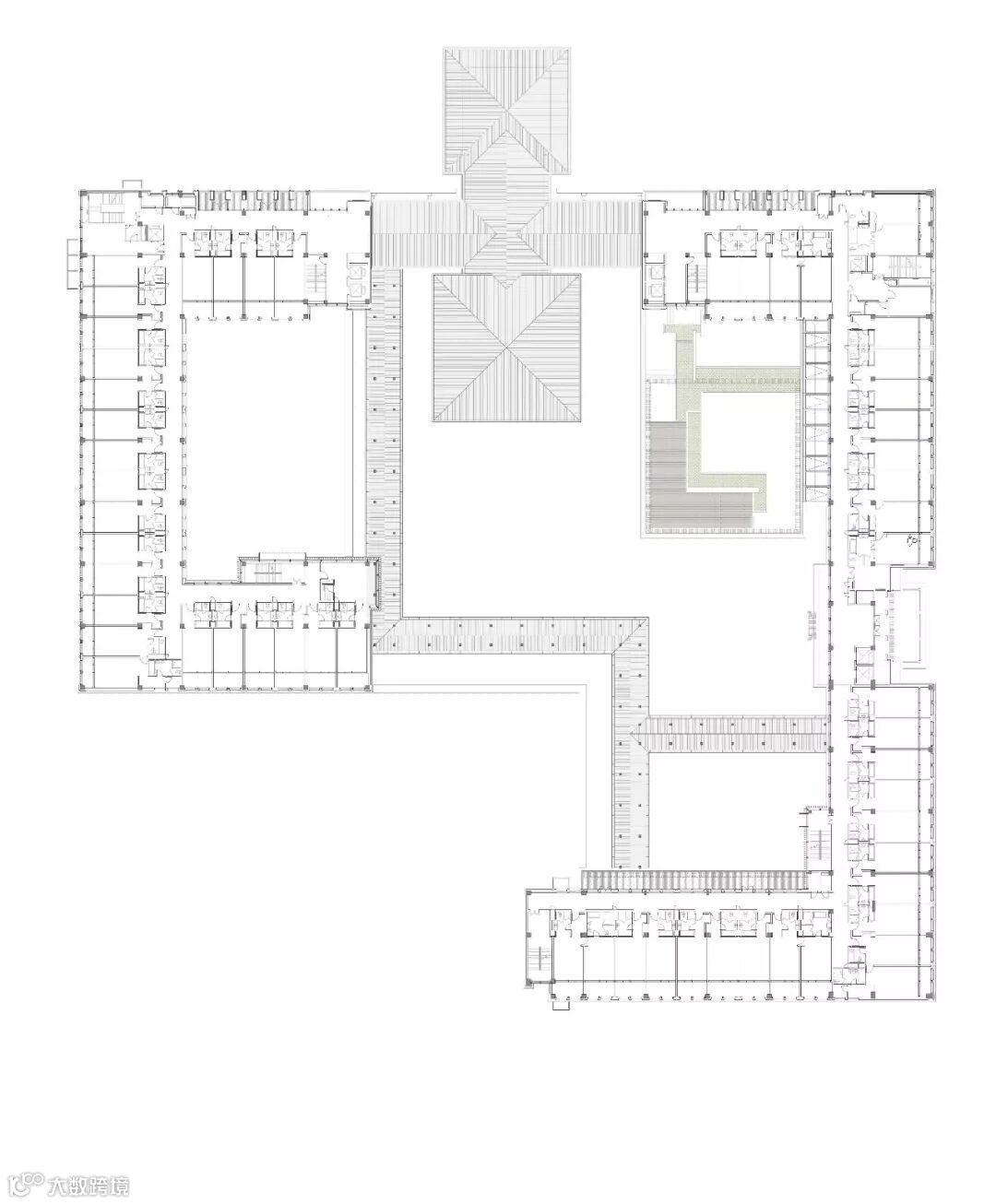
二层平面图

东立面

北立面

剖面图
项目名称:浙江大学国际联合学院(海宁国际校区)西区书院
建筑公司:浙江大学建筑设计研究院有限公司
公司网站:http://www.zuadr.com/
主创建筑师:董丹申,胡慧峰
设计团队:彭荣斌,吕宁,肖志斌,阚建忠,王靖华,周欣,李平,杨文征,杨毅,刁岳峰,杨国忠,王杭,白启安,朱娟娟,张毅,楚冉等
项目地址:海宁,浙江,中国,海州东路718号
项目年份:2013~2017
项目类别:酒店
建筑面积:24949.2㎡(地上16227.56㎡,地下8721.64㎡)
摄影师:赵强
客户:海宁市社会建设发展投资集团有限公司
