
甘肃·临夏民族大剧院
上海杜兹设计

临夏民族大剧院位于甘肃省临夏市规划新城的核心区。建筑面积52300平方米,地上建筑面积15000平方米,总建筑高度46米。
Linxia Grand Theater is located in the core area of planned new town in Linxia City, Gansu Province. It covers an area of 52,300 square meters and has a ground floor area of 15,000 square meters and a total building height of 46 meters.


在建筑设计中,采用了具有独特识别能力的简单几何球体,以及经典的图案与纹理比例。然而,毫无疑问,将这样一个精致和具象的形体扩大到一个直径90米、高度46米的公共建筑无疑给设计师带来了巨大的挑战。
如何既能体现图案的肌理和形态比例又能避免具象是设计师面临的最大挑战。
In the architectural design, simple geometric sphere with unique recognition is adopted, together with the classic proportion of patterns and texture. However, it is undoubtedly necessary to enlarge such a refined and figurative shape into a public building of 90 meters in diameter and 46 meters in height, which has brought huge challenges to the designer. How to reflect the pattern texture and form proportion but also to avoid concretization is the first biggest challenge faced by the designer.

将现代的设计手法融入到这一传统的肌体中,将具有浓郁民族特色的当代建筑留给当地人民,成为设计师的设计目的。
Integrate modern design techniques into this traditional body, and leave a contemporary architecture with strong ethnic characteristics to the local people has become the designer's design purposes.


经过反复思考,设计师放弃了用传统金属幕墙来实现穹顶的几何纹理图案这一“简单”且昂贵的解决方案。通过不断的努力,横截面的钢梁相互焊接来“编织”出穹顶整体空间结构的“肌理”,类似于国家奥林匹克体育中心的“鸟巢”结构。
壳体结构、幕墙结构与幕墙肌理融为一体,节约了大量成本。因此,整个立面内外强大的通透性外壳使得建筑从“不透”到“通透”的顶部成为可能,再加上立面“雪山白”的色彩选择,使得原本雕塑的穹顶形状变得抽象。
这不仅能达到建筑的整体效果,更能展现出厚重钢结构的宏伟魅力和不朽气息。建筑与结构浑然一体,独特、美观、视觉冲击力强,充分体现了自然和谐之美。
After thinking over and over again, the designers abandoned the "simple" and expensive solution of the traditional metal curtain wall to realize the geometric texture of the dome. Through continuous efforts, The cross-section steel beams are welded to each other to "weave" the overall spatial structure of the dome "texture," similar to the "Bird's Nest" structure of the National Olympic Sports Center. Shell structure, curtain wall structure and curtain wall texture are combined into one, saving a lot of cost. As a result, the powerful permeability shell inside and outside the entire facade makes it possible to change the building from the "impervious" to the top of the "all through", plus the facade "snow white" color selection, the dome shape of the original statue becomes abstraction. This will not only achieve the overall effect of the building, but also display the magnificent charm and immortality of the heavy steel structure. The building and the structure are seamless, unique and beautiful with strong visual impact and fully reflect the beauty of natural harmony.


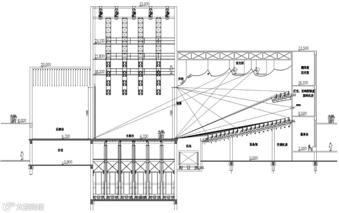
大剧院总高度约为46米,为了在充分利用空间的同时保持穹顶高度,大剧院主体为一层以上。
下部设置VIP贵宾厅和大面积装卸场地以满足功能需求。剧院的设计可容纳1052位观众,其中包括102个可活动座椅。观众席分为池座和落地座,池座可容纳860位观众,落地座可容纳192名观众观看演出。舞台是整个剧场的核心,使用国际通用的“品”字形布局。
并拥有两部分面积为120平方米的音乐池,可容纳100人的交响乐团。中心表演区的舞台设有侧车台、15平方米的大型车台、冰车台、芭蕾舞舞台、直径14米的步行转台、5个双层电动升降舞台等功能。
这些功能舞台可由电脑控制,可升降、旋转和移动,完成复杂的屏幕场景转换,充分满足音乐剧、歌剧、芭蕾、戏剧和综合文艺表演的不同需求。
Grand Theater has the total height of about 46 meters, in order to maintain the dome height while making full use of space, the Grand Theater main body is one floor level up. The lower part is used to set up VIP lounges and large area loading and unloading venues to meet the functional needs. The theater is designed to accommodate 1,052 spectators, including 102 active seats in the pool. Auditorium is divided into the pool seat and the floor seat, pool seat can accommodate 860 people, and the floor seat can accommodate 192 spectators to watch the show. Stage is the core of the entire theater, using internationally accepted a Chinese Character as "品" shaped stage. And has a two-part area of ??120 square meters of music pool, can accommodate symphony orchestra with 100 people. Center performance area stage has a car side, 15 meters square large stage platform, ballet stage, walking turntable with diameter of 14 meters, five double electric lift stage and other functions. These functional stages can be controlled by the computer, to be raised, rotated and moved to complete the complex screen scene transformation, and fully meet the different needs of musicals, operas, ballet, drama and theatrical performances.









在视觉设计上,楼座的最远地方座位是26米不到33米,向下倾斜20度,池座位俯角小于35度,放映视角是可控的,池座位、楼座舞台夹角控制,舞台中心看观众席角度大于80度,第一个表面光桥夹角是50度灯光控制。
在声学设计上,双层墙体、隔声垫的设计满足隔声要求。空调通风系统采用静音操作。结果表明,该方案噪声控制的PNC值(理想噪声级)可达15或更低。设计结合了两种完全不同的建筑类型——一个音乐厅和一个带舞台的剧场。
该设计使用了一个特殊的管弦乐围板。当演奏管弦乐表演时,很方便把舞台分割开来,把两个空间转换成一个空间。同时,将乐池提升到舞台的同一平面,在舞台上形成一个平台供乐队演奏。
In terms of vision design, the farthest place of the floor seat is 26 meters less than 33 meters, with downward tilt angle of 20 degrees, the pool seat depression point is less than 35 degrees, display angle is controllable, pool seat, floor seat subject to the stage angle control, view the auditorium from the stage center, the angle is greater than 80 degrees, the first surface light bridge angle between the table is subject to 50 degrees light control. In acoustical design, the design of double walls, acoustic mats meet acoustic isolation. Air conditioning and ventilation systems are designed with mute operation. This results in a PNC value (ideal noise level) of noise control of this scheme reaches 15 or lower. The design is a combination of two completely different building types - a concert hall and a theater with a stage. The design uses a special orchestra enclosure. When performing an orchestral show, it's easy to move it out of place to split the stage part, translating the two spaces into one space. At the same time, lift the pool to the same level of the stage, forming a platform at the stage for the band to play.







平面图

整体剖面

剖面图

流线分析
建筑师:上海杜兹设计
地点:中国 甘肃省 临夏
主创设计师:钟凌
设计团队:杨友军、Ahn Yunsil、Ellix WU、孙近银
结构设计:方向、张茂明
面积:15000.0平方米
年份:2016
摄影:吴清山
