
源自丨中天建设/工程施工课堂
版权归原作者所有、侵删
中天一向重视高效工法的推广应用,并作为项目标准化重点考核内容。今天向大家介绍中天工地实施的土建类10项高效工法,供参考学习。
(1)户内门洞优化施工工法
【实施效果】
对小于150mm二次结构门垛、过梁主体施工时一次配模浇筑成型,有效防治门洞侧空鼓开裂。

户内门垛优化示意图

门垛成型效果
(2)窗台企口浇筑工法
【实施效果】
在二次结构施工时对窗台梁进行优化设置企口,有效防治窗框周边渗漏水。

窗台企口浇筑示意图

现场照片

窗台企口实景
(3)上层钢筋保护层厚度控制
【实施效果】
通过设置通长钢筋马凳控制楼板钢筋保护层厚度减少楼板开裂。

钢筋马凳

布置示意图

钢筋马凳布置现场实景
(4)楼板厚度控制混凝土马凳
【实施效果】
采用定型预制混凝土马凳起到确保钢筋保护层厚度及楼板混凝土厚度的双重作用。

预制块马凳布置图

预制块马凳

预制块马凳应用


实施效果
(5)电井桥架洞PC收口工法
【实施效果】
优化电井布置,确定桥架母线穿板洞口位置和尺寸,电井地面施工时采用PC小构件(可用廉价石材代替)做洞口边模,地面装饰收口一次成活。

桥架围挡PC设计图

PC产品

过程安装效果

围挡效果
(6)屋面结构防水分区工法
【实施效果】
屋面结构施工时根据落水口位置、排水方向、排水面积等设置结构防水分区上翻梁,确保各区块渗漏不扩张,方便后期渗漏水排查修补。

反坎剖面图

结构反坎

反坎防水施工

分区蓄水试验
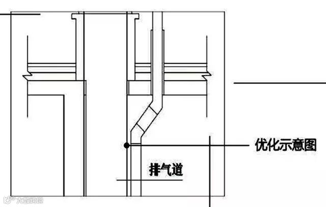
(7)屋面通气管施工工法
【实施效果】
屋面套管预埋前根据屋面建筑图纸进行深化碰撞试验,优化调整通气管位置,绕开烟帽、排水沟等部位,降低后期防水施工难度改善屋面整体施工观感质量。

优化示意图

板底做法

屋面预埋效果

顶层通气管实景
(8)基础承台PC施工工法
【实施效果】
采用PC板替代传统砖胎模,减少砌体粉刷施工量,提高基础施工进度及承台成型尺寸精度。

承台PC优化图

承台PC构件

承台PC构件拼装

承台PC实施效果
(9)楼梯间梁PC施工工法
【实施效果】
优化剪刀楼梯楼梯间梁施工方式,采用PC预制梁代替传统混凝土现浇做法,降低该部位施工难度提高施工效率,同时更好的控制楼梯间梁成型尺寸的精度。

楼梯构造窄梁PC优化图

PC梁

PC梁吊装

PC梁实施效果
(10)卫生间阴角免收口工法
【实施效果】
根据施工图识别卫生间降板位置、尺寸大小;采用定型化模具安装定位加固,使卫生间阴角一次成型,防水施工前减免阴角处理工序。

卫生间下沉弧形优化做法示意图

弧形定型化模具

卫生间下沉弧形效果

弧形成型效果


