搜索
首页
大数快讯
大数活动
服务超市
文章专题
出海平台
流量密码
出海蓝图
产业赛道
物流仓储
跨境支付
选品策略
实操手册
报告
跨企查
百科
导航
知识体系
工具箱
更多
找货源
跨境招聘
DeepSeek
首页
>
科研综合大楼深基坑支护及开挖施工方案汇报PPT,三维图棒极了!
>
0
0
科研综合大楼深基坑支护及开挖施工方案汇报PPT,三维图棒极了!
工程平台
2019-11-18
2
来源:中国交建
版权
归原作者所有
1
项目概况
点击>>工程资料免费下载
点击>>工程资料免费下载
2
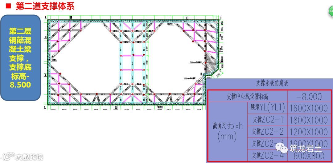
施工部署
3
施工工艺
点击>>工程资料免费下载
4
工程重难点分析及应对措施
5
基坑施工监测
6
风险识别及应急预案
7
雨季施工
8
应急救援
【声明】内容源于网络
0
0
工程平台
工程人交流、学习、发布工程信息平台
内容
4185
粉丝
0
关注
在线咨询
工程平台
工程人交流、学习、发布工程信息平台
总阅读
2.5k
粉丝
0
内容
4.2k
在线咨询
关注