
点击阅读>>“停工”文件正式发布!28座城市急需关注这些事
一、一种装修施工阶段吊运散物和可拆卸底盘的吊笼装置

本装置主要是用于叠拼别墅,施工时,外立面及内部装饰材料的吊装,并可推广至穿插整个工程的小型货物吊装作业。

本工程采用“一笼多盘”的方式吊装,可在多个位置同时向托盘中放置货物,操作极其简单。将货物放置托盘之后,信号工指挥塔吊将吊笼吊下,底部工人将吊笼与托盘用锁销锁紧,信号工指挥塔吊将吊笼吊至指定位置完成吊装作业并可直接进行下一位置托盘的吊装。点击>>工程资料免费下载

本工程通过现场实际观察得出:采用本吊笼装置吊装作业一天的倒料量为采用传统料斗倒料量的5/3倍。即:当吊装量相同时采用本吊笼装置吊装作业为采用传统料斗倒料时间的3/5。本工程共4台塔吊供叠拼别墅使用。以下计算过程工程单位按月计算。



钻孔施工前需要利用手提式电钻(钻头根据现场植入钢筋直径确定)、木方(可根据实际情况确定)、4颗8mm螺栓、三根直径为20mm钢筋条、一圈黑色胶带、自制安全简易小开关等制作一款简易操作工具。




在设置构造柱位置处的梁钻孔打眼,根据植入钢筋不同,选取一层局部位置相同处打直径12mm钢筋的眼有10个,打直径8mm钢筋的眼有20个,打直径6mm钢筋的眼有20个,均配置一个工人。植入直径12mm的钢筋打眼市场价是2元/个,植入直径8mm的钢筋打眼市场价是1.6元/个,植入直径6mm的钢筋打眼市场价是1.5元/个。

采用简易操作工具十分方便,缩短了钻孔打眼的时间,同时施工人员直接站在楼板上,可以方便移动,减小了与其他专业施工时相互之间影响,避免发生事故,不仅省时省力,还保证了施工人员的安全。本施工技术受到工人、业主、监理、各级建设监督部门的认可。在实际施工中在技术方面简单易行,具有广泛的推广使用前景。


转动工具前端需焊接一个连接筒将螺母套筒和转动工具相连,焊接应满焊,焊缝应饱满,转动工具下方为长度300mm的水平钢管把手,通过焊接与转动工具连在一起。






所选疏散通道的长度为19.8m,宽度为3.8m,两层的楼层净高均为5.2m,吊杆按照横向和纵向间距都为900mm布置,两层通道每层均需要115根吊杆,每层均配两个工人。
脚手架移动平台购买费用:270元/副; 人工费:240元/工日;
经现场对照,首层采用传统的吊杆安装方式,全部安装完毕共需8.5个小时;二层采用此给出的施工方法,全部安装完毕共需3.5小时。
通过对比分析,支吊架吊杆工具式安装施工方法在安装等量的吊杆所需时间仅为传统的施工方法花费时间的2/5,大大提升了工人的施工效率,缩短了施工工期。目前测算工人现场施工可保证250根/天(包括钻孔及安装吊杆)。

单元板幕墙安装的活动吊车技术是将卷扬机和活动小车进行组合,卷扬机通过滑轮组提供向上拉力,车体下部安装万向轮和支撑臂保证移动和固定使用。替代了传统工字钢导轨式吊车。

车身是由尼龙万向轮(1.1)、与尼龙万向轮连接的机座横梁(1.3)、机座竖梁(1.4)、配重端连接的配重铁(6)、配重柱(1.5)组成。
特征:机座(1)放置于靠近建筑物的边缘位置,机座前端设置活动支撑臂(1.2),在吊装时放下,稳定吊车。




吊装系统由卷扬机(5)、前吊臂(13)、斜拉杆(4)组成。两根前吊臂(13)的悬挑端的左、右两侧分别设有由钢板和定滑轮(14)组成的固定组件,固定组件的上部通过可调螺栓组件(10)连接斜拉杆(4),前吊臂(13)和斜拉杆(4)都通过可调螺栓组件(10)焊接在机座(1)上,其中前吊臂由两道加强衬加固。卷扬机(5)通过卷扬机架(11)焊接在机座(1)上。钢绳(8)通过卷扬机(5)连接到定滑轮(14)上,通过吊钩(12)吊装单元板块(16)。


配重组由配重铁(6)套在配重柱(1.5)上组成。配重柱(1.5)焊接在机座(1)上。


1、根据工程特点,结合现场实际情况安排活动吊车中机座的位置。
2、将机座放置好,用高强螺栓将机座与斜拉杆和前吊臂连接,高强螺栓必须拧紧。
3、连接完成后,用支撑臂将机座支撑起来,避免在吊装过程中吊车出现滑行。
4、使用测量仪器对安装完成的活动吊车的水平度进行校核,确保吊车四个脚处于同一水平面。
6、安装完成后,对已完成安装的活动吊车进行验收,验收合格后即可投入对单元板幕墙的吊装使用。


新青海大厦工程位于北京市丰台区丽泽金融商务区D19地块,建筑面积13万㎡,地下四层,地上18层,总高度91m,使用功能为酒店、写字楼。
本工程目前已经安装使用4台活动吊车替代传统轨道式吊车,单台造价及使用成本约为1万元,且避免了轨道铺设相关费用,综合经济效益能节约一半以上。

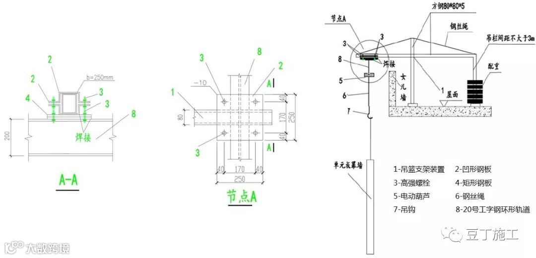
本单元板幕墙安装的吊装装置,主要材料包括20号工字钢环形轨道、电动葫芦、高强螺栓、配套螺母及垫片、钢板、吊篮支架装置。
本技术是利用吊篮支架装置,用凹形钢板、高强螺栓和矩形钢板,将环绕建筑物顶部且在同一平面上的工字钢环形轨道连接为一体,配合电动葫芦、钢丝绳和吊钩完成单元板幕墙安装的吊装工作,利用工字钢滑轨完成水平运输。
该方法构造简单、安全可靠,无需塔吊或悬臂吊等机械提升设备,幕墙施工过程中无需搭设脚手架,大大节约了材料成本,提高了单元板幕墙的吊装效率。



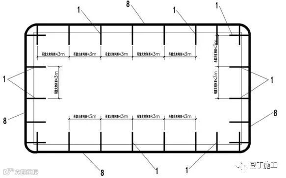
1、定位放线:根据工程特点,结合现场实际情况及轨道设计平面布置进行吊篮支架装置的定位放线。吊篮支架装置的间距不大于3m。
2、吊篮结构安装:根据吊篮支架装置的定位,安装吊篮结构装置,吊篮支架装置靠结构边的支点离结构边距离为150mm。
3、钢板安装: 利用吊篮支架装置的吊篮,完成凹形钢板、矩形钢板及吊篮支架装置的安装焊接工作;凹形钢板与矩形钢板采用满焊,焊缝高度不得小于8mm。凹形钢板与吊篮支架装置连接必须牢靠,高强螺栓必须拧紧。
4、测量仪器校核:使用相关测量仪器对安装过程中轨道的水平平直度进行校核,确保轨道处于同一水平面,环形轨道可正常运转使用。
5、轨道安装:完成矩形钢板与工字钢的安装焊接工作。
6、调试:安装行走电动葫芦。同时,对安装完成的行走电动葫芦进行调试,确保其可以稳定安全运转。
7、验收:对已完成测试的轨道装备进行验收,验收合格后,即可投入吊装使用。

点击>>工程资料免费下载


为了更直接的表述本施工技术的优越性,特以中国卫星通信大厦工程为例,并采用塔吊吊装作为参照对比对象进行效益分析。
1、单元板幕墙安装的吊装系统采用20号工字钢共289m,吊篮支架装置98套,M20螺栓10mm 长共784根,配套螺母及垫片各1568个。工字钢采用租赁,租赁天数为280天,吊篮支架装置采用加工购买,总成本价格为88200+24276=112476元。
2、常规采用塔吊进行吊装,需采用两台塔吊,租赁时间为280天,总租赁价格为448000元。
3、单元板幕墙安装的吊装系统显然较塔吊吊装安装更加经济,从总成本价格上节约335524元。
4、从环境效益角度分析,单元板幕墙吊装施工完成后,单元板幕墙安装的吊装系统可直接拆卸,100%回收并周转使用,无废料垃圾产生,绿色环保。

为显示装修档次,公建室内墙面常采用石材,干挂石材因做法厚,对空间需求大,在对石材刨槽干挂时,如开槽不当会削弱节点的抗拉承载力,如采用背板的形式则费工费料,发生板面损坏不易维修。而直接干粘石材和湿贴石材对基层平整和垂直要求较高,且湿贴石材易对板面污染。下面介绍的钢骨架干粘石材为我们的施工提供了另一种思路。


骨架干粘石材采用埋板与基层墙面连接,竖向龙骨和横向龙骨均采用方钢做成龙骨架与埋板焊接,石材通过环氧树脂A、B双组份工程胶与横龙骨上的短角钢或角码进行粘贴以达到装饰效果。

适用于室内墙面不超过4 m高度的、厚度大于10mm的天然石材或复合石材墙面的施工,特别是基层平整度和垂直度较差、面层石材厚度较薄的石材施工。石材圆柱和室外墙面不宜采用。

首先确定好基准轴线和水准点,并进行复核。现场放出控制线和定位控制点后,依照图纸进行放线。
依据设计要求,选择膨胀螺栓或化学锚栓进行打眼安装固定预埋板。
立柱依据放线的位置进行安装。钢立柱类型依据设计要求,必须与土建承重结构有牢靠的固定。
采用一段100mm长的角钢作为立柱与预埋钢板的连接件,角钢规格依据设计要求。将角钢连接件与镀锌钢板和立柱分别焊接固定。

未装横梁前,在设计干粘点位置加焊短角钢,短角钢面积大小和数量由设计计算决定。短角钢粘胶面中心需钻一个小孔,孔径符合设计要求。
横梁依据水平横向线进行安装,将横梁方钢与立柱进行焊接,隐蔽检查合格后,涂刷防锈漆。

在安装每块石材前,用手持角磨机将钢架上粘结点的防锈漆磨去。将干粘胶涂抹在石材和骨架连接件上。按照所选用的环氧树脂AB型工程胶的配比,适量混合A、B双组份胶料,用小铲刀翻拌均匀,要注意随用随拌。
在被安装石材粘接点上抹上适量的拌和好的胶体,使石材安装就位时能将部分胶体从中心小孔中挤压出余胶,形成锚固点和空气排出。

用专用卡具和小木楔临时固定和调节石材板面,钢架与饰面板之间用胶厚度宜控制在4~5mm。
石材墙面安装调试完毕后,要注意保护,在24小时内不能受较大外力撞击,以免胶体未完全固化使墙面发生变形。
上一层石材安装完毕后,方可安装第二层石材,上下两层的操作时间间隔应在1小时以上。如果操作面不长,为提高工效,可在下层板上用快干型环氧树脂AB工程胶进行至少两点加固,每个加固胶粘结点面积不小于2cm.

1、钢骨架干粘石材的施工,在基层平整度和垂直度偏差较大情况下,不必进行基层整体重新处理,避免了基层处理的费用。
2、能有效增加室内空间,特别是对宽度要求较高的消防通道等,能提供尺寸保证。
3、能有效减少石材厚度,有利于控制装饰成本。如采用薄型石材能减少成本30%以上。
4、施工方法简单,工序较少(减少石材刨槽),能有效缩短工期10%,同时减少人工费10%左右。
中国穆斯林小商品商贸城主楼北楼装饰工程共计120000m2,其中墙面大量使用钢骨架干粘石材施工。
按照本施工技术进行施工,在结构施工平整度和垂直度不理想的情况下,对石材进行了精确安装,保证了通道宽度符合消防要求,装饰效果获得了业主认可。


1. 实用性强,施工工艺简单,操作方便,易于掌握。
2.对基层平整度和垂直度要求较低,做法厚度较小,对装饰空间需求较小。
5.局部石材破损后容易更换。中国穆斯林小商品商贸城按照本施工技术进行施工,在结构施工平整度和垂直度不理想的情况下,对石材进行了精确安装,保证了通道宽度符合消防要求,装饰效果获得了业主认可。

注:PCF即Precast Concrete Form即预制混凝土模板

北京市CBD核心区Z2b地块四周均是在建项目,场地狭小,在建项目之间限制性大,尤其是西侧地下室外墙,距红线只有10cm,且红线外侧即为阳光保险在施地块,使得西侧地下室21m高外墙无法按照现有施工方法进行结构施工,故结合建筑工业化和绿色建造的施工理念,研发PCF单侧支模技术,解决现有难题。接下来我简称PCF单侧支模为PC板
其特征为:外侧模板为PC板;内侧模板通过单侧模板支架支设在基础底板上,单侧模板支架为直角三角形架体,垂直支撑在基础底板上,架体的底部横向支撑紧贴基础底板,竖向支撑紧贴内侧模板。外侧PC板与内侧模板通过止水对拉螺栓紧固在一起,止水对拉螺栓一端与PC模板内部的预埋件一固定,另一端穿过内侧模板与内侧模板通过山形卡紧固在一起,PC模板的顶部通过可调斜撑支设在与内侧模板同侧的基础底板上;单侧模板支架通过勾头螺栓和内侧模板固定在一起,勾头螺栓的勾头端与卡固在内侧模板上山形卡之间的双钢管钩固在一起,另一端穿过单侧模板支架的竖向支撑并用山形卡固定。



PCF单侧支模体系的实施方案从两个过程、六个方面进行方案细化,具体如下:


我们通过一段动画来加深印象,PCF单侧支模体系施工工艺流程:PC板的加工制作→PC板的运输堆放()→PC板的吊装就位→PC板的安装校正→PC板的临时固定→脚手架搭设和防水施工→PC板螺杆固定和钢筋绑扎→内侧模板支设和支架安装→混凝土浇筑→下一层周转施工。
根据结构基准图,对PC板的布置范围、PC板块的分隔、间距,每块PC板的尺寸和位置、PC板的固定位置、连接方式以及特殊节点的处理均进行细致的设计,并通过ansys进行计算,形式PC板设计图一套、计算书一套,并通过的设计单位、监理单位和业主单位的审核。

我们来具体的看一下流程要点,我们要对PC板块的分隔、间距,每块PC板的尺寸和位置、PC板的固定位置、连接方式以及特殊节点的处理均进行设计,并通过ansys进行计算,形式PC板设计图和计算书,并通过的设计、监理和业主的审核
根据PC板的基础设计图纸,协调专业厂家确定埋件的型式和材质要求,通过BIM建模,对埋件埋设位置和连接方式进行二次深化,避免埋件和钢筋的碰撞冲突,并直接利用BIM软件出图,形成PC板的加工图和三维模型,方便指导厂家加工。
PC板拼缝位置采用预埋钢板后焊接的方式进行处理。其中连接位置仅设置在PC板竖向连接位置,水平位置无需处理。除底层外,其他层在宽度小于2000mm的PC板设置2块预埋钢板,宽度大于2000mm的PC板设置3块预埋钢板。

二、预埋件的深化设计,首先要考虑板的分割尺寸,避开钢筋甩茬位置并匹配塔吊的吊重和吊次,方面施工。其次深化以下几个预埋件的大小与位置,1、与止水对拉螺栓固定的内部的预埋件;2、底部和顶部预埋PC板与PC板连接埋件,3、上部预埋PC板与可调斜撑槽钢连接埋件,4、PC板拼缝位置的预埋钢板。通过BIM建模,对埋件埋设位置和连接方式进行二次深化,避免埋件和钢筋的碰撞冲突。
1、选择专业的预制构件生产厂家,进行原材料的优选,并在合同内详细的明确质量要求;
2、PC板加工前,由项目部技术负责人对PC板加工人员进行技术交底,并对预制加工质量要求、注意事项、细节施工方法等进行详细讲解,明确质量标准及验收要求;
3、项目部安排驻加工场人员负责PC加工质量,全面贯彻执行施工质量标准,确保预制件加工质量;


1、PC板通过预埋螺母与现场吊具连接固定,槽钢通过预埋螺栓与PC板固定;
2、起吊吊装,将钢丝绳穿入PC板上端的两个吊环内并确认连接紧固后,在板的下端放置两块海棉胶垫,以预防PC板吊离地时板的边角被撞坏。
3、吊装就位:用塔吊缓缓将PC板吊起,待板的底边升至距地面50cm时略作停顿,再次检查吊挂是否牢固,板面有无污染破损。确认无误后,继续提升,慢慢靠近安装作业面。
5、通过可调斜撑与地锚固定:首先安装最底层首块PC板,考虑外墙边距工程桩仅300mm,为保证PC板的固定,在其下部施工条形基础。然后安装第一块PC板并施工临时支撑,临时支撑底部通过M18螺栓与基础或楼板预埋埋件固定,上部通过M18螺栓和配套螺母与槽钢固定。

在安装固定首块PC板后,由于临时支撑杆件将对后续底板垫层及防水施工造成影响,故需进行换撑作业。
具体做法:将2~3块PC板用原临时固定25#C槽钢连成一体,然后用L90角钢一头与一体槽钢连接固定,另一头与桩头钢筋锚板焊接固定,然后拆除临时支撑杆间。



钢筋绑扎并验收合格后→合外墙模板→单侧支架吊运到位→安装单侧支架→安装加强钢管(单侧支架斜撑部位的附加钢管)→安装压梁槽钢→安装埋件系统→调节支架垂直度→安装上操作平台→再紧固检查一次埋件系统→验收合格后,浇筑混凝土

1、严格按照方案要求,将木模板通过螺杆与PC板对拉固定,一头拧入PC板中预埋固定件,一头拉住模板背楞钢管;2、三角撑隔400mm布置,与模板通过勾头螺栓连接,底部通过地埋压固,确保整体体系稳固。3、混凝土浇筑严格按方案要求顺序和速度浇筑,安排专人看模

本次预制混凝土模板(PCF)在北京三星项目中的使用,证实了PC构件在狭小的施工空间内能够一次性完成结构、防水同时保证外墙施工质量。
1、城市核心区,用地紧张,周围都是已完成在建项目,没有地下室外墙施工空间;
2、基坑受制于环境影响不能大面开挖,基坑支护距结构外墙过近,没有施工空间;
3、周围都是其他单位在建工程,无法利用其他单位的空间完成自己结构外墙的施工。

工期节约:因为PC板前期在加工厂预制加工,相应的缩短了工期。按传统每层搭设操作架需2d/F,支设外侧模板4d/F,按5层算,共节约工期30天。模板拆除2d/F,架体拆除5d,共节约工期15天。此外由于使用了PC板填充了建筑红线间隙,省去了回填的时间,节约工期30天。考虑PC板吊装需2d/F,累计节约工期65天。
成本节约:PC外墙成型时外表面平滑省去了抹灰的程序,相应的节约了材料费用和表面处理费用,按45元/㎡,共计节约45*1671=75195元;省去了红线间隙的素混凝土回填,回填按415元/m³考虑,共计节约69346.5元,省去了外脚手架搭拆及防护,按50元/㎡,共计节约83550元,省去了周边地块安全状况的专人外架巡查防护,共计节39000元,共计节省成本267091.5元。

水泥砂浆地面的传统施工方法是用1:3水泥砂浆打底、1:2.5水泥砂浆罩面,两遍成活、三遍压光,该做法工序相对较多,且水泥砂浆地面经常会有空鼓、起砂、麻面、干裂等质量通病,尤其是福建等沿海地区因气温高、常年风力较大、水蒸发快、昼夜温差大等原因,地面空鼓、起砂现象更为明显。经过实践,采取“缩短硬化周期”、“减少工序”和“减少水的使用”等方法控制空鼓,经过几个项目尝试,形成了“干硬砂浆一次成活”的水泥砂浆地面施工方法,“一次压光一次成活” 。
所谓“干硬砂浆一次成活”主要是掌握好“干硬”和“一次成活”两个要点。要正确掌握干硬性水泥砂浆的配合比,控制好砂浆的干硬程度,做好试配试搅拌工作。



首先按水泥砂子1:3的配合比在搅拌机中对水泥、砂子进行干搅拌,待搅拌均匀后,适量加水继续进行搅拌,使水泥、砂子在手握成团状的潮湿状态后备用;根据经验,判定干硬砂浆的标准为“手握成团,落地成花”的潮湿状态为最好,砂浆太湿或太干都不适合提浆硬化。先做灰饼;提前一天清洗地面,第二天在清洗干净的地面上用较粘稠的水泥浆进行满铺,地面要潮湿但不见明水,水泥浆的厚度保持为30mm—50mm;然后大面积铺设干硬性水泥砂浆,用木抹子拍打搓平;搓平之后马上用磨光机磨光提浆(或多个工人迅速用铁抹子收面),基本不需表面洒水,一直至提浆到位,一次成活,若需毛面,可以用扫把朝一个方向轻扫出纹理;洒水养护:养护时间相对提前。一半来说,夏天 3 小时以后便可以养护,春秋6/7 个小时即可开始养护。不得少于7d。
根据经验,判定干硬砂浆的标准为“手握成团,落地成花”的潮湿状态为最好,砂浆太湿或太干都不适合提浆硬化。

根据实践经验,适当提高水泥浆的粘稠度对于控制空鼓效果更好,同时,水泥浆厚度比通常稍微加厚,一般控制为30mm-50mm。

因为是干硬砂浆,所以必须马上迅速进行提浆操作;建议使用圆盘磨光机,提浆效率相对高,人工铁抹子则需要较多劳动力;在进行提浆操作时,可以少量洒水,只要砂浆的干硬度控制合适,一直提浆操作至到位,一次压光成活。
由于“干硬砂浆一次成活法”是缩短了压光和硬化周期、一次成活,所以需要收面工作快速完成,在合理安排劳动力的情况下,这就限制了应用该技术时单次施工面积不宜过大(一次施工面积不宜超过300m2),故特别适合交付界面为水泥砂浆面层且单层面积不会太大的住宅类建筑。尤其对于常年风力较大的沿海地区优势极其明显。

1、工期方面。采用“干硬砂浆一次成活法”施工,在地面施工阶段可以节省大约1/3工期,在维保阶段基本无需再次投入。以平潭海峡如意城项目为例:正常每层水泥砂浆地面施工需要1.5天,而采用干硬砂浆一次成活法可以缩短至1天。
应用“水泥砂浆一次成活法”施工主要在“减少维修费用投入”和“新技术节约工时”来计算其经济效益。
“减少维修费用投入”方面:正常的水泥砂浆维修费用占比约5%,而应用新技术可减少86%,以中建一局世贸海峡如意城项目G002地块为例,维修费用和节省 (327万×5%×86%)=14.06万元;
“节约工时”方面:按照《施工科技进步各类新技术效益计价指标及计价方法》,同样以世贸海峡如意城为例, X= (W0-W1)×C×P=(4.5-3)×122657=18.39万
【新技术应用前,单层(600 m2 )找平用工时为9工天(1.5天×6人),工时按300元/工时,则每平方米用人工费为4.5元/m2;
新技术应用后,单层(600 m2)找平用工时为6工天(1.0天×6人),工时按300元/工时,则每平方米用人工费为3元/m2 ,现场总的找平层数122657m2】

在传统做法中,由于施工控制等种种原因,多做一层砂浆就多一个交界面,多一个产生空鼓的可能,并且每层水泥砂浆地面铺设都会产生薄厚不均匀等问题,也会带来空鼓或开裂的现象;
而采用干硬砂浆一次成活,减少了一个界面,也就减少了一个产生空鼓的可能,同时,由于降低了用水量,可避免干缩裂缝及表面起砂麻面。经过几个项目的实践证明,水泥砂浆地面空鼓、开裂、起砂等降低了86%,特别对于毛坯交付的住宅类建筑优势极其明显。
1、传统水泥砂浆地面“三遍压光、两遍成活”,第一遍压光是在摊灰后进行找平和提浆,第二遍是在初凝后,第三遍是在终凝前,每道工序都需间隔一定的时间,而“干硬砂浆一次成活法”可以摊灰后马上进行磨光,节省了大约1/3的时间。
2、传统水泥砂浆地面往往因为基层不平整等原因,厚薄不同失水快慢就不同,必须采用人工收面来做以控制和选择,而干硬砂浆一次成活则可以用磨光机直接收面,效率高而效果好,节省了收面的工时。

20世纪90年代天然石粉进入建筑行业,引领绿色环保装饰,主要成分为含水碳酸钙(CaCO3),其含量不少于95%,环保、燃烧性能等级为A级。
天然石粉涂料是一种采用“药用矿石”经现代生产工艺加工制成的新型天然环保涂饰粉料,配以专业的液料组合而成。具有如下技术特点:天然环保,耐水防潮,粘附力强,耐火性能佳,防静电,耐候性好。
基层处理→找平→涂刷抗碱封底漆→平面刮抹天然石粉涂料
与传统传统涂料做法:抹灰层+腻子+涂料做法进行对比


点击阅读>>“停工”文件正式发布!28座城市急需关注这些事
