

为了使基因,大脑和行为的研究更好地融合在一起,宾夕法尼亚大学希望将其心理学,生物学和行为科学项目并入一个共同的设施中。由史密斯集团(SmithGroup)规划,编程和设计的Stephen A.Levin神经和行为科学大楼是最先进的综合科学设施,作为一个标志性的中心和连接新定义的生命科学区域。凭借其位置在车辆和行人通向校园的交汇处,因此,该区域的规划和项目成为周边社区和大学之间的重要纽带。
Seeking to create greater integration of the study of genes, the brain and behavior, the University of Pennsylvania desired to co-locate their psychology, biology and behavioral sciences programs into a common facility. The Stephen A. Levin Neural and Behavioral Sciences building, planned, programmed and designed by SmithGroup, is a state-of-the-art integrated sciences facility that acts as an iconic center and connector for a newly-defined life sciences precinct. By virtue of its location at the convergence of vehicular and pedestrian approaches to the campus, the precinct plan and program became a critical link between the surrounding neighborhood and the University.


点击>>工程资料免费下载

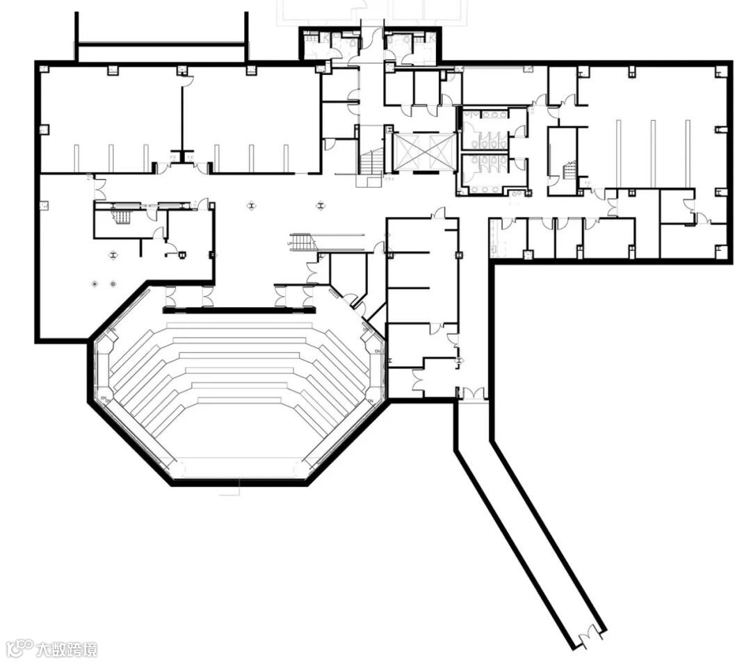
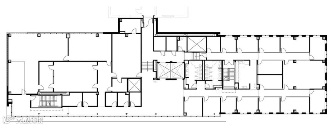
新的NBS大楼使校园边界的过渡变得顺畅,并成为学生和教师的目的地。其高效的形体设计毗邻现有的实验室设施,并通过地下隧道与另一个实验室设施相连。一个地下礼堂向南延伸,由绿色屋顶和活跃的步行广场覆盖。该设施占地77,000平方英尺,容纳了多个项目,以促进它们之间的协同作用,包括心理学和生物学以及辅助生命科学管理项目(与商学院相关)和行为生物学基础(与医学院相关)项目。
The new NBS Building smooths that transition at the edge of campus and serves as a destination for students and faculty. Its efficient bar design abuts an existing lab facility and links to another via an underground tunnel. A below-grade auditorium extends south covered by a green roof and active pedestrian plaza. The 77,000 sqf facility houses multiple programs to promote synergy among them, including Psychology and Biology as well as ancillary life sciences management program (connected with business school) and the Biological Basis of Behavior (connected with medical school) program.



点击>>工程资料免费下载
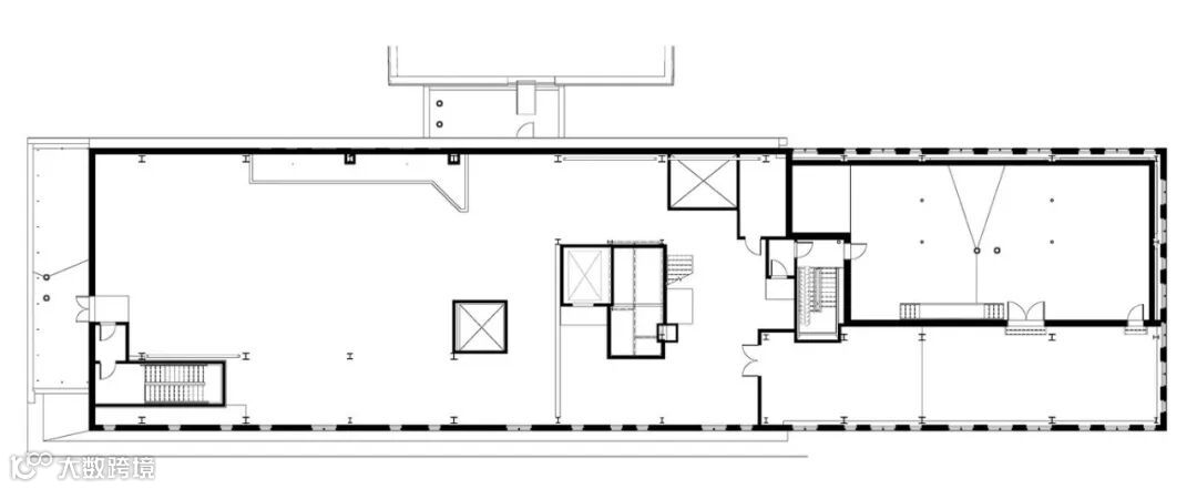
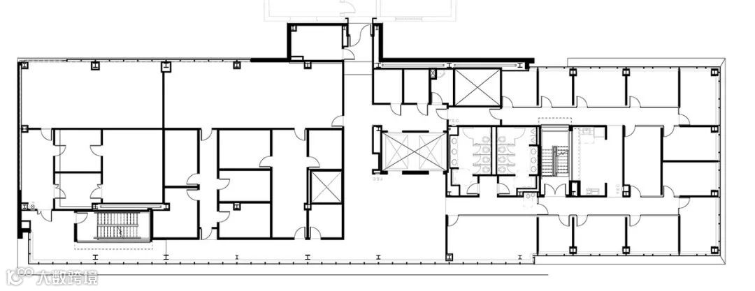
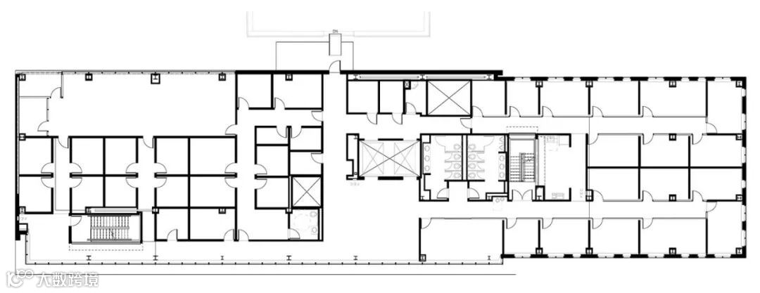
该建筑包含干物研究实验室,湿式教学设施,180个座位的礼堂,80个座位的自主学习教室以及教职员工办公室和研究生办公室,这些办公室与一系列旨在促进社交和协作的空间紧密联系在一起。建筑的形态分为功能重叠的体量。白色金属和玻璃体量将室内公共空间,流通区域,办公室连接到花园中。绿色的覆铜体量提供了经过精心控制的实验室环境,并面向公共街道。
The building contains dry research laboratories, wet teaching facilities, the 180-seat auditorium, an 80-seat active learning classroom, and faculty and graduate student offices that are tied together with a series of spaces designed to foster socializing and collaboration. The building’s bar form is divided into functional overlapping volumes. A white metal and glass volume connects indoor public spaces, circulation areas, and offices, and cantilevers into the garden. A green copper-clad volume, with a patina that will mature like a living organism, houses the carefully controlled lab environment and addresses the public street.


绿铜和白色金属在相邻的黑砖建筑之间提供了一个标点,并参考了校园中的其他绿色建筑。在建筑的南侧,沿着繁忙的街道向社区呈现公共面貌,幕墙被铝制的遮阳板覆盖,其模仿了生物的分支形式,暗示着内部的研究。仅使用两种在旋转或镜像时会相互连接的图案进行有效的设计,光影就会在建筑走廊中的遮阳板柔和的日光下翩翩起舞。NBS大楼与其他可持续发展策略一起获得了LEED银级认证。
点击>>工程资料免费下载
The green copper and white metal provide a point of punctuation between the adjacent dark brick buildings and reference other green buildings on campus. On the south side of the building, which presents a public face to the community along a busy avenue, the curtain wall is shaded by an aluminum sunscreen that mimics biological branching forms, hinting at the study within. Designed efficiently using only two patterns that connect as they are rotated or mirrored, light and shadow dance through the sunscreen softening daylighting in the building’s corridors. Together with other sustainable strategies, the NBS Building has achieved LEED Silver certification.



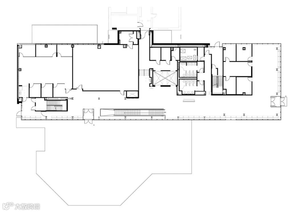
近乎透明的底层提供了一个温馨的入口,并与周围花园的自然环境无缝连接。一个长长的开放式楼梯连接底层和地下一层,在视觉上连接空间,并将光线引入低层休息室,这是一个舒适的中心聚集点,便于部门之间进行交互和协作。
穿孔的背光木质天花板为公共区域增添了温暖和细节。它的模式在流通量较大的区域加强,如入口门厅和较低层的楼梯,这表明该建筑正在适应移动。玻璃侧灯为教学实验室和团队教学教室提供了视野,展示了“科学知识”,并进一步传达了活力和透明感。
The near-transparent ground floor provides a welcoming entry and a seamless connection with the natural setting of the surrounding gardens. A long open stair connects the ground floor and lower floor, visually linking the spaces and funneling light into the lower-level lounge, a comfortable central gathering point for easy interaction and collaboration among departments. A perforated, back-lit wood ceiling adds warmth and detail to the public areas. Its pattern intensifies in areas of greater circulation such as the entry vestibule and lower level stairs, suggesting that the building is adapting to movement. Glass sidelights provide views into instructional labs and team-teaching classrooms, putting “science on display” and further conveying a sense of vitality and transparency.













场地平面图

平面图






剖面图

遮阳板

可持续策略

建筑师:SmithGroup
地点:美国 费城
面积:77000.0平方英尺
