
源自丨深圳市建筑工务署

清华大学深圳研究生院创新基地建设工程(二期)位于深圳市南山区西丽大学城清华大学深圳研究生院内,项目为一幢科研实验室,建筑高度为96.1m,分为地下2层,地上22层,总建筑面积为51485.43㎡,包括科研实验室及配套设施、地下车库、设备用房、道路、绿化等室外配套工程等。
二次结构作为建筑工程的主要组成部分,其细部节点繁多,传统的施工方式与现场管理条件难以实现精细化,以至施工现场对原材料切割的随意性较大,较普遍的存在着严重浪费、损耗的现象。本项目旨在利用BIM技术于施工前将所有砌块、圈梁、构造柱、导墙、顶砖、门窗洞口及过梁的空间位置预先做好定位及统计,同时,将非标准砌块、非标准构件提前做好工厂式加工并将所需构件、材料有针对性的提前运输至相应区域,以达到节约施工材料耗损率、降低施工成本等目的。
本项目砌体排布过程中主要参考《砌体结构工程施工质量验收规范》GB50203、《砌体填充墙结构构造》12SG614、《砌体填充墙建筑构造》12SJ105等规范、标准:
(1)灰缝设置要求。蒸压加气混凝土砌块砌体当采用水泥砂浆、水泥混合砂浆或蒸压加气混凝土砌块砌筑砂浆时,水平灰缝厚度和竖向灰缝宽度不应超过15mm;当蒸压加气混凝土砌块砌体采用蒸压加气混凝土砌块粘结砂浆时,☞喜欢一个人时的生理反应 水平灰缝厚度和竖向灰缝宽度宜为3mm-4mm。
(2)搭砌长度。砌筑填充墙时应错缝搭砌,蒸压加气混凝土砌块搭砌长度不应小于砌块长度的1/3。
(3)马牙槎长度。墙体与构造柱连接处宜砌成马牙搓。马牙搓伸入墙体60-100mm、搓高200-300mm并应为砌体材料高度的整倍数。
(4)水平系梁设置。当砌体填充墙的墙高超过4m时,直在墙体半高处设置与柱连接且沿墙全长贯通的现浇钢筋混凝土水平系梁,梁截面高度不小于60mm。
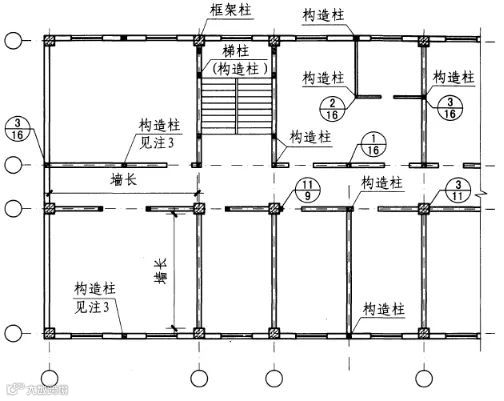
(5)构造柱设置。砌体填充墙的墙段长度大于加时或墙长大于2倍层高时,墙顶宜与梁底或板底拉结,墙体中部应设钢筋混凝土构造柱。

填充墙构造柱布置平面示意图
(6)混凝土反坎高度。厨房、卫生间、浴室等处采用轻集料混凝土小型空心砌块、蒸压加气混凝土砌块砌筑墙体时,墙底部宜现浇与填充墙同厚度的混凝土坎台,其高度宜为150-200mm。

门洞口做法图
(7)过梁设置。具体布置参照图纸设计要求。
本项目对砌筑质量要求较高,运用BIM技术对砌体工程进行模拟排布,以直观的三维模型,降低排砖过程中的空间想象成本。☞喜欢一个人时的生理反应 利用模型导出的二维白图进行施工,确保砌筑质量的同时以便施工班组能够将更多精力专注于提升砌筑观感。
在满足砌筑规范的前提条件下,通过BIM技术对本项目砌体工程进行砌块排砖布置,获得多个排砖方案。以某一墙体为例,构造柱、砌块、门洞口、过梁等布置以及材料用量如下图所示,方案二相比方案一,其构造柱布置美观、砖尺寸种类较少、切割量少,降低了材料损耗率。


砌体排砖方案(方案一 )


砌体排砖方案(方案二)
项目利用BIM技术对砌体进行排布可以明显降低砌筑过程中的材料损耗率(数据显示,现场砌筑过程中一般存在3%—5%的损耗),实现切割量少、砖尺寸种类少从而达到的材料合理管控的目的,☞喜欢一个人时的生理反应 积极响应绿色施工的号召实现最大程度的节约资源。

现场砌体工程图
经实践表明,BIM技术在砌体工程实施过程中具有以下特点:
(1)提升砌筑观感。通过BIM排砖过后,完全消除不满足规范要求的砖块,使墙体错缝更加工整、美观。
(2)提升质量管理。BIM排砖过程中,利用排砖图将责任人落实到个人,形成审核-砌筑-检查的闭环式质量管理过程。加强了总包对分包的监管力度,提升了质量管理效率。
(3)技术交底。利用BIM三维模型,直观展示砌体排布方案,避免因技术方案交底不清造成的损失。
(4)限额领料——减少二次搬运。精确统计每层及整体的砌块用量,尽量确保每个材料堆场满足施工区域的用量需求,避免二次搬运的发生。
传统建造方式的弊端之一在于成果无法有效固化,因而缺乏迭代进步的基础,BIM技术的应用恰恰能够弥补这样的不足。砌体排布成果以模型与图纸的形式存档,配合记录有经验心得的工作文档,能够将技术经验有效固化,为经验传递与技术改进,提供比文本资料更具实用价值的资料积累。
长按下方二维码→识别关注

