
源自 | 百度文库
整理 | 豆丁施工
主要参考资料如下:
1.《建筑施工扣件式钢管脚手架安全技术规范》(JGJ 130-2011)。
2.《建筑施工安全检查标准》 JGJ 59-2011。
3.《建筑施工高处作业安全技术规范》 JGJ 80-2016。
4.《安全网》GB 5725-2009。
5.《建筑施工木脚手架安全技术规范》JGJ 164-2008。
6.《建筑施工脚手架安全技术统一标准》GB51210-2016。
一、优秀案例

型钢设置合理,立杆间距均匀、顺直,色泽一致,安全网平顺。

外脚手架大角顺直,安全网绑扎牢固、网间严密。

脚手架外立面清爽、美观,广告及安全标语设置规范。

外脚手架剪刀撑搭设连续,踢脚线、腰线设置规范。

主体结构施工,做到防护先行,外架高出作业楼层1.5米以上。
二、脚手架工程安全管理要求
(一)作业人员的要求
脚手架安装与拆除人员必须是经考核合格的专业架子工,架子工应持证上岗。

(二)脚手架工程安全专项施工方案
1.脚手架工程属危险性较大的分部分项工程,架体搭设应编制专项施工方案,结构设计应进行计算,并按规定进行审核,审批。
2.对搭设高度超过50m的扣件式钢管脚手架和搭设高度超过规范要求(≧20m)的悬挑式脚手架工程,必须采取加强措施,专项施工方案必须经过专家论证。

(三)脚手架操作人员必须接受安全教育、安全技术交底。


扣件式脚手架搭设安全技术交底
(四)安全帽、安全带的佩戴。


三、扣件式落地钢管脚手架
(一)钢管
1.钢管: 脚手架钢管宜采用Φ48.3×3.6钢管。每根钢管的最大质量不应大于25.8kg。
2.质量检查
(1)应有产品质量合格证,质量检验报告。
(2)全数目测检查钢管表观质量缺陷,表面应平直光滑、不应有裂缝、结疤、分层、错位、硬弯、毛刺、压痕、严重腐蚀等缺陷,严禁钢管打孔;钢管使用前必须刷防锈漆。
(3)采用游标卡尺测量检查,外径(48.3mm)允许偏差为±0.5mm,壁厚(3.6mm)允许偏差为±0.36mm,最小允许壁厚3.24mm。
重点控制刷漆工艺(除锈、底漆、面漆)、刷漆效果


(二)扣件
1.扣件:按结构形式分对接、直角、旋转扣件,扣件在螺栓拧紧扭力达到65N·m时,不得发生破环,所用扣件规格必须与钢管外径相同。
2.质量检查:
(1)扣件应有生产许可证、质量检测报告、产品质量合格证、复试报告。
(2)扣件在使用前应逐个挑选,不允许有裂缝、变形、螺栓滑丝;扣件与钢管接触部位不应有氧化皮;扣件表面应进行防锈处理,油漆应均匀美观,不应有堆漆或露铁。
(3)扣件紧固力矩不应小于40N·m,且不应大于65N·m;扣件实验时,紧固螺栓的扭力矩为40N·m。



(三)脚手板
1.脚手板:可采用钢、木、竹材料制作,单块脚手板不宜大于30kg。
2.相关要求:
(1)冲压钢脚手板板面挠曲不得超出规范允许范围且新脚手板应有产品质量合格证,脚手板不得有裂纹、开焊、硬弯,新旧脚手板应刷防锈漆。
(2)木脚手板宽度不宜小于200mm,厚度不应小于50mm,两端宜各设置直径不小于4mm的镀锌钢丝箍两道,不得使用扭曲变形、劈裂、腐朽的脚手板。
(3)竹脚手板宜采用由毛竹或楠竹制作竹串片板、竹笆板。



(四)安全网
1.密目网的基本规格为宽1.8米,长6米,记作ML-1.8X6.0 (GB5275-2009);密目网的宽度应介于(1.2~2)m。长度由合同双方协议条款指定,但最低不应小于2m。
2.密目式安全网的网目密度应为10cm×10cm面积上大于或等于2000目,并对建筑物进行全封闭,以防扬尘;规定“1.8×6m的单张(密目)网重(质)量应在3.0KG以上。
3.密目安全网必须为阻燃产品。
4.安全标志编号连同产品合格证在每张密目网右侧配注。

其他需准备材料
质量控制要点:密目式安全网搭时,每个开眼环口应穿入系绳,系绳应绑扎在支撑架上,间距不得大于450mm。


质量控制要点:安全网搭设应绑扎牢固、网间严密,相邻密目网间应紧密结合或重叠。

(五)落地脚手架构造

脚手架主要构造图

落地式脚手架详图
1.立杆
(1)质量要求:
①立杆基础应按方案要求平整、夯实,并采取排水设施。
②每根立杆底部宜设置底座或垫板;底座、垫板均应准确地放在定位线上;垫板应采用长度不少于2跨,厚度不小于50mm,宽度不小于200mm的木垫板。
③立杆间距一致,严格按照经审批的方案施工。

(2)常见问题:




(3)构造要求:
①脚手架必须设置纵、横向扫地杆。纵向扫地杆应采用直角扣件固定在距钢管底端不大于200mm处的立杆上。横向扫地杆应采用直角扣件固定在紧靠纵向扫地杆下方的立杆上。

②脚手架立杆基础不在同一高度上时,必须将高处的纵向扫地杆向低处延长两跨与立杆固定,高低差不应大于1m。靠边坡上方的立杆轴线到边坡的距离不应小于500mm。
③单、双排脚手架底层步距均不应大于2m。单排、双排脚手架立杆接长除顶层顶步外,其余各层各步接头必须采用对接扣件连接。

④当立杆采用对接接长时,立杆的对接扣件应交错布置,两根相邻立杆的接头不应设置在同步内,同步内隔一根立杆的两个相隔接头在高度方向错开的距离不宜小于500mm;各接头中心至主节点的距离不宜大于步距的1/3。
⑤当立杆采用搭接接长时,搭接长度不应小于1m,并应采用不少于2个旋转扣件固定;端部扣件盖板的边缘至杆端距离不应小于100mm。
⑥脚手架立杆顶端栏杆宜高出女儿墙上端1m,宜高出檐口上端1.5m。

质量控制要点:


2.纵向水平杆
(1)纵向水平杆应设置在立杆内侧,单根杆长度不应小于3跨。
(2)纵向水平杆接长应采用对接扣件连接或搭接,并应符合下列规定:
①两根相邻纵向水平杆的接头不应设置在同步或同跨内;不同步或不同跨两个相邻接头在水平方向错开的距离不应小于500mm;各接头中心至最近主节点的距离不应大于纵距的1/3。

②纵向水平杆的搭接长度不应小于1m,应等间距设置3个旋转扣件固定;端部扣件盖板边缘至搭接纵向水平杆杆端的距离不应小于100mm。

③当使用冲压钢脚手板、木脚手板、竹穿片脚手板时,纵向水平杆应作为横向水平杆的支座,用直角扣件固定在立杆上;当使用竹笆脚手板时,纵向水平杆应采用直角扣件固定在横向水平杆上,并等间距设置,间距不应大于400mm。

3.横向水平杆
(1)主节点处必须设置一根横向水平杆,用直角扣件扣接且严禁拆除。
(2)作业层上非主节点处的横向水平杆,宜根据支承脚手板的需要等间距设置,最大间距不应大于纵距的1/2。
(3)当使用冲压钢脚手板、木脚手板、竹串片脚手板时,双排脚手架的横向水平杆的两端,应用直角扣件固定在纵向水平杆上;单排脚手架的横向水平杆的一端应用直角扣件固定在纵向水平杆上,另一端应插入墙内,插入长度不应小于180mm。

4.脚手板的铺设
(1)作业层脚手板应铺满、铺稳、铺实,端部脚手板探头长度应取150mm,其板的两端均应固定于支撑杆件上。
(2)冲压脚手板、木脚手板、竹串片脚手板等,应设置在三根横向水平杆上。当脚手板长度小于2m时,可采用两根横向水平杆支撑,但应将脚手板两端与横向水平杆可靠固定,严禁倾翻。
(3)脚手板的铺设应采用对接平铺或搭接铺设;脚手板对接平铺时,接头处应设两根横向水平杆,脚手板外伸长度应取130mm -150mm,两块脚手板外伸长度的和不应大于300mm;脚手板搭接铺设时,接头应支在横向水平杆上,搭接长度不应小于200mm,其伸出横向水平杆的长度不应小于100mm。

5.连墙件
(1)应靠近主节点设置,偏离主节点的距离不应大于300mm。
(2)应从底层第一步纵向水平杆处开始设置,当该处设置有困难时,应采用其它可靠措施固定。
(3)应优先采用菱形布置,或采用方形、矩形布置。开口型脚手架的两端必须设置连墙件,连墙件的垂直间距不应大于建筑物的层高,并不应大于4m。

(4)连墙件中的连墙杆应呈水平设置,当不能水平设置时,应向脚手架一端下斜连接。
(5)连墙件必须采用可承受拉力和压力的构造。对高度24m以上的双排脚手架,应采用刚性连墙件与建筑物连接。
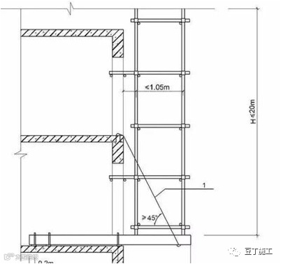
(6)当脚手架下部暂时不能设置连墙件时应采取防倾覆措施。当设抛撑时,抛撑应采用通长杆件,并用旋转扣件固定在脚手架上,与地面的倾角应在450-600之间;连接点中心至主节点的距离不应大于300mm。抛撑应在连墙件搭设后方可拆除。

构造要求:

6.剪刀撑
(1)高度在24m及以上的双排脚手架应在外侧全立面连续设置剪刀撑;高度在24m以下的单、双排脚手架,均必须在外侧两端、转角及中间间隔不超过15m的立面上各设置一道剪刀撑,并应由底至顶连续设置。
(2)剪刀撑斜杆的接长应采用搭接或对接,搭接长度不应小于1m,并应采用不少于2个旋转扣件固定,端部扣件的边缘至杆端距离不应小于100mm。
(3)开口型双排脚手架的两端均必须设置横向斜撑,横向斜撑应在同一节间,由底至顶层呈之字形连续布置。

(4)每道剪刀撑宽度不应小于4跨,且不应小于6m,斜杆与地面的倾角应在450--600之间。
(5)剪刀撑斜杆应用旋转扣件固定在与之相交的横向水平杆的伸出端或立杆上,旋转扣件中心线至主节点的距离不应大于150mm。


四、型钢悬挑外脚手架
(一)构配件
1.钢管、扣件、安全网、脚手板等构配件同4节。
2.型钢悬挑梁宜采用双轴对称截面的型钢。悬挑钢梁型号及锚固件应按设计确定,钢梁截面高度不应小于160mm。悬挑梁尾端应在两处及以上固定于钢筋混凝土梁板结构上。锚固型钢悬挑梁的U型钢筋拉环或锚固螺栓直径不宜小于16㎜。


3.用于锚固的U型钢筋拉环或螺栓应采用冷弯成型。U型钢筋拉环、锚固螺栓与型钢间隙应用钢楔或硬木楔楔紧。


4.钢丝绳:
(1)每个型钢悬挑梁外端宜设置钢丝绳或钢拉杆与上一层建筑结构斜拉结。钢丝绳、钢拉杆不参与悬挑钢梁受力计算。
(2)钢丝绳与建筑结构拉结的吊环应使用HPB300级钢筋,其直径不宜小于20㎜,吊环预埋锚固长度应符合现行国家标准《混凝土结构设计规范》GB50010中钢筋锚固的规定。

5.悬挑钢梁悬挑长度应按设计确定,固定端长度不应小于悬挑段长度的1.25倍。两个后锚固环间距应为200mm,锚固环后悬挑梁留头不小于200mm。
6.悬挑钢梁支撑点应设置在结构梁上,不得设置在外伸阳台或悬挑板上,否则应采取加固措施。

7.型钢悬挑梁悬挑端应设置能使脚手架立杆与钢梁可靠固定的定位点,定位点离悬挑梁端部不应小于100mm。定位点可采用竖直焊接长0.2m、直径25mm-30mm的钢筋或短管等方式。
8.型钢悬挑梁固定端应采用2个及以上U型钢筋拉环或锚固螺栓与建筑结构梁板固定,U型钢筋拉环或锚固螺栓应预埋至混凝土梁、板底层钢筋位置,并应与混凝土梁、板底层钢筋焊接或绑扎牢固,其锚固长度应符合现行国家标准《混凝土结构设计规范》中钢筋锚固的规定。

9.当型钢悬挑梁与建筑结构采用螺栓钢压板连接固定时,钢压板尺寸不应小于100×10(宽×厚);当采用螺栓角钢压板连接时,角钢的规格不应小于3mm×63mm×6mm。锚固位置设置在楼板上时,楼板厚度不宜小于120mm。如果楼板的厚度小于120mm应采取加强措施。

10.挑钢梁前端应采用吊拉卸荷,吊拉卸荷的吊拉构件有刚性的,也有柔性的,如果使用钢丝绳,其直径不应小于14㎜,使用预埋吊环其直径不宜小于20㎜(或计算确定)。钢丝绳卡不得少于3个。


11.架体作业层脚手板下应采用安全平稳兜底,以下每隔10m应采用安全平网封闭。架体底层沿建筑物结构边缘在悬挑钢梁与悬挑钢梁之间应采取措施封闭。架体底层应进行封闭。


悬挑脚手架
1.悬挑脚手架检查评定保证项目包括:施工方案、悬挑钢梁、架体稳定、脚手板、荷载、交底与验收。一般项目包括:杆件间距、架体防护、层间防护、构配件材质。
2.脚手架底部应按规范要求沿纵横方向设置扫地杆,悬挑梁上表面应加焊钢筋以固定立杆,悬挑层用满铺模板进行防护。
3.脚手架底部立杆内侧应设置180mm高踢脚板。
4.架体阴阳转角处应设置四根立杆,大横杆应连通封闭。
5.剪刀撑接长必须采用搭接。
6.剪刀撑、连墙件必须随脚手架同步搭设、同步拆除。

悬挑层搭设效果:


1.上下层外架的转角立杆,在布置槽钢时应特别注意将型钢上的钢管定位桩与下一层架子的立杆定位在同一铅垂线上,确保大角正直。
2.剪刀撑全立面连续设置。
悬挑层封闭效果:

质量控制要点:

五、检查与验收
脚手架及其地基基础应在下列阶段进行检查与验收:
1.基础完工后及脚手架搭设前;
2.作业层上施加荷载前;
3.每搭设完6m--8m高度后;
4.达到设计高度后;
5.遇有六级强风及以上风或大雨后,冻结地区解冻后;
6.停工超过一个月。


六、脚手架拆除
脚手架拆除应按专项方案施工,拆除前应做好下列准备工作:
1.拆除前应对施工人员进行交底。
2.应全面检查脚手架扣件连接、连墙件、支撑体系是否符合构造要求。
3.应根据检查结果补充完善脚手架专项方案中的拆除顺序和措施,经审批后方可实施。
4.应清除脚手架上杂物及地面障碍物。
5.设置警戒隔离区,由专人监控。

脚手架拆除要求:
1.单、双排脚手架拆除作业必须由上而下逐层进行,严禁上下同时作业。
2.连墙件必须随脚手架逐层拆除,严禁先将连墙件整层或数层拆除后再拆脚手架。
3.分段拆除高差大于两步时,应增设连墙件加固。
4.当脚手架拆至下部最后一根长立杆的高度时,应先在适当的位置搭设临时抛撑加固后,再拆除连墙件。
5.卸料时各构配件严禁抛掷至地面。
6.架体拆除作业应设专人指挥,当有多人同时操作时,应明确分工、统一行动,且应具有足够的操作面。

七、安全管理
1.脚手架安装与拆除人员必须是经考核合格的专业架子工。架子工应持证上岗。
2.搭拆脚手架人员必须戴安全帽、系安全带、穿防滑鞋。
3.钢管上严禁打孔。
4.作业层上的施工荷载应符合设计要求,不得超载。不得将模板支架、缆风绳、泵送混凝土和砂浆的输送管等固定在架体上;严禁悬挂起重设备,严禁拆除或移动架体上安全防护设施。
5.夜间不宜进行脚手架搭设与拆除作业。
6.脚手架的安全检查与维护,应按规定进行。


7.当有六级强风及以上风、浓雾、雨或雪天气时应停止脚手架搭设与拆除作业。雨、雪后上架作业应有防滑措施,并应扫除积雪。
8.脚手板应铺设牢靠、严实,并应用安全网双层兜底。施工层以下每隔10m应用安全网封闭。
9.单、双排脚手架、悬挑式脚手架沿架体外围应用密目式安全网全封闭,密目式安全网宜设置在脚手架外立杆的内侧,并应与架体绑扎牢固。
10.在脚手架使用期间,严禁拆除下列杆件:
主节点处的纵、横向水平杆,纵、横向扫地杆; 连墙件。
11.当在脚手架使用过程中开挖脚手架基础下的设备基础或管沟时,必须对脚手架采取加固措施。
12.临街搭设脚手架时,外侧应有防止坠物伤人的防护措施。
13.在脚手架上进行电、气焊作业时,应有防火措施和专人看守。
14.搭拆脚手架时,地面应设围栏和警戒标志,并应派专人看守,严禁非操作人员入内。
八、操作平台
(一)一般规定
1.操作平台应通过设计计算,并应编制专项方案,架体构造与材质应满足国家现行相关标准的规定。
2.操作平台的临边应设置防护栏杆(≧1.2m),单独设置的操作平台应设置工人上下、踏步间距不大于400mm的扶梯。
3.应在操作平台明显位置设置标明允许负载值的限载牌及限定允许的作业人数,物料应及时转运,不得超重、超高堆放。
4.操作平台使用中应每月不少于1次定期检查,应由专人进行日常维护工作,及时消除安全隐患。
5.操作平台的构造、荷载要求及搭设与拆除,与脚手架相近,为方便现场的使用与管理,故要求符合相关脚手架规范的要求。

(二)悬挑式操作平台
1.悬挑式操作平台设置应符合下列规定:
(1)操作平台的搁置点、拉节点、支撑点应设置在稳定的主体结构上,且应可靠连接;
(2)严禁将操作平台设置在临时设施上;
(3)操作平台的结构应稳定可靠,承载力应符合设计要求。
2.悬挑式操作平台的悬挑长度不宜大于5m,均布荷载不应大于5.5KN/㎡,集中荷载不应大于15KN,悬挑梁应锚固固定。
3.斜拉方式的悬挑操作平台,平台两侧的连接吊环应与前后两道斜拉钢丝绳连接,每一道钢丝绳应能承载该侧所有荷载。
4.悬挑式操作平台的外侧应略高于内侧;外侧应安装防护栏杆并应设置防护挡板全封闭。

5.人员不得在悬挂式操作平台吊运、安装时上下。
6.悬挑式操作平台安装时,钢丝绳应采用专用的钢丝绳夹连接,钢丝绳夹数量应与钢丝绳直径相匹配,且不得少于4个。建筑物锐角、利口周围系钢丝绳出应加衬软垫物。
7.悬挑式操作平台应设置4个吊环,吊运时应使用卡环,不得使吊钩直接钩挂吊环。吊环应按通用吊环或起重吊环设计,并应满足强度要求。
8.强制性条文:悬挑式操作平台必须与建筑物、构筑物结构可靠连接,平台在建筑物、构筑物上的搁置点、拉节点支撑点可采用锚固环、螺栓等方式可靠连接,防止平台受外力冲击而发生移动。
9.悬挑式操作平台是人员临时作业的场所,周边的临边防护设施封闭应严密,防止人员、材料的滑落。


长按下方二维码→识别关注




