
近日,一份网帖和律师函图片在网上流传引发大量关注,可能很多业内人士都看过了。
深圳某设计院为江西九江市一小区楼盘设计的消防电梯前室宽度不足2.4m,违反《建筑设计防火规范》GB50016-2014(2018版)第73.5条2款的规定,导致消防验收无法通过,开发商发律师函起诉设计单位,涉及损失可能高达15亿。


住建部规范明确:消防电梯前室的短边不应小于2.4m
律师函内容摘要:
致:**设计有限公司:
2023年3月9日消防验收部门以专家提出项目连廊户型的消防电梯前室短边尺寸小于2.4m,违反《建筑设计防火规范》GB50016-2014(2018版)(以下简称18版规范)第73.5条2款的规定为由拒绝为****小区办理验收。事情发生后,**置业第一时间联系了贵公司和施工图审查公司予以协调解决。但事情过去至今已40天有余,仍未有任何实质进展。
项目连廊户型的消防电梯前室短边尺寸小于2.4m,违反《建筑设计防火规范》GB50016-2014(2018版)(以下简称18版规范)第73.5条2款的规定导致消防无法验收的责任,按照相关规定,主要责任在于贵司,次要责任在于施工图审查公司。
前述问题未解决可能带来的后果:**置业现已销售房屋1000余户,销售房款共计约15亿左右,尚有600余户还未对外出售,房款规模共计约5亿左右;按照**置业与购房者签订的购房合同约定,房屋逾期在90天内的,逾期付款违约金在总房款的万分之一每天;房屋逾期在90天外的,购房主可以选择退房,并要求**置业按照购房款10%赔偿违约金。值此房地产市场低迷之际,由于贵司与施工图审查公司的过错,**小区项目恐成为**市第一个开启退房先河的项目,届时损失粗略估计,恐在15亿左右,影响之大,后果之严重,请贵司一定予以重视,并妥善予以解决。”


4月28日下午,有媒体记者致电九江市住房和城乡建设局建设工程消防科。该科工作人员表示,情况属实,已介入调查协调处理。“目前科室相关工作人员正在小区开现场协调会。”
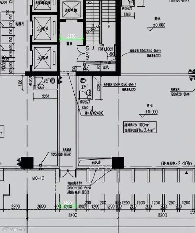
什么叫短边尺寸?如下图:

而这个项目的短边尺寸却不到2.2米,如下图:

住建部关于消防电梯前室设计规范要求:

《建筑设计防火规范》GB50016-2014(2018年版):
7.3.5 除设置在仓库连廊、冷库穿堂或谷物筒仓工作塔内的消防电梯外,消防电梯应设置前室,并应符合下列规定:
1.前室宜靠外墙设置,并应在首层直通室外或经过长度不大于30m的通道通向室外;
2.前室的使用面积不应小于6.0m²,前室的短边不应小于2.4m;与防烟楼梯间合用的前室,其使用面积尚应符合本规范第5.5.28条和第6.4.3条的规定;
3.除前室的出入口、前室内设置的正压送风口和本规范第5.5.27条规定的户门外,前室内不应开设其他门、窗、洞口;
4.前室或合用前室的门应采用乙级防火门,不应设置卷帘。
《建筑防火通用规范》GB55037-2022(2023年6月1日起施行):
2.2.8 除仓库连廊、冷库穿堂和筒仓工作塔内的消防电梯可不设置前室外,其他建筑内的消防电梯均应设置前室。消防电梯的前室应符合下列规定:
1.前室在首层应直通室外或经专用通道通向室外,该通道与相邻区域之间应采取防火分隔措施。
2.前室的使用面积不应小于6.0m²,合用前室的使用面积应符合本规范第7.1.8条的规定;前室的短边不应小于2.4m。
3.前室或合用前室应采用防火门和耐火极限不低于2.00h的防火隔墙与其他部位分隔。除兼作消防电梯的货梯前室无法设置防火门的开口可采用防火卷帘分隔外,不应采用防火卷帘或防火玻璃墙等方式替代防火隔墙。
值得注意的是,《建筑防火通用规范》GB 55037-2022将于2023年6月1日起正式实施。同时废止下列工程建设标准相关强制性条文:
点击可查看2018版规范全文:
违反强制性规范的后果很严重,这件事情也重重敲响一记警钟。
截至目前,住建部已经发布37本全文强制性工程建设规范(GB55001~55037),
声明:转载此文是出于传递更多信息之目的,不为商业用途。文字和图片版权归原作者所有,若有来源标注错误或侵犯了您的合法权益,请作者与我们联系,我们将及时更正、删除,谢谢。

