
来源:中国BIM门户网
一、欧洲的双面叠合剪力墙结构体系
双面叠合剪力墙结构体系:由叠合墙板、叠合楼板、叠合梁以及叠合阳台等构件,辅以必要的现浇混凝土形成的剪力墙结构。
优点:上下层剪力墙现浇连接,内外墙板与内芯整体受力;预制部分代替了部分模板,可全自动化生产。
缺点:适用范围目前受限。
▲双面叠合剪力墙
▲叠合楼板
▲叠合阳台
▲叠合梁
▲预制楼梯
▲边缘构件构造形式
日本
一、日本的建筑工业化的发展历程
日本的建筑工业化是在满足住宅市场需求、不断提高住宅品质的过程中逐步发展起来的。战后日本面临的最大问题就是住房紧缺。据不完全统计, 20世纪40年代日本当时缺房户达420万户,占当时人口1/4。为了解决“房荒”问题,日本政府开始采用工厂生产住宅的方法进行大规模的住宅建造。直到60年代初住房问题才得到缓解。
此后,日本的住宅建造逐步实现了从“单纯追求数量”到“数量与质量并重”再到“多方面综合发展”的转变,并在政府的大力支持下获得了快速发展。经过近60多年的发展,日本的住宅产业已形成“一套较完整体系”,是住宅产业化发展最为成熟的国家之一。
日本的建筑工业化发展道路与其他国家相比差异较大,除了主体结构工业化之外,借助于其在内装部品方面发达成熟的“产品体系”,日本在内装工业化方面发展同样非常迅速,形成了“主体工业化”与“内装工业化”协调发展格局。从上世纪六十年代到九十年代,工业化住宅占所有住宅比例从10%提升到28%左右。
二、主体结构工业化体系分类
日本的主体结构工业化以预制装配式混凝土PC结构为主,同时在多层住宅中也大量采用钢结构集成住宅和木结构住宅。
PC结构住宅经历了从WPC(预制混凝土墙板结构)到RPC(预制混凝土框架结构)、WRPC(预制混凝土框架-墙板结构)、HRPC(预制混凝土-钢混合结构)的发展过程,具体的发展示意如下图所示。
三、WPC结构体系
日本的WPC体系主要由PC墙板组成结构的竖向承重体系和水平抗侧力体系,PC墙板与PC楼板之间,以及PC墙板自身之间采用干式连接或半干式连接。
WPC体系作为一种简易连接的PC结构体系,在日本主要适用于5层及以下纵横墙布置均匀的住宅类建筑。WPC体系是日本工业化住宅早期发展的主要结构形式之一,目前在日本已经较少采用WPC工法体系。
▲日本WPC工法体系示意
在WPC工法的基础上,结合PC框架及湿式连接节点,研发出了带预制墙板的PC框架-墙板体系(WRPC),其主要运用在6-15层的住宅中。
由于采用部分PC框架代替了PC墙板,因此其建筑平面布局更加灵活,同时由于采用湿式连接节点,因此其整体结构的安全性、抗震性能及适用高度都有所提高。
为适应建筑平面布局和PC结构体系特点,其采用的PC框架柱通常为扁平型的壁式框架,PC墙板可以是单向布置,也可以是双向布置。
▲日本WRPC工法体系示意

四、RPC结构体系
日本大量采用PC框架体系(RPC),基于日本建筑结构设计方法,有如下特点:
1、由于框架结构延性好、抗震性能好、结构受力明确、计算简单,日本的混凝土结构自身以钢筋混凝土框架结构为主。
2、由于填充和围护结构大量采用成品轻质板材,且板材与主体结构之间采用柔性连接,因此日本的混凝土框架结构在地震作用下的层间变位限值要明显大于我国,同时结合高强混凝土、高强钢筋、建筑减隔震措施的运用,日本的混凝土框架结构可以运用在高层或超高层建筑中。
3、日本的住宅一般为精装修交房,且大量采用SI内装工业化体系,采用集成化内装部品,因此框架结构自身的梁、柱对建筑户型影响较小。
4、PC框架体系在等同现浇的设计思路下,其构件的加工和现场安装施工相对于其他体系而言要简单方便。
▲日本RPC工法体系示意
五、HPC结构体系
虽然日本的PC结构体系以RPC为主,但日本的各大建筑企业在此基础上均研发了一些具有各自技术特点的其他PC工法体系,其中HPC工法就是典型案例。
HPC工法是将钢结构与PC结构相融合的PC工法,结合了预制混凝土结构和钢结构的优点,广泛运用于办公类建筑中。
六、如何做框架?
日本考察交流:日本并非所有的高层建筑都采用隔震、减震等措施,大部分还是采用传统的抗震构造,超高层住宅几乎清一色为框架结构。
近年来随着技术的进步和要求的不断提高,特别是311大地震后,在日本采用隔震、减震措施的建筑越来越多,也是将来的一大趋势。
在以抗震构造设计的超高层框架结构中,不可避免的会有大柱、大梁,影响室内使用。
▲日本框架结构超高层住宅(48+2层)施工速度统计
解决办法:
采用高强钢筋和高强混凝土来减小构件尺寸。
东云项目梁柱主筋强度等级为490MPa,箍筋685Mpa,首层柱混凝土强度60Mpa,而东京双塔则高达130Mpa。
▲日本RPC结构混凝土强度
解决办法:
通过合理的户型分割并配合精装修来尽量减少大柱、大梁对室内空间的影响;
日本还有一套比较合理的面积计算原则,建筑面积只计算套内面积,阳台、过道则不算面积。
▲边梁外推及上反梁设计
七、日本为什么用固定台座工艺?
▲配备自动生产设备的固定台座工艺
▲日本RPC结构套筒灌浆施工
中国
一、中国的中高层住宅以剪力墙结构为主
优点:
用钢筋混凝土墙板来代替框架结构中的梁柱,同时承受全部水平和竖向荷载;
侧向刚度大,空间整体性好,水平力作用下抵抗变形的能力墙强,抗震性能好,材料用量省;
房间内不会露梁柱,整齐美观,不影响使用。
缺点:
不容易满足大空间需求的房间,空间改造麻烦;
理论计算方法比较复杂,尤其是剪力墙开洞的影响;
由于空间分割及墙体开洞,构件标准化比较困难。
适宜于建造层数较多、对大空间要求不高的高层建筑,如住宅。
差异原因:
国内外差异-- 历史、文化
中国:秦砖汉瓦;不希望露梁露柱。民众对日照要求较高,板式建筑受欢迎。
国外:传统木结构
国内外差异– 标准规范
土地紧缺,以高层为主
按照国家抗震和高层建筑规范要求,高层建筑以剪力墙和框架-剪力墙结构为主,框架结构的使用高度和层间位移角控制较严。
二、结构体系选择
现阶段推进工业化,应立足于中国规范标准体系、经济技术发展水平、行业发展水平和客户需求,并且充分考虑中国不同地区的特点和要求,选择并发展适合于本地区特点的工业化结构体系和技术体系,循序渐进的推进工业化进程。
从技术角度讲,框架结构受力明确,构件易于标准化、定型化,也利于采用SI分离技术,最适合作为工业化结构体系,应积极进行研究。应积极发展新型剪力墙结构体系。
三、EVE装配式剪力墙结构建筑体系
▲预制楼梯成组立模
▲EVE预制圆孔墙板成组立模生产线
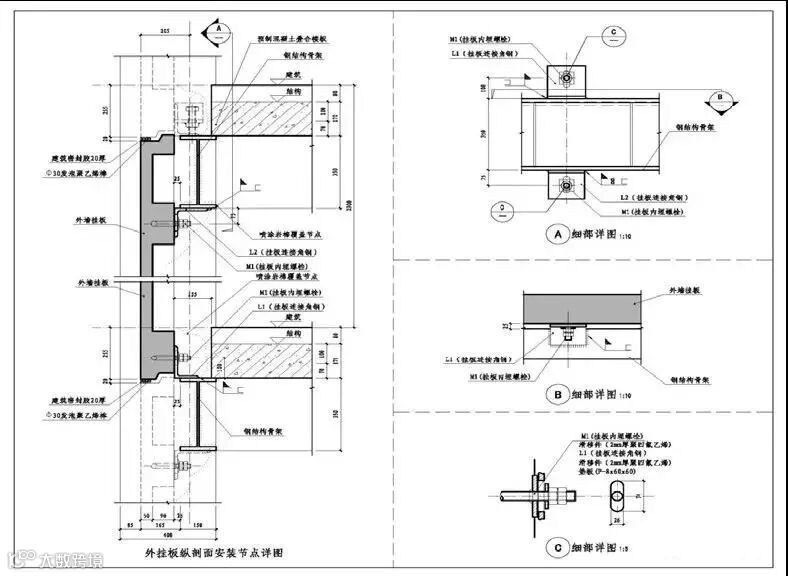
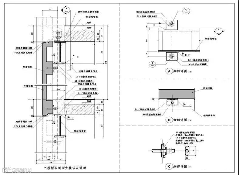
四、钢结构外墙板维护结构
五、纵肋叠合剪力墙体系
免责提示:文中图片来自于网络,版权归原作者及原出处所有。如涉侵权或原版权所有者不同意转载,请及时联系我们,以便立即删除。
往期回顾




