
来源:筑龙论坛
如有侵权,请联系删除
为了提高结构质量,统一施工标准,规范工序作业,结合“实测实量”相关制度及公司现状编制模板工程操作指引,模板工程作为辅助性结构,模板工程的优劣直接关系着混凝土工程的质量,请项目部认真学习、贯彻落实相关要求。
一、原材料控制:
1、剪力墙、柱及梁模板建议选用黑模板,平板建议选用竹胶板;梁底模板须加2 根木方。


2、剪力墙、柱模板竖楞应采用5#槽钢50*100mm 的木方加固;板模下横楞宜采用50*100mm 的木方。


3、楼板支撑体系推荐采用钢管扣件式、碗扣式或插销式轮扣架作为模板支撑体系,不得使用门式架作为支撑体系。

钢管扣件式脚手架

碗扣式脚手架

轮扣式脚手架
二、模板加工及施工准备:
1、施工前应根据设计图纸及专项方案进行图纸深化设计,绘制柱、墙、梁板配模图;并将配模图张贴在模板加工场指导模板加工。


模板加工图
2、项目部组织作业人员进行交底培训,使班组及工人了解公司的要求及施工标准。


组织交底培训
3、采用精密木工机床裁切模板,确保加工尺寸,减少模板偏差。


4、墙柱模板在集中加工场统一弹线钻洞,模板拼装后统一对拉螺杆间距,根据模板尺寸,每张模板宜为8 个孔。如模板尺寸为1830*915*18,板中孔间距为45.7cm,孔距板边为22.8cm。旧木方或者规格不统一的木方使用前应过刨,保证截面尺寸一致。




5、主体结构施工在楼层内建立轴线控制网(内控法),所有主控线、轴线交叉位置必须采用红油漆做好标识,楼层内控制线必须采用激光铅垂仪进行传递。


6、按翻样图弹出所有的梁、柱、墙板边线,并在全部墙柱边30cm 处弹下口双控制线,用以复核墙、柱模板下口位置。墙板及柱的下方利用墙筋及柱筋焊钢筋限位。
三、模板安装过程控制:
1、墙、柱模板:
(1)梁墙交接处,梁底模在墙封头板处选用优质模板(宜采用黑模板),周转时表面及侧边彻底清理,脱模剂涂刷均匀;立剪力墙前先计算好剪力墙模板净高,如:剪力墙模板净高=(层高-楼板厚度-模板厚度-10mm)墙板配置时底部预留净空不大于10mm,不得随意采用塑料袋、木楔等杂物垫支模板,混凝土施工前墙根部缝隙采用砂浆填嵌严密;对墙模底部存在较大高差的板面进行找平、打凿清理,使墙模标高一致;或者在墙柱根部满钉压脚板,防止漏浆及模板移位。


(2)墙、柱模板加固不得少于五道对拉螺杆,应做到下密上宽原则,底部两道对拉螺杆必须采用双螺母安装。螺杆间距不得超过500*500mm,第一排螺杆离地不大于250mm,最上面一排螺杆距顶板不大于500mm;墙柱侧模选用5#槽钢或50*100mm标准方木做竖楞,竖楞间距不大于200mm,均匀布置。槽钢、方木不得混合使用。



(3)剪力墙、柱侧模拼接,尽量避免小块模板上墙,如上墙则必须拼接在中部,不允许在底部或底部拼接。


(4)异形柱阴角部位宜采用阴角扣件或山型卡加固,有效的防止胀模,禁止使用扣件加固;转角模板内两侧均匀设置水泥内撑条,控制模板截面尺寸。


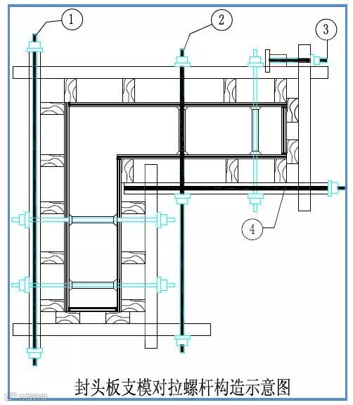
(5)剪力墙的封头板易胀模,通过以下方法可形成加固体系,增强模板刚度。

①号对拉螺杆适用于较短剪力墙封头板加固;
②号对拉螺杆适用于较短剪力墙,一般长度在1 米以内,封头板加固;
③号对拉螺杆适用于较长剪力墙,一般长度在3 米以上,封头板加固;
④号对拉螺杆适用于L 形转角且不利于加固固定,封头板加固。

①号剪力墙对拉螺杆加固方式,在较短剪力墙两侧,采用对拉螺杆进行对拉加固。
②号剪力墙对拉螺杆加固方式,在较短剪力墙一侧和中间,采用对拉螺杆进行对拉加固。

③号剪力墙对拉螺杆加固方式,利用原剪力墙支模主龙骨钢管焊制短节钢管,然后采用对拉螺杆安装加固。

④号剪力墙对拉螺杆加固方式,在L形剪力墙处,利用另一墙面的主龙骨作为固定点,采用对拉螺杆加固。)

1、剪力墙在封头位置处,应焊制墙面和封头模板的定位钢筋,或采用梯子筋;
2、封头板侧边应过刨确保平直,采用硬拼安装。如模板有损耗时采用双面胶防止漏浆;
3、封头板采用内夹墙面模板,外部背楞方木和钢管加固方式安装;
4、墙面离封头板10cm 处,安装对拉螺杆。


剪力墙封头板边10cm 处,安装对拉螺杆。
(6)墙、柱模板安装后采用斜撑或者斜拉方式进行加强固定,确保模板稳定,保证模板垂直度。



(7)外围墙柱模板安装时须下挂200mm,距楼层面以下100mm 处预埋螺杆,待上部支模前,先贴好双面胶,底部与外接螺杆连接,拧紧加固,防止错台现象,防止漏浆。




(8)跨梁部位模板安装、加固时,水平方木或槽钢应通长或伸入梁侧模100-150mm,确保跨梁部位模板平整度。


(9)支设平板模板时,在墙柱上口30cm 处的模板上弹线做定位控制。根据上口控制线进行墙柱上口、边模、吊模定位。


(10)模板应在现场整体拼装后安装,模板应竖向拼缝,竖向接缝处必须设置背楞方木龙骨和撑筋;水平模板接缝的两侧必须有撑筋。



(11)采用线锤和钢尺对安装好的墙、柱模板垂直度、平整度进行复核,对偏差超过3mm 的模板进行调整、加固,并重新复核。


2、梁、板模板:
(1)根据模板专项施工方案搭设满堂脚手架,确保立竿间距均匀(一般按900mm~1000mm 间距安装,最大处不允许大于1200mm);立杆必须垂直于楼面,纵横方向都要拉线定位,排列一线。水平横杆步距不大于1500mm,扫地杆设置规范;禁止使用门字架作为模板支撑系统。



a、顶板、梁标高允许偏差±3mm,合格率必须达到95%以上,平整度允许偏差3mm,合格率必须达到95%以上;
b、顶板模板间拼缝间隙不大于1mm,拼缝处两块模板间的高低差不大于1mm;
c、在混凝土浇筑前,木模板应浇水湿润,但模板内不应有积水;
d、模板与混凝土的接触面应清理干净并涂刷隔离剂。
关键点:
a、墙板、梁底板及侧模的标高要绝对准确,与支模架水平龙骨标高一致;
b、顶模铺设完成前,在上层钢筋上提前抄测水平点,支模过程中实时复核。
(2)墙、柱边第一排立杆离墙柱梁应在500mm 范围内。如采用顶托,则顶托伸出长度应控制在200mm 以内,并采用双钢管做水平支撑,钢管伸出顶托悬臂端长度应在300mm以内。



方木与6 号槽钢可配合使用,只在结构板的拼缝之处使用方木,确保模板的平整度和减少木材使用。
墙板在最上端应设水平木龙骨一道与顶板边缘平齐加固,通长设置。

a、楼板支模木龙骨或型钢布置要求均匀,间距不超出300mm(板厚150mm 内);
b、木龙骨或型钢布置距墙面的距离控制在150mm 以内,悬挑长度控制在250mm 以内为宜;
c、模板缝同次龙骨同向处,下方敷设方木。
(3)利用水平仪引测标高至梁底立杆上,对梁底板、侧板进行定位、安装。利用水平尺检查梁侧板垂直度,对不大于600mm 高的梁侧板两侧设置三角型翼板进行固定,大于600mm 高的梁侧模采用对拉螺杆进行加固。

a、搁置梁底板的主龙骨宜加固在横向水平杆上,便于梁侧模加固,或在梁底加设梁卡具,间距不大于500mm;
b、梁侧模上端水平木龙骨应与墙板连接设置或设企口连接,不应断开;
c、平板铺设前应对剪力墙、梁模板标高利用主筋上的50 线进行复核。



a、同一作业面上所用的模板、方木必须保证厚度一致;梁底板、梁侧模边缘应过刨,保证拼缝严密。
b、梁侧模就位后、平板加固前应采取措施控制梁截面宽度,梁侧模的垂直度,高度大于600mm 的梁中间设一排对拉螺杆。


梁、墙节点支模构造
a、梁墙交接处,梁底模在墙封头板上方,与封头板内表面平齐。
b、采用墙板夹封头板的支模方式。
C、封头板与梁底板处加固安装与墙板阴角处安装加固方式相同。

采用线锤定位梁底模板

梁底模板固定
(4)梁底模板固定后,施工员对模板位置及标高进行复核验收;梁侧模加固后用钢尺检查梁上口模板宽度。

(5)平板模板铺设时,板块接缝位置应设置方木支撑,板缝边须用铁钉钉在方木上。


(6)在铺设平板模板时,利用红外线水平仪、钢尺等工具对平板质量加强过程检验频率,对不合格的区域进行及时调整。


(7)在板面上采用扫平仪及钢卷尺对模板表面标高及平整度进行复核、验收,满足要求方可进行下道工序施工。


(8)梁、板砼浇筑时,派专人对板平整度及墙柱垂直度进行跟踪检查。


3、细部结构模板:
(1)楼面高差部位:在高低跨处焊定型马凳,控制水平标高及轴线位置,根据不同的高度选用不同的马凳,吊模采用型钢或方木制作。




(2)飘板及线条模板:线条挂板采用定型化支撑控制标高。


(3)外围梁模板:在外围板模上埋设拉杆,控制外墙、梁模板上口位置,模板内采用砼预制块做内撑,良好的控制截面尺寸。上下层柱接头部位也可以再次利用此拉杆,控制外围柱底不向外鼓。


(4)楼梯模板:建议采用定制钢模或者封闭式木模,可避免踏步板加固不牢变形。也可采用模板板条加方木进行加固。




(5)砼反坎模板:卫生间砼坎模板安装加固时采用定型U 形卡,有效控制模板刚度,避免采用铁丝加固产生渗漏隐患。


四、检查、验收
1、质量标准

2、模板安装完成后由项目部质量岗位人员实测合格后,放可进行下道工序施工。


