
视频:武汉天蝎建筑装备有限公司
深圳龙柏建筑装备有限公司
▼全钢智能型爬架组装演示
一、什么是升降脚手架体系
升降脚手架(爬架) ,它能沿着建筑物往上爬或下降。这种体系使脚手架技术完全改观:简化了脚手架的拆装工序(一次组装后一直用到施工完毕),且不受建筑物高度的限制,极大的节省了人力和材料。并且在安全角度也较于传统的脚手架有较大的改观。
爬架主要有传统钢管爬架、半钢式爬架、全钢式爬架三种。



二、全钢式升降脚手架优点
1、作业环境
与传统双排架相比 , 极大改善了作业环境 , 全钢式升降脚手架 ( 以下简称全钢架 ) 外立面采用钢板冲孔网 ,脚手板采用钢制花纹钢板及翻板 , 使得高空临边作业如同室内一般。

封闭良好的施工环境,杜绝了高空坠落和物体打击,将高层建筑施工事故大幅减少。


2、防火全部钢构件,无可燃烧材料,消除火灾消防隐患。


3、可靠性

4、 适用性强 , 能满足现场施工需求

三、全钢式升降脚手架主要材料构件









四、全钢式升降脚手架施工工艺案例
1、主要技术参数表


2、架体起止层
从2层开始组装折叠式升降脚手架,均防护至女儿墙,如下图所示。

3、架体的基本情况
采用15m高的折叠式升降脚手架,共布置了6层走道板,走道板步距从下到上分别为3.2m、3.1m、2.1m、2.3m、2.0m,剩余的2.25m作为防护高度,1#公寓楼立面图详见下图。

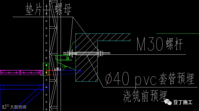
4、预留孔的安装及注意事项
当外墙楼板面准备浇筑底板梁混凝土时,按照机位平面图、立面图,使用内孔35-40mm、壁厚大于2mm的PVC塑料管即可,管两端用宽胶布封住,以防止混凝土浇灌时进入管内而堵塞预埋孔。
应保证与各层预留孔的垂直度。
预留孔必须垂直于结构外表面。
留孔左右位移误差应小于20mm,当大于20mm时,需要重新校核定位并重新钻孔。

5、架体密封情况
本工程升降平台的底层、第三层翻板实行全密封,其它层采取半密封措施。



现场全密封效果图


现场半密封效果图


现场全密封效果图走道板阳角位置


现场全密封效果图走道板阴角位置

现场全密封效果图搭接板、踢脚板密封


6、架体与结构的附着
下图粗线部分即存在250mm线条位置,架体的附着使用50mm+200mm的加高件进行附着(详图1、图2)。细线部分即无线条位置架体附着使用50mm加高件进行附着(详图3、图4)。


图1

图2

图3

图4
7、架体与结构的其他附着方式
住宅楼经常遇到奇偶层复式阳台,此类结构架体附着需要使用多节立柱进行叠
加,导座附着于立柱上,立柱通过可调斜拉杆拉结于结构上。
复式阳台水平范围内,需要在每层走道板上600mm、1200mm高度,用钢丝绳或者矩形方管安装扶手。

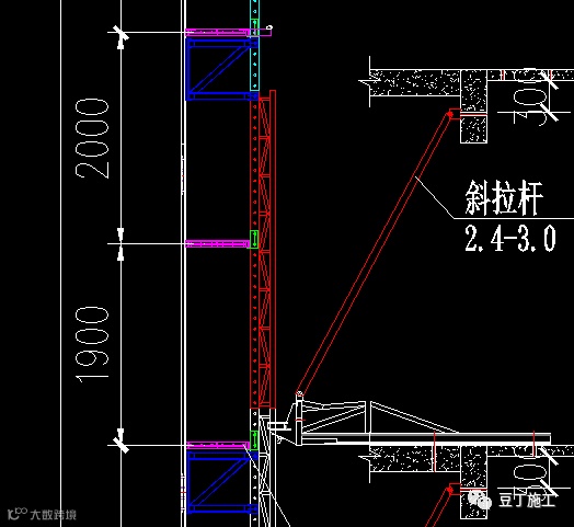
由于结构特点,部分机位不得不附着于挑板上,需要结合挑板的混凝土强度、配筋进行计算,无法满足要求则需要通过斜拉杆进行卸荷,将荷载传递给内部框架梁或其他构件

由于结构特点,部分机位不得不将特制预埋螺杆预埋于混凝土内一同浇筑(多出现在转角或其他混凝土墙柱厚度较大位置)


对于结构线条尺寸50mm-800mm的位置,需要通过加高件将架体垫出相
同尺寸以便导轨正常通过。部分项目在靠近封顶楼层的较大变化外凸线条,
也可与总包协商采取预留洞口方式让导轨通过。


凸窗位置上反部分二次浇筑时,可改用专用600mm的加高通用件进行附着。


为了解决立面上某几层线条较大(大于800mm)的情况,看使用加长三角铁件附着于楼板上并斜拉卸荷的方式进行附着。


8、吊点布置说明

9、卸料平台
本工程1#、2#公寓楼每栋楼设置一个自爬下撑式卸料平台,位置如右图所示。额定荷载1500kg,为确保施工安全,限定使用荷载不大于800kg。由于架体均从2层开始组装,故卸料平台需要从第3层开始使用。

料台物料装料数量说明



卸料平台一般位于架体最下步走道板位置,开始使用位置一般较架体使用位置高上一层,例如架体从4层楼面开始组装使用,则卸料平台需要在5层才能开始使用。
料台左右两侧面需要是用800mm网片进行封闭。
卸料平台的提升及附墙与架体相同,可与架体分别独立提升。
待架体防护至封顶,底部卸料平台看随着平台上部架体的拆除而提升至顶层。

卸料平台两侧使用800mm网片进行侧面防护。

卸料平台先与地面组装完成后经过验收合格方可吊装,吊装前务必把所有零部件连接好,并保证其成为一个刚性的整体。


10、塔吊及其附臂位置
升降脚手架架体过塔吊附臂时,采用3m翻板式脚手板。待架体过附臂时,拆掉防护网,拧掉固定螺栓,翻起脚手板。过附臂后放下脚手板,固定好脚手板,安装防护网。每提升一层通过塔吊附臂时,重复以上过程。

由于架体为定型设计,故塔吊附臂需要严格按照双方协商如图所示进行布设。


一般情况下,吊桥翻板需要设置在待建层下一层以下的全部走道板,如右图需要从下至上设置4道若架体需要下降,则从下至上所有走道板均要设置。


11、施工电梯(始终在下方)
若施工电梯始终在架体下方,则只需注意封顶之后,电梯需要上升至顶层。


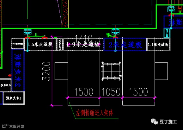
12、施工电梯(一个轿厢进入)
若电梯设置位置在转角或者其他导致两侧跨度过大,电梯中央必须设置一个机位时,则仅能选择一侧轿厢进入架体。


13、施工电梯(两个轿厢进入)
若电梯设置位置在较规整平直段,在满足机位跨度要求下中间不需布置机位,则可两轿厢同时进入架体。


14、施工电梯(断开)
若架体既要上升又要下降,则施工电梯位置架体沿轿厢两侧预留200mm后断开,并使用网片进行断开侧面的防护。


15、楼梯
楼梯设置需考虑:
①楼梯数量:原则上一栋楼设置两个楼梯,需要增加楼梯需在招标文件体现
②楼梯的每跑的设置

③楼梯与机位之间必须保留至少600mm距离,以便通过。
下图楼梯两侧离机位过近,给通行造成了极大不变。

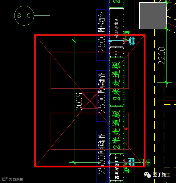
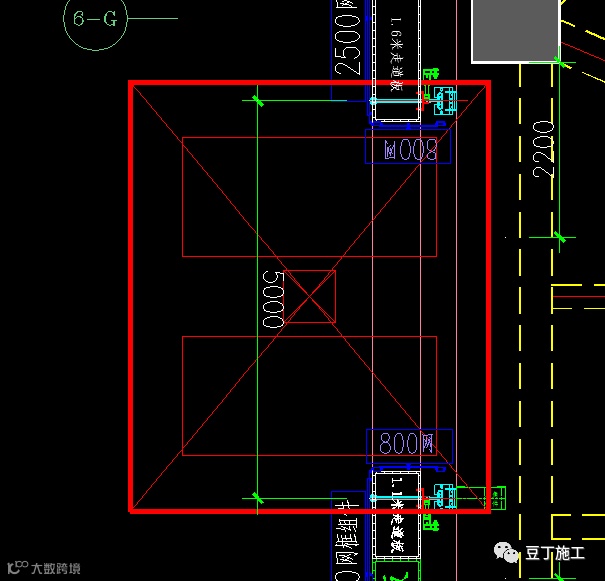
16、塔吊及其附臂位置 采光井单独设置架体
本工程1#、2#公寓楼内部存在9处较大采光井,需要单独设置机位进行防护,详见下图。




