

这是Consorcio Ara公司委托,推广和建造的多户住宅项目。Weber建筑设计的方案旨在优先考虑公共区域,并通过其体量将14,000平方米的地块分成三个大庭院。中央庭院约4,000平方米,带有一组长椅和花坛,后面的第二个庭院用于容纳带有运动区,游乐场和公园的娱乐区,另一个庭院用于将两栋白色的建筑隔开。
Text description provided by the architects. This is a project of a multi-family housing building commissioned, promoted and built by Consorcio Ara. The proposal of Weber Architects seeks to prioritize the common areas and through its volumes, it divides the 14,000m2 land into three large courtyards. A central courtyard of around 4,000m2 with a set of benches and planters, a second one at the back that hosts the recreational area with sports courts, a playground and a park, and another one that divides the two white buildings.



点击>>工程资料免费下载
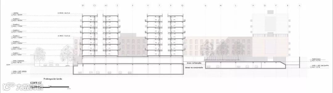
该项目采用了两种颜色,八层的白色体量,与以庭院为框架的“ L”型四层陶土体量形成对比。根据不同面积的公寓,这种色调变化使棱镜在体量和内部类型上有所不同。
The project plays with two colors, white volumes of eight levels that contrast with a four-level terracotta building in the form of an "L" that frames the courtyards. This hue change differentiates prisms, both in their scale and in their interior typologies, according to the square meters of the apartments.


建筑群由531栋房屋组成,被白色建筑区分开来,白色建筑包含60平米的最大公寓和可容纳55平米的陶土体量房屋。它们之间还提供一个大型屋顶花园,看上去像是漂浮在陶土体量上,营造出一种轻盈感。
The complex consisting of 531 homes is divided by white buildings that contain the largest apartments of 60 m2 and the terracotta that houses those of 55 m2. The white prism ends before reaching the street of Lerdo to offer a large roof garden, seeming to float over the terracotta volume, which brings a feeling of lightness


点击>>工程资料免费下载





点击>>工程资料免费下载
▼ 平面图

▼ 立面图


▼ 剖面图







建筑师:Weber建筑设计
地点:墨西哥
面积:42828平方米
