
今天分享的是一套建筑面积108平的现代轻奢风三居室案例,设计师以高冷的灰色调为主,在细节处加入了柔情的暗粉色,让整个空间在庄重之余又多出了一丝浪漫感,营造出这样一个轻奢有格调的家。

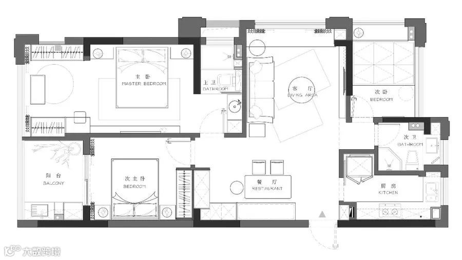
平面布置图

入户没有玄关走廊的户型,设计师利用厨房门外的墙面和餐厅背景墙来做收纳,到顶的鞋柜有着更大的储物空间。

卡座式的餐桌和柜子连在一起,L型的到顶柜子能够满足更多的收纳需求。卡座的上方还做了瓷盘装饰,搭配精致的餐桌摆设,显得更为美观。

客厅位于餐厅的侧方,在灰色调为主的客厅内加入了部分的暗粉色作为调剂,通过软装的点缀来展现出优雅、浪漫感。

电视背景墙处是做了大理石的设计,让客厅看起来更为大气。客厅边上的飘窗利用侧方来做收纳,方便躺在飘窗上晒着太阳、看看书。

厨房是个狭长的空间,设计师选择了布置L型的橱柜,动线更为合理。地面铺贴的灰色调的抛光砖搭配墙面的素色墙砖和橱柜,让厨房看起来更为简洁大方。

主卧室同样是一灰色调作为主色,在床头靠背的后方加入了藏光,把阳台和主卧结合起来,显得更为宽敞,又能增强卧室的收纳能力。

主卫做了干湿分离的设计,淋浴区、马桶和洗手台的地面都做了不一样的设计,让卫生间看起来更为层次感,各个空间也更显独立。

次卧在设计上会更为简洁一些,床头背景墙直接铺贴灰色系的墙纸,灰白相间的条纹床品给次卧带来一些年轻感,显得更为轻松、舒适。

公用卫生间整体铺贴米白色的大理石质感的墙面、地面砖,把洗手台放在了靠窗的位置,整个卫生间的设计让人感觉非常的现代雅致。


