

这是一份礼物 ,一份见证爱情的礼物。
有尘外趣,虽在田野,而散朗简远,言不及利,对之泊如也。女孩说如果要给家取一个名字,可能有22个字。我从不喜欢给房子定义风格,但是会用词语形容它,那可能是,美好。
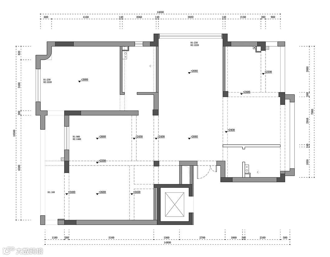
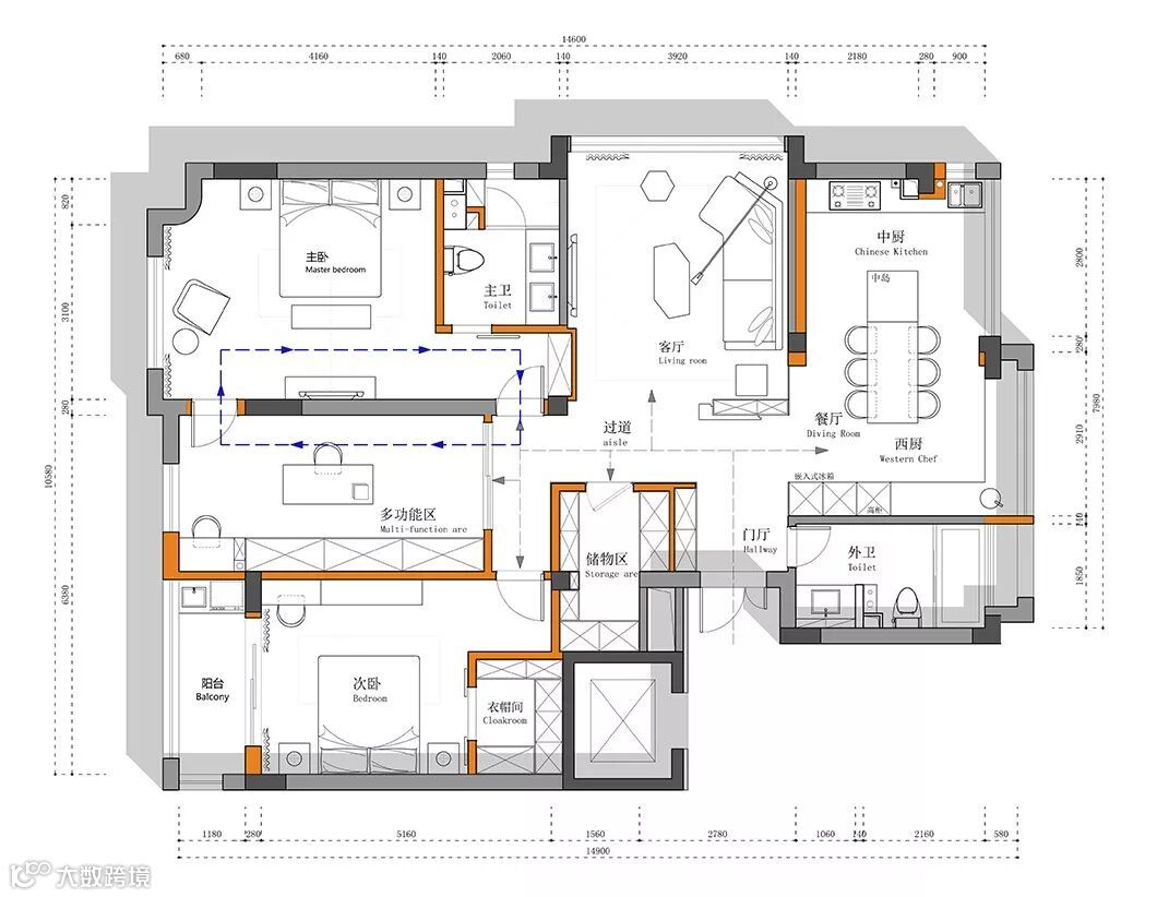
户型图

进毛胚的房子就被窗景的绿植吸引了,楼层虽然不高,但太阳光很顽强的透过梧桐树群照在家里的水泥地,那时是初春。
在入秋的时候我在屋子里拍下它现在的样子,这也是我没有在客厅装窗帘而只是一层纱的原因,家居生活让光线融合像是新鲜的鱼带来的营养,为什么说这是一份爱情的礼物,在写这篇稿子的明天是男孩和女孩的婚礼,每个做设计者都能理解相处,从陌生人因为认可设计连接在一起,相识、相知、“相爱” 。点击>>工程资料免费下载

我跟男孩女孩聊了他们对房子的期许,他们对格局没有过多要求,保留2个睡眠卧室,足够的储物空间,亮堂宽敞。我开始敲动所有墙体,规划了休息与休闲区。
三卧朝南有很好的采光,但在格局上形成了主卧和多功能室可合可分的形态,多功能室可以做为独立的书房或者衣帽间梳妆区,也跟主卧互通关系形成圈型走线。

俩扇互不影响的门,让空间更活络,多功能房的对外区是双联动玻璃移门,能让自然采光进入过道,也显得更慵懒不闭实。
主人房除了随手挂换下来的衣物和收纳的五斗柜外没有衣柜的存在,把特定的物件放在该有的空间是除了断舍离最好的状态。所以提到的储物,在我认知柜子不是越多越好,而一定是越有需求越能满足。
玄关

这是下午四点的家里,阳光已经只剩下小尾巴,只开着壁炉和氛围灯带,玄关的材质要好好表扬一番,因为折腾也因为圆满。
图中承载壁炉的是一整块水磨石,从异地运过来的时候考虑到容易爆裂,在90度阳角倒角的位置没有导成45度,所以垂直面水磨石拼接的位置有一个4mm*4mm的开口,因为水磨石的材质存在 真实的石子颗粒,一打磨就让石子爆裂,石胶填补也显得很不圆滑,最后请了一位一直相处的美缝师傅,调色调成和水磨石一样的颜色(水磨石不是全白)哑光的美缝剂,再导圆角最终展现的才是完整的一面。
注意事项:如果一定有阳角的造型,最好是厂家已经拼接打磨好,如果面积比较大担心运输问题,在现场拼接的师傅不要嫌麻烦,板子导成45度再拼接。

大面积的墨绿色包笼着整个公用储物间,像是一个特别的容器需要特别的颜色标识。正对面是朝向过道穿过双联动玻璃门延伸到多功能室,屋内所有的不锈钢门套窗套都是定制的枪色不锈钢,包括玻璃移门的1c m边框(不锈钢品牌:莫戈金属),从顶面延伸下来的磁吸灯,在木工时就预留安装了轨道,与墙面木饰面的结合,让空间从顶到地感受到线条的延展性。
客厅

林深时见鹿,老树陪新屋,楼层的高度让屋子和室外的景色密切相关,每天下午的阳光都是顽强的透过树荫洒向斑驳。客厅没有用传统布帘,而是用质感有硬度的垂直帘,开关闭合对光起着不一样的形态作用,对于餐厅和公共空间地面是用水泥砖铺贴,但是到了客厅希望木质的结构能和窗外的景更融合,采用了自然色的鱼骨拼地面(地板品牌:吉步)客厅少用装饰符号,更多是希望内外一景。点击>>工程资料免费下载

帘子闭合状态依然能看到每件家具上的光影,秋天的凉意带着光的问候,我们坐在沙发上不说话也觉得温暖。

越过客厅朝向入户门的位置 这个角度可以让我来好好说说玄关的结构,看平面布置图可以看到玄关其实是2个交错的矩形结合,正面的位置只看到造型灯光材质和壁炉,朝向客厅位置是一整面柜子三扇封闭的顶天立地柜门,和敞开的一面黑漆柜子,放常用的书籍和手办(后面的图有放上书的样子)

壁炉选用的是电壁炉。注意事项:壁炉可以根据现场的尺寸定制,电源插座最好留在侧面,可以用插座也可以电源直接控制,水磨石安装好后测量,正常周期20天,因为我的壁炉是一个七字型,所以对于高度宽度都有要求,建议做木工的时候就对接好,边框最小可以做到2cm。

从客厅朝向主过道,空调惯用拉长风口,空调的出风口和新风口都在同一个格栅里,呈现在一个平面中。


玄关的隔断让餐厅和客厅之间显得封闭,用了灰玻的隔断,不仅为了通透采光互通还有会增加互动性,也使得客厅更完整。

客厅沙发是由俩个方块组成(1.21+1.82)m。通过几何块的砌筑而成,随意拼合的单元式设计,整体造型介于沙发与卧榻之间,低矮的墩型。圆柱和长方体一体的靠背,通过调节彼此距离可以调节靠包角度,皮质上保留天然斑纹,和地面的木纹自然的光影相间。


推荐俩小物 ①随意凹造型的金属小盘子 购于日本丰岛美术馆 之前在台湾的博物馆也有看到 ②丹麦aytm不倒翁水壶 ③沙发上是slowdown studio的手工毛毯(本打算挂次卧的发现在沙发上颜色异常好看)


光影可以通过整个客厅,影子印在地板,瓷砖,木饰面表现的是不一样的形态。“和其光,同其尘” 的涵义是涵蓄着光耀,混同着尘垢,与好坏都能相合,不自立异。在我理解的家居等同于是人与环境结合,不刻意设计装饰符号,控制表达欲和克制设计。不为物所争,不露锋芒。每一个存在的环境一定有他的意义,是居住着赋予它更深的涵义,这鞭策着我反思修内。
餐厅

从餐厅朝向过道,灰玻的背面更能感受到在厨房餐厅和客厅的互动。



原结构厨房与餐厅中有一根30cm的梁,为了弱化这根梁,将梁与立面柱子的宽度延伸到45cm,厨房吊顶下沉260cm,中央空调下出下回,这个的办法让裸露的梁呈扁型存在厨房是敞开式的分为中厨和西厨,所有的设备都隐藏在柜子里,不占据台面空间,顶面的木饰面和墙面深色的岩板瓷砖,冷暖结合不显得单调。锅炉的位置在中靠近窗边的位置,用橱柜隐蔽掉杂乱的设备和水管。



导台和餐桌连接处 餐桌可导台属于独立的存在,地插的使用率又不高,所以选择了暗藏式插座面板,长度可以自由选择,每个开关都可以活动也可以自由取下减少和增加,还是属于看起来有颜值的设备。
注意事项:岩板上开孔尺寸需要根据选择的长度来开槽,所以提前要沟通好尺寸,如果也是在这个位置需要电源,先把餐桌的尺寸定下来,这样开关可以在裸露出来的位置是居中的。隐藏的比外露的更整洁。
卧室

在拍这个案子的时候,我是主卧先拍的,因为早晨朝南的光线真是美丽。 主卧的外景也是被绿树环绕,原建筑靠近窗户的位置有一块90度的阳角,在设计前期就考虑到美观和安全程度,把这个角的粉刷层切除,设计了一个四分之一圆的角落,也成了造景的一部分,空调选择了侧出侧回的,一样的手法从墙面延伸到顶面,木饰面颜色1分光哑黑。

窗靠背的造型是顺势再包一圈圆柱体。床的选择很重要,提前在做水电时就能把家居选好最佳,因为这张床的靠背有2.65m,还是移动了插座的位置。床是头层复古牛皮手工制作,和沙发一样有缝线的细节。

床头靠近又面的位置是男孩的位置,从墙面到顶面的线形灯,只有他的位置能控制,专属他的氛围灯,可以随意调节,取下或者滑动。


靠近左边是女孩的空间,因为有阅读习惯,所以床头的吊灯是阅读灯,红外感应的,只要手一挥就感应亮了,头也可以360度调节,超推荐小品。
功能室

主卧通往多功能室,多功能室的这个位置是阳台改造的,所以空调的位置只能做一体机,借用了阳台的顶部,刚好这个空间又是离主卧最近的位置,也是女孩的梳妆台,给每个家具取名字是乐趣之一,水管造型我们称它小蓝。

多功能室的梳妆区,多功能室真是可法宝,梳妆台的位置有整栋楼的下水管,包在柜体里面,梳妆台上有一整排隔板,可以不用全部放在台面上,显得更整洁,还有一整扇抽屉,防止光照的化妆品放在抽屉里。


这个区域没有选择布帘,而是选择了木百叶,阳光晒进的时候是整齐的光影,也是大自然给的线条。背面的条形木饰面与主卧靠近窗边的木饰面有对应的空间连接。女孩入境的侧脸,看不清的眼神真的很爱。

卫生间



主人房卫生间区域 这个空间的色彩很简单,担心洗护用品的花花绿绿所以把空间的基调做成最耐看的黑白灰。

今天的风是秋天的信差,秋天应该时丰收的时节不是分别。在屋子里沐浴和煦的阳光,会把褶皱的秋天都捋平整。把整个小宇宙都交给你们手里,我也就勇敢的奔赴未来。
设计师;朱宁倩


