
今天分享的是一套建筑面积107平米的北欧风三居室案例,房子虽然不大,但是屋主在设计上却没有少花功夫,小清新的软装点缀在简洁大方的空间当中,让人感觉舒适而又自然。最喜欢的就是客餐厅,做个吧台隔断好看又实用。

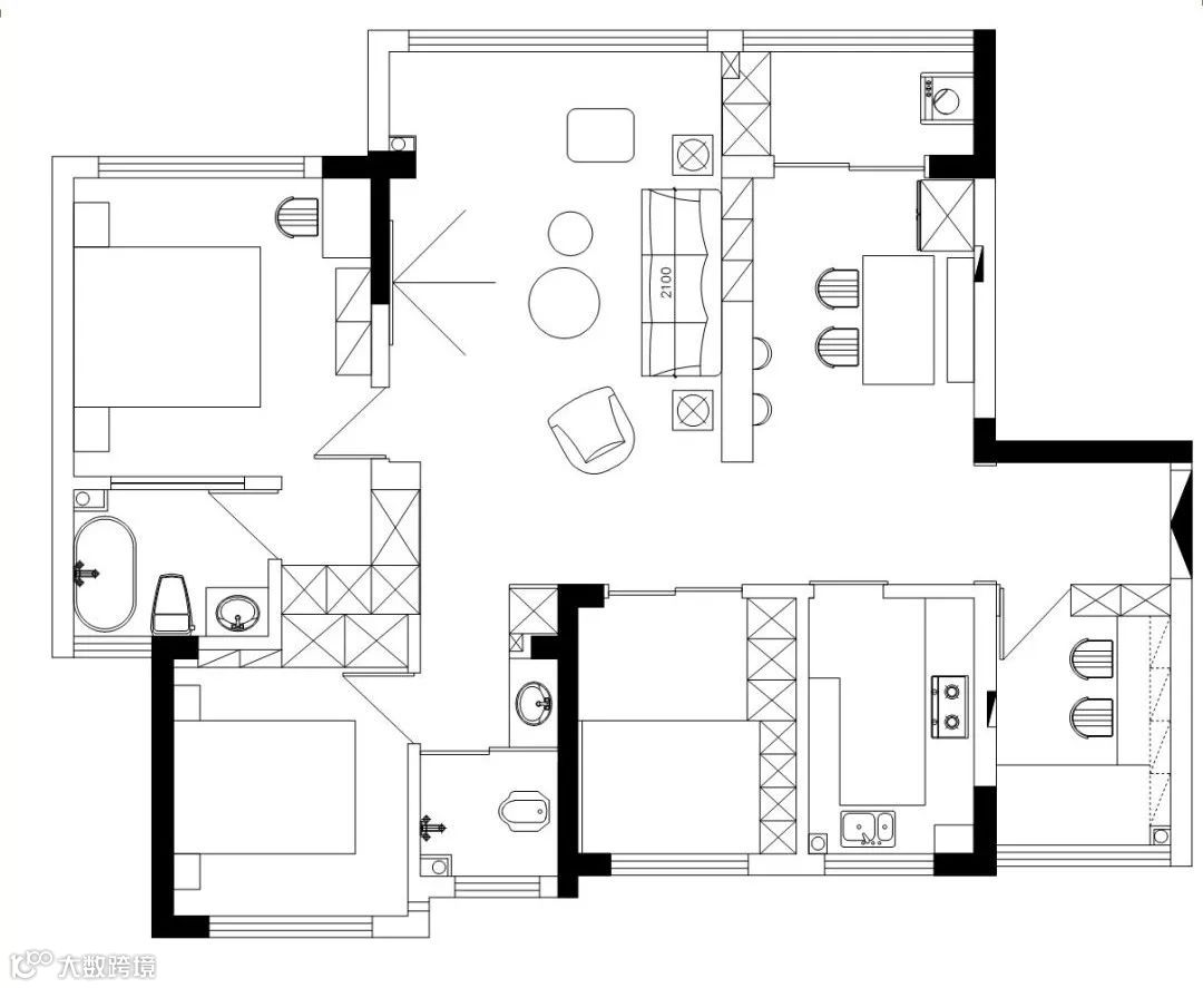
平面布置图

入户的玄关就铺贴了齐家小菜非常喜欢的白色六边砖,鞋柜被设计成了嵌入式,搭配另一侧的换鞋凳、穿衣镜和置物架的设计,实用又美观。

走过玄关就到了开放式的客餐厅空间,客餐厅侧面是书房和厨房,谷仓门和黑框玻璃推拉门的组合,让人感觉文艺范满满。

整个客餐厅都是以白色为主,顶部的筒灯代替了主灯的设计,显得格外简洁。舒适的布艺沙发搭配各种色彩的单椅、茶几和地毯,清新而又大方。

阳台也被包进了客厅之中,文化砖墙的设计和绿植结合起来,让人感觉更有自然气息。在电视背景墙的另一侧还有一面黑板墙,这个家真的充满了流行的设计元素。

客厅沙发背后的餐厅与空间,用吧台作为隔断,更有情调,也更加实用。青色与粉色的餐椅点亮了这个简洁的餐厅空间。

厨房内部从地面、地柜、墙身再到吊柜是黑-灰-白的色彩过渡,营造层次感的同时也带来了舒缓轻松的烹调氛围。

主卧室被打造成了一个公主床,白色铁艺床和粉色的墙面,落地窗搭配白色的纱帘,整个卧室都给人一种浪漫、可爱的感觉。

在主卧和主卫之间直接用玻璃作为隔断,增强通透感,用花砖打造的主卫内部有着一个迷你的浴缸,方便屋主享受惬意的生活。

书房也作为备用的卧室来使用,双人座的书桌让办公更加舒适,用榻榻米来代替床,也能增强这个迷你书房的储物能力。
长按下方二维码→识别关注

