
来源:云规范,土木吧,新华社
截至12日11时30分,事故共造成29人死亡,其中27人被救出时已无生命体征,2人经送医后抢救无效死亡,其中有一家五口。福建泉州市政府通报坍塌事故初步调查情况,欣佳酒店在建设、改造和审批等方面存在严重问题,现已将相关证据收集固化,对相关责任人员采取强制措施、财产保全措施。

建设单位

设计单位

蓝图

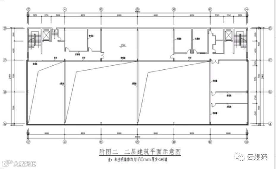
平面图



检测报告



建筑工程结构检验鉴定报告
检测日期:2018.04.12 - 2018.04.14
工程名称:鲤城区欣佳旅馆
工程地点:泉州市
检验项目:
结构正常使用性鉴定
检验鉴定依据:
1.《民用建筑可靠性鉴定标准》(GB50292-1999)
2.《建筑结构检测技术标准》(GB/T50344-2004)
3.《钢结构设计规范》(GB50017-2003)
4.《建筑抗震设计规范》(GB50011-2010)(2016年版)
检验鉴定结论:
1、该楼原为四层钢框架结构,通过增设三层夹层后现状为七层钢框架结构房屋。原钢框架采用钢承板与混凝土组合楼板,增设的夹层采用现浇钢筋混凝土楼板,基础采用柱下钢筋混凝土独立基础,约建于2014年。
2、该楼无设计使用年限,根据《钢结构设计规范》(GB50017-2003)8.9.2条规定:“设计使用年限大于或等于25年的建筑物,对使用期间不能重新油漆的结构部位应采取特殊的防锈措施”。考虑该楼多数柱已被隔墙包裹但未采取特殊的防锈措施,且钢构件重新油漆会影响旅馆正常使用功能。结构使用年限根据《钢结构设计规范》(GB50017-2003)8.9.2条规定暂定为25年,该楼建成至今已使用近5年,后续使用年限为20年。
3、现场抽取部分钢柱、钢梁构件,采用里氏硬度计检测钢材极限强度,结果表明,所检屋面(A-C)轴钢梁的钢材极限强度达到钢材牌号Q345B的国家标准要求。其余钢柱、钢梁的钢材极限强度达到钢材牌号Q235B的国家标准要求,所检钢柱、钢梁的钢材极限强度符合原施工草图的要求,检测数据见附页表1。
4、现场抽取部分钢柱及钢梁采用钢卷尺量测截面尺寸,采用超声波测厚仪量测截面厚度,检测数据见附页表2。
5、倾斜度观测结果表明,所检各测点的顶点或层间位移均未超出鉴定标准的结构侧向位移使用性限制,且各测点倾斜方向不具有明显一致性,该楼现状未产生明显倾斜。
6、现场检查表明该楼钢框架柱、梁节点焊缝较均匀饱满,未见明显裂纹,节点杆件无弯曲;钢柱、钢梁构件未见明显变形、缺陷或损伤。
7、现场检查表明该楼钢构件表面均有采取涂漆措施,现状钢构件漆面除局部有轻微点蚀外未见明显锈蚀或腐蚀。
8、现场检查表明该楼钢柱、钢梁构件表面有采取涂漆措施但无防火涂层,钢构件防火涂层项目的正常使用性不符合鉴定标准要求。现状旅馆所在楼层的钢柱普遍被实心砖墙身包裹,墙面采用竹木纤维纳米墙面板饰面,钢梁位于全封闭吊顶上方,吊顶采用竹木纤维纳米墙面板(三层及屋面层采用石膏板)。根据福建省产品质量检验研究院、福建省消防产品质量监督检验站出具的《竹木纤维纳米墙面板检验报告》表明,竹木纤维纳米墙面板样品所检项目符合《建筑材料及制品燃烧性能分级》(GB8624-2012)标准B级(C级)要求,表明装修主要材料燃烧性能属于难燃材料。根据委托方提供的《建设工程消防设计备案受理凭证》(备案号:350000WSJ130009884)及《建设工程竣工验收消防备案受理凭证》(备案号:350000WYS140002711)表明,该楼已受理竣工验收消防备案。
9、根据以上检测、鉴定结果,该楼上部承重结构所检项目的正常使用性基本符合鉴定标准要求。
10、现场所检该楼围护墙体表面外观完好、未见明显开裂,墙角无潮湿迹象,门窗外观完好,开闭或推动未见明显异常;吊顶构造未见明显变形或开裂迹象,该楼围护系统正常使用性基本符合鉴定标准要求。
11、该楼采用柱下钢筋混凝土独立基础,建成后至今约4年,上部结构倾斜度现测结果表明所检各测点的顶点或层间位移均未超出鉴定标准的结构侧向位移使用性限制,上部承重结构及围护结构检查也未发现明显沉降裂缝,该楼地基基础正常使用性基本符合鉴定标准要求。
12、根据以上检测、鉴定结果,鲤城区欣佳旅馆作为旅馆使用功能的结构正常使用性基本满足鉴定标准要求,后续使用年限为20年。
备注:
建议:
(1)本报告仅对房屋正常使用性进行鉴定,凡涉及该房屋结构安全及拆改主体结构或变更使用功能问题,委托方必须另请相关部门重新鉴定。
(2)房屋在后续使用应定期对结构构件的工作状态进行检查,若发现异常情况应及时采取相应的处理措施。
(3)建议对该楼钢结构表面按相关规范的规定涂刷防火涂层。
免责提示:文中图片来自于网络,版权归原作者及原出处所有。如涉侵权或原版权所有者不同意转载,请及时联系我们,以便立即删除。
长按下方二维码→识别关注

