
素材:豆丁施工
如有侵权,请联系删除
01
基础底板钢筋绑扎
马镫使用14的钢筋进行加工
02
柱子钢筋绑扎
03
梁钢筋绑扎
04
板钢筋绑扎
05
楼梯钢筋绑扎
06
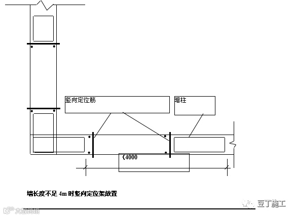
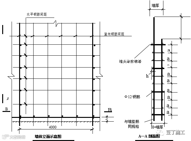
剪力墙钢筋绑扎
07
钢筋保护层及技术措施
2)、竖向梯子筋

08
本工程钢筋细部节点通用做法大样

09
成品钢筋码放
10
场内钢筋运输
长按下方二维码→识别关注
工程资料平台
素材:豆丁施工
如有侵权,请联系删除
01
基础底板钢筋绑扎
马镫使用14的钢筋进行加工
02
柱子钢筋绑扎
03
梁钢筋绑扎
04
板钢筋绑扎
05
楼梯钢筋绑扎
06
剪力墙钢筋绑扎
07
钢筋保护层及技术措施
2)、竖向梯子筋

08
本工程钢筋细部节点通用做法大样

09
成品钢筋码放
10
场内钢筋运输
长按下方二维码→识别关注