搜索
首页
大数快讯
大数活动
服务超市
文章专题
出海平台
流量密码
出海蓝图
产业赛道
物流仓储
跨境支付
选品策略
实操手册
报告
跨企查
百科
导航
知识体系
工具箱
更多
找货源
跨境招聘
DeepSeek
首页
>
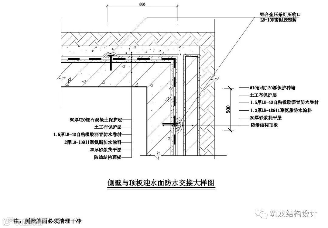
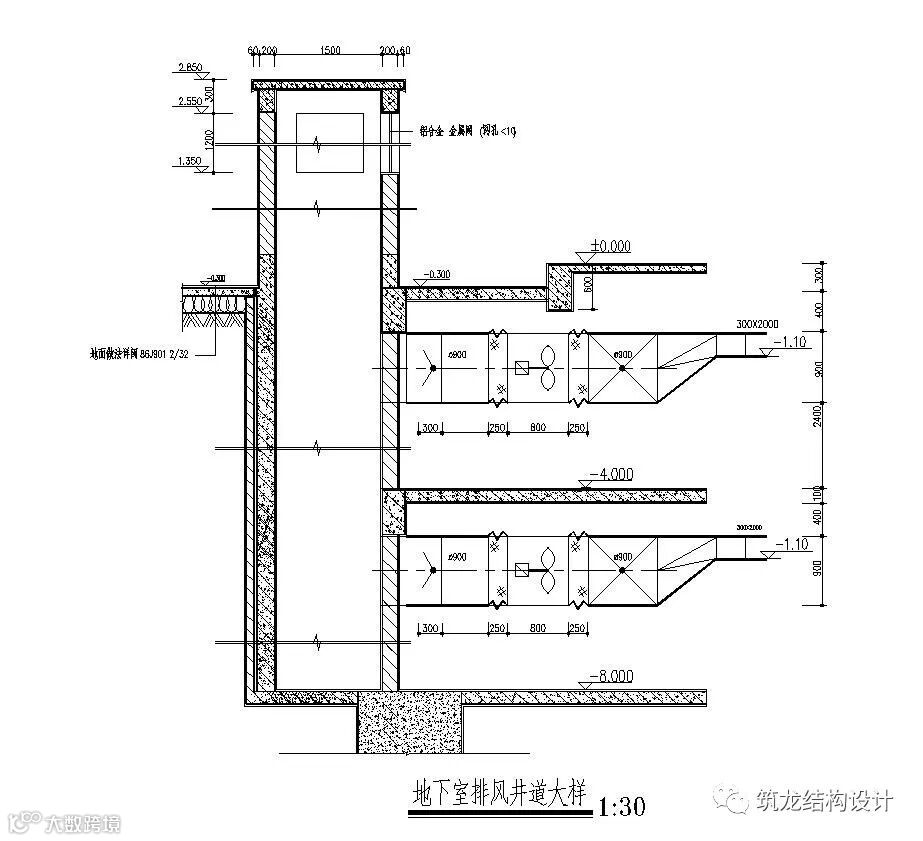
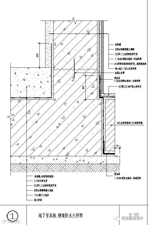
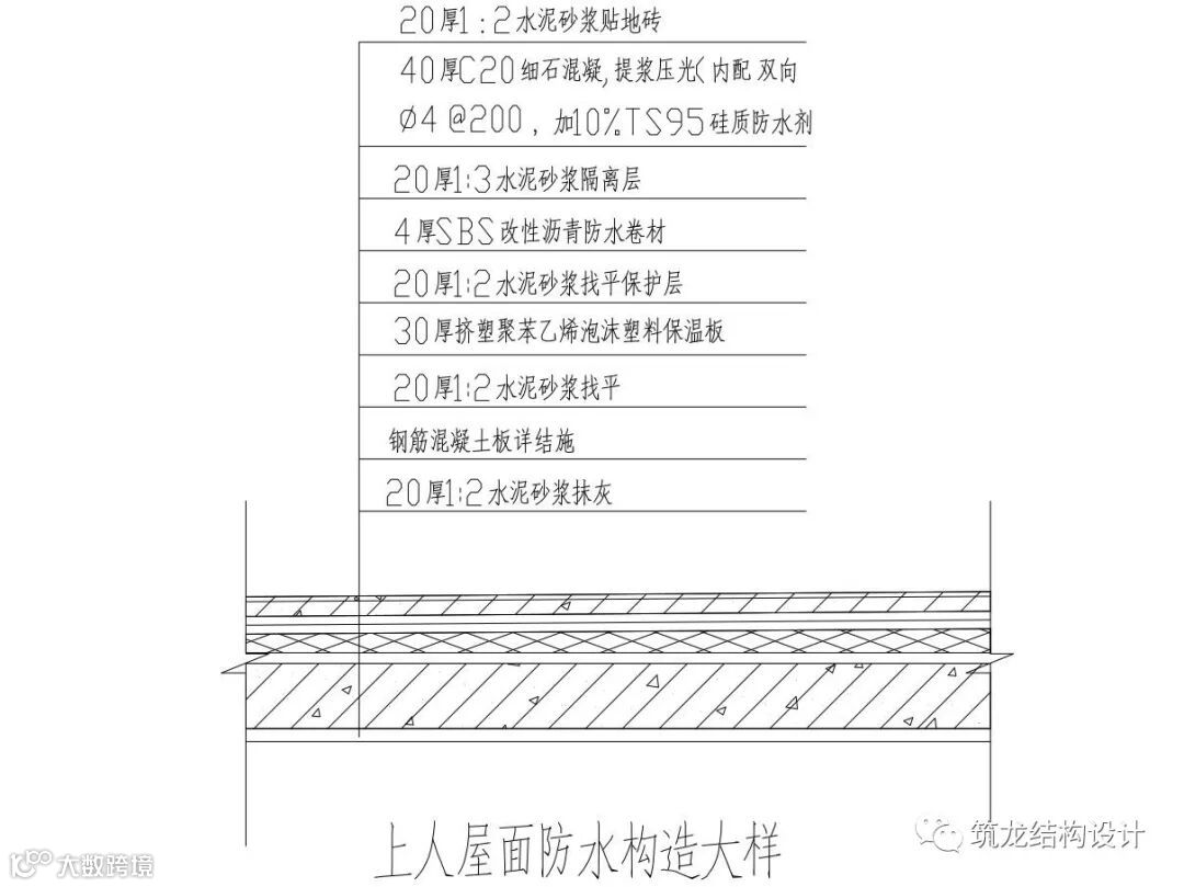
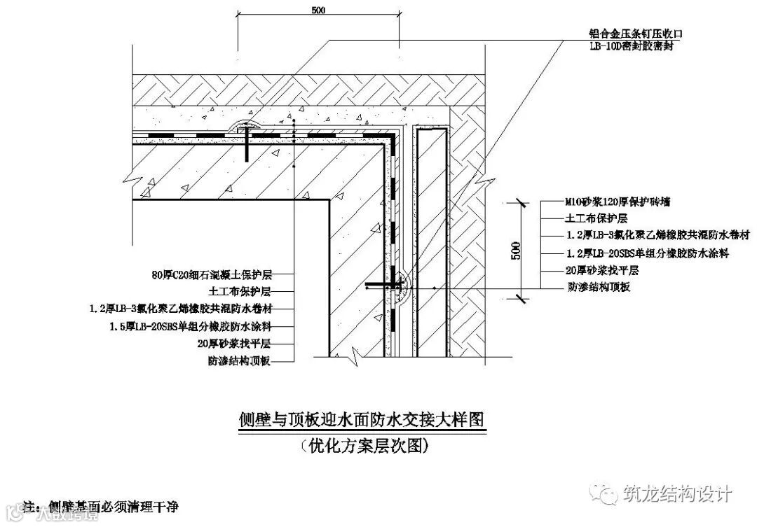
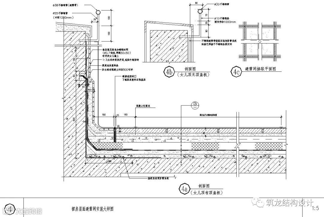
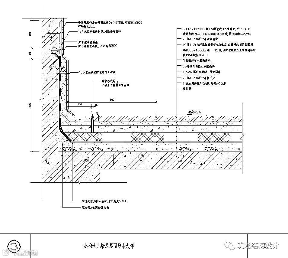
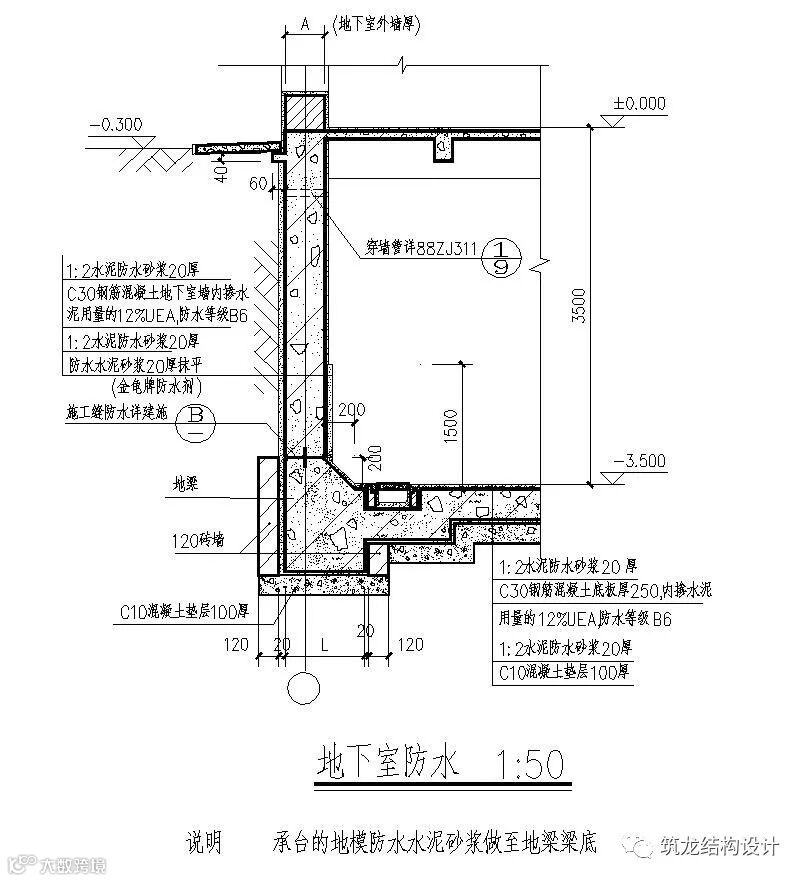
100张防水节点大样图,结构工程师必备神器!
>
0
0
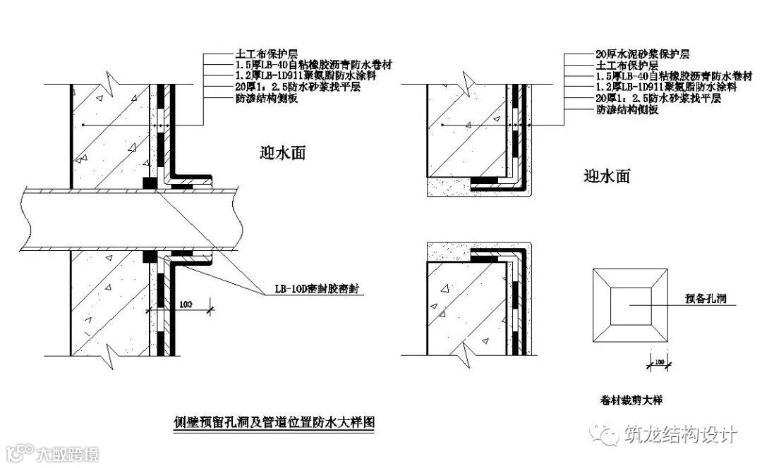
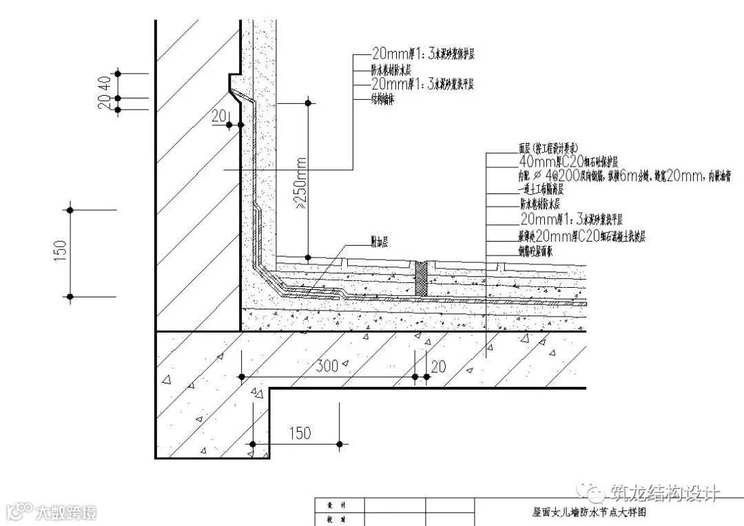
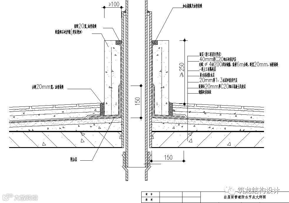
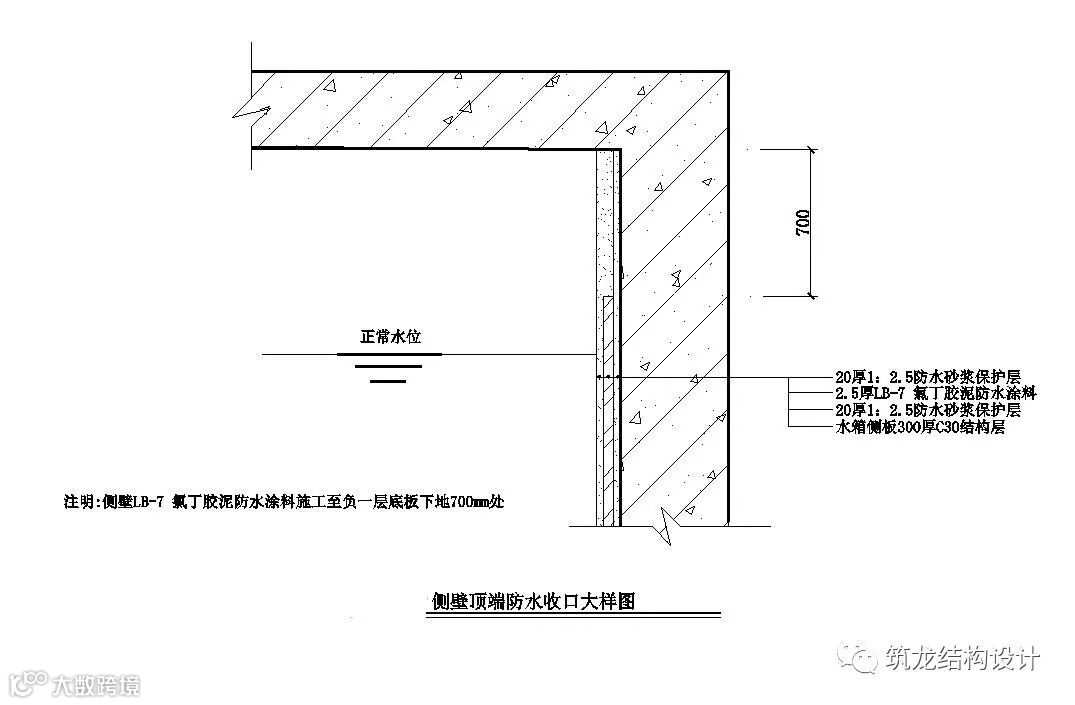
100张防水节点大样图,结构工程师必备神器!
工程资料平台
2021-03-02
0
来源
:筑龙论坛
如有
侵权
,请联系删除
建筑工程公众号推荐
长按下方二维码→识别关注
【声明】内容源于网络
0
0
工程资料平台
工程资料:标准规范、图集、工程学习资料等专业分享平台
内容
4124
粉丝
0
关注
在线咨询
工程资料平台
工程资料:标准规范、图集、工程学习资料等专业分享平台
总阅读
2.3k
粉丝
0
内容
4.1k
在线咨询
关注