
按照施工方案和施工进度要求,对施工现场所需工艺流程、施工设备、原材料堆放、动力供应、场内运输、半成品生产、仓库料场、生活设施等,进行空间的、特别是平面的规划与设计,并以施工平面布置图的形式表达出来,这就是施工现场平面布置的作用。
一、施工平面布置图的分类
1、施工总平面图:侧重于划分施工现场用地区域、交通运输安排、各种施工资源和条件的组织安排,为现场各个单项工程和单位工程提供施工条件和服务。
2、单项(位)施工平面布置图:侧重于划分施工现场用地、安排现场运输道路、临时设施、施工机械、施工材料、堆场和加工厂的位置等,以便更好地为单项(位)工程施工服务。
二、施工平面布置图的设计依据和原则
1、设计依据:
(1)施工组织设计文件及原始资料;
(2)用地和建筑平面图;
(3)已有和拟建的地上地下管道布置资料;
(4)建筑区域的竖向设计资料和土力调配平衡图;
(5)各种材料、半成品、构件等的用量计划;
(6)建筑施工机械、模具、运输工具的型号和数量;
(7)现有房屋和可利用的设施状况;
(8)场地的自然环境;
(9)拟参与施工的市场主体数量及劳动量计划;
(10)安全与文明施工标准。
2、设计原则:
总原则:通过施工平面布置图设计能使工程现场布局合理、功效提高、成本降低,为保证质量、安全生产及文明施工生产创造条件。
具体考虑:
(1)减少场内二次搬运;
(2)有效利用土地面积;
(3)充分利用现有便利条件;
(4)合理划分施工区域;
(5)符合安全、消防、环境保护、卫生防疫、职业健康等要求。
三、施工平面布置图的设计内容和步骤
1、设计主要内容
(1)用地与建筑红线,场内外通道,场地出入口,现场临时供水、供电接入口位置;
(2)现场施工水准点和控制点;
(3)现有和拟建的建筑物、构筑物、安装管线;
(4)现场主要施工机械(垂直运输机械、加工机械)的位置;
(5)钢筋、模板、脚手架、五金件等材料和半成品的现场加工场、仓库和堆场。
(6)生产、生活用的临时设施,包括临时变压器、水泵、搅拌站、办公室、职工宿舍、卫生间(带淋浴)、厨房、供水供电线路、仓库和堆场的位置。
(7)消防和安保设施,消防道路和消火栓的位置,大门、围墙和门卫,现场视频监控系统等;
(8)平面图比例,采用的图例、方向、风向和主导风向标记。
2、设计步骤:
(1)施工总平面布置图:确定场外运输线路→布置仓库和堆场→布置内场临时道路→布置行政和生活临时设施→布置临时水电管网和其他动力设施。
(2)单位工程施工平面布置图:确定起重机械的位置→确定搅拌站、加工棚和材料、构件堆场的位置→布置运输道路→布置临时设施→布置临时水电管网。

四、施工平面布置图的影响因素
1、影响设施规模的因素:
(1)法令要求、合同要求;
(2)公司政策与项目地位;
(3)过去的经验;
(4)劳动力多少与分包商数量;
(5)工程位置、施工阶段。
2、影响设施位置的因素
(1)公司政策;
(2)过去的经验;
(3)现场大小;
(4)现场大小及拥挤程度;
(5)有关设施的位置;
(6)最短运送时间;
(7)施工阶段。
五、施工现场道路布置
1、道路布置需要考虑物料运输和消防车辆通道;
2、与外脚手架保持安全距离,防止物体打击;
3、道路布置应靠近砂石、钢筋堆场;
4、道路面层需硬化,与硬化地坪相连的,需设置排水;
5、道路宽度一般不小于4m,厚度为15~20cm;
6、穿越道路的临时用水、用电管线需预埋;
7、在现场出入口处的道路上应设置泥浆冲洗和排水设施;
8、靠近基坑的现场道路应待基坑土方回填后施工。
六、施工现场起重机械布置
1、塔式起重机
(1)根据建筑物类型、高度选择塔吊类型:
a、轨道式塔吊:多层拼装式建筑
b、附着式塔吊:多层和高层建筑
c、爬升式塔吊:超高层建筑
(2)根据建筑物的平面形状选择塔吊数量、型号:
a、塔吊一般布置在建筑物长边方向,尽量减少塔吊数量;
b、多台塔吊尽量能够共用钢筋、模板、砌块等堆场;
c、根据建筑物的宽度和塔吊与建筑物外立面的安全距离,选择塔吊型号。
d、塔吊的回转半径应覆盖全部建筑物。

(3)附着式塔式起重机施工方案
a、选择起重机类型;
b、计算塔吊基础桩和基础(尺寸、砼强度、配筋)、地脚螺栓的数量、规格;
c、计算塔吊底座要求;
d、计算附墙件的道数、连接方式、截面要求;
e、设计避雷接地装置。
2、固定式垂直运输机械(人货梯、井架),主要运输砌体、砂浆、装饰材料。
布置时应考虑:
(1)应布置在施工段分界线附近,或高低分界线较高部位侧;
(2)井架、人货梯以布置在窗口处为好,减少砌体修补工作;
(3)服务范围一般为50~60m,根据运输材料数量调整;
(4)井架卷扬机位置应确保操作人员能看清整个升降过程;
(5)井架内侧一般位于脚手架外,中间铺设连接廊道;
(6)人货梯采用附墙件固定,井架采用缆风绳固定;
(7)人货梯与井架底部都应低于地面;
(8)人货梯与井架基础都不需打桩,需浇筑钢筋混凝土基础;
(9)人货梯与井架操作人员都需特种作业证书,后者较松。











七、施工现场生产设施和仓库的布置
1、加工设施布置
(1)与垂直运输机械的关系:材料堆场——加工设施——半成品堆场——垂直运输机械;
(2)加工设施最主要考虑钢筋加工棚、砂浆搅拌机;
(3)加工棚宽度5m左右,长度15m左右;
(4)加工设施中间或不影响加工过程一侧设置配电箱;
(5)加工设施处地面需要硬化;
(6)加工设施上方应设置双层防护棚;
(7)加工棚不设置围护。
2、仓库和堆场布置
(1)仓库布置:水泥仓库地势较高、靠近搅拌机;大宗材料仓库应靠近加工场地;油料仓库、乙炔仓库应封闭,且保证与办公、生活用房的安全距离。
(2)材料堆场:用量大、使用时间长、供应与运输方便的材料,分批进场,尽量减少堆放面积;钢筋、钢管、砌块应靠近垂直运输机械;模板等密度较少材料应堆放在塔吊回转半径范围内。
(3)构件堆场:在场地允许时,构件拼装或堆放应在安装位置的下方,便于起重设备吊装;采用井架运输的,尽可能靠近井架布置;小型构件堆放在塔吊的回转半径范围内。
八、施工现场水、电布置
1、临时用水:生产用水、生活用水和消防用水。
2、临时用水组织:计算用水量、选择供水水源、选择临时供水系统的配置方案、设计临时供水管网和设计供水构筑物和机械设备。
3、供水要求:
(1)力求管网总长度最短;
(2)常用用水总管管径为100mm;
(3)消火栓间距不大于120m,高层建筑每层设消火栓口,并配备消防水带、水枪;
(4)排水管道需考虑排水坡度。
4、供水系统配置:管网布置形式有环状、枝状、混合式。
5、临时供电布置
临时供电组织:用电量计算、电源选择、变压器确定、供电线路布置、导线截面计算。
用电线路:10Kv输电线路→变压器→总配电箱→分配电箱→开关箱→插头→机械运转
(1)基本要求
a、采用三级配电系统,采用TN-S接零保护系统,采用三级漏电保护系统;
b、变压器一般设置在围墙外侧,总配箱一般设置在靠近变压器的围墙内侧,分配箱有多个,一般设在主要用电设备(塔吊、人货梯、井架、钢筋加工场,办公与生活用房);
c、线路敷设采用架空或埋地,一般采用后者;
d、供电线路与建筑物、塔吊需保持安全距离。
(2)配电线路的安排
分为环状、枝状及混合式三种,一般采用枝状。导线选择一般根据计算的电流强度选择。
九、施工现场生活和办公临时设施
1、生活区与办公区分离;
2、与作业区和架空高压线保持安全距离;
3、场地安全可靠,地面高于施工场地,排水通畅;
4、面积与工程规模、分包、施工进度有关;
5、搭设标准需满足相关的部门规章要求;
6、食堂、厕所标准应满足卫生部门要求。
十、施工现场大门、围挡及标牌布置
1、大门:金属门或电动门;
2、围挡:采用硬质材料围护,市区高度不低于2.5m,郊区不低于1.8m;
3、标牌:
(1)“五牌”:施工标志牌、安全纪律牌、防火须知牌、安全无重大事故记时牌、安全生产文明施工牌
(2)“两图”:施工平面布置图、项目经理部组织结构及主要管理人员名单图
4、场地绿化:在工地入口内外和办公区种植绿化。

施工现场5S管理
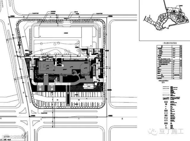
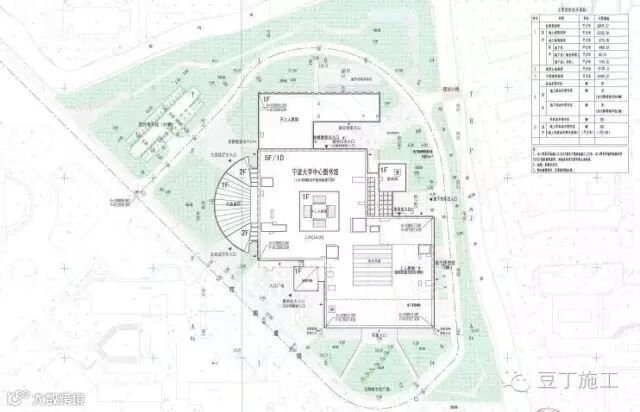
十一、施工现场平面布置——案例



版权申明:本微信内容来自豆丁施工,如涉及作品版权问题,请与我们联系,我们将第一时间协商版权问题或删除内容!本文为原作者个人观点,不代表本公众号赞同其观点和对其真实性负责。
长按下方二维码→识别关注



