前沿资讯▕ 知识分享▕ 热门活动 | 行业数据
☂ 订阅汽车新技术资讯 ☂
本 期 关 键 词
断面设计
| 进 “国际汽车内外饰供应链群”,请加微 13120672097 或扫描二维码,备注内外饰。

前言
本标准明确了内外饰、仪表板的设计要素标准,使内外饰、仪表板的断面设计更加规范化,并作为内外饰、仪表板断面设计质量的评价依据。
本标准包含车身、电器、底盘、总布置、造型等部分相关的内容,内外饰设计时,务必向相关专业提出相关要求。
由于全球汽车产业在快速发展,新技术、新材料、新工艺、新结构不断出现,本标准推荐的参考数据也会逐渐过时。本标准计划每年更新一次,以求与汽车设计流行趋势保持一致。
术语和定义
断面:反映零件之间安装关系、结构关系的二维图形称为断面。根据断面表现内容的侧重点不同,分为安装断面与主断面。安装断面用于详细表达零部件之间的安装关系,主断面则用于表达零部件之间的结构关系。二者都用于指导和检查车身、内外饰三维数模结构设计,控制产品的装配状态。
断面的设计流程
通过对样件、油泥等物理模型的测量,取得原始参考数据。
根据点云逆向数据、技术开发方案中已经确定的零部件数据(借用件、平台件等)、设计要素标准、供应商输入的技术要求等设计初步断面。
确定内外饰之间、内外饰与钣金、内外饰与车身附件、内外饰与电器件、内外饰与底盘件之间的安装定位方式、安装结构、相对空间位置关系。
检查内外饰的安装硬点与项目总布置中所确定的硬点是否吻合。
确定内外饰的断面分布位置。
建立二维断面图。
根据造型变动、制造工艺要求,修改、完善内外饰断面。
根据内外饰、仪表板断面检查3D数模。
断面的技术、质量要求
内外饰、仪表板断面设计中影响可视效果的内容,应符合造型设计的要求。
内外饰、仪表板断面应满足技术协议中相关要求。
内外饰、仪表板断面应执行国家标准和企业标准。
内外饰、仪表板断面设计应符合总布置方案和结构尺寸,应满足设计硬点要求。
内外饰、仪表板断面设计应满足人机工程等要求,提高舒适性。
在对样车、样件、油泥模型等充分了解的基础上,制定沿用件、新件和改制件的断面,新件及改制件必须找到先进、可靠、流行、经济适度的参考结构,以降低开发风险、合理控制产品成本。
断面设计中尽量采用系列化、标准化、通用化、平台化。尽量采用标准件、通用件;各种设计数据尺寸应准确无误。
断面设计中应考虑到加工、装配、安装调试、维修的方便性和经济性,必须验证工具作业空间。
断面设计中的孔径及位置尺寸要尽量圆整,但要遵循国家标准、行业标准,公差和形位公差标注正确,符合设备生产条件。
断面输出模板
安装断面与主断面分别采用不同的输出模板格式,如下:
安装断面模板:包括安装断面结构、重要配合尺寸、零件代号、断面序号、硬点坐标、安装孔形式(包括主定位孔、辅助定位孔、安装孔等)。

主断面模板
包括主断面结构、重要配合尺寸、零件代号、主断面位置、关键尺寸。

设计要素

常用断面









内饰
门护板







典型水切断面一(CH031 TOYOTA Yaris)(I1=2.2mm;I2=1.8mm;G1=7.4mm)
推荐的内水切定位、安装孔规格如下:


典型水切断面二(CH041 TOYOTA BELTA)(I1=6.2mm;I2=4.2mm;G1=11.6mm)

典型水切断面三(CH051 TOYOTA Ractis)(I1=2.3mm;I2=1.8mm;G1=11.9mm)

典型水切断面四(CH071 DAIHATSU BEGO)(I1=1.9mm;I2=1.8mm)





















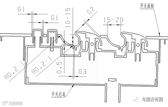
门槛护板








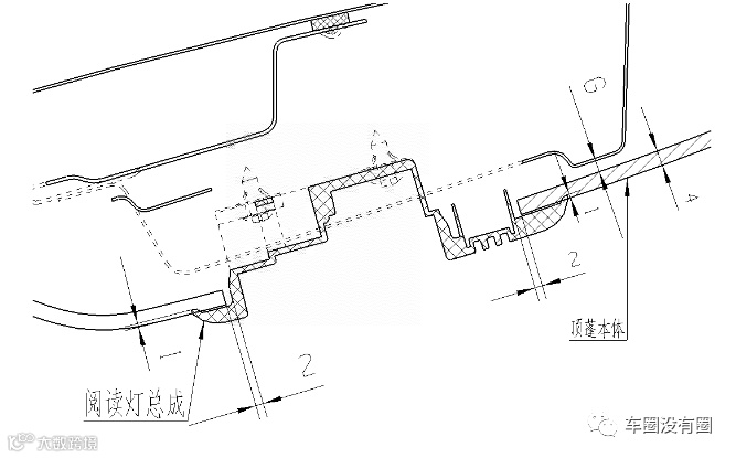
A/B/C/D柱护板、顶棚、天窗、阅读灯


















遮阳板布置



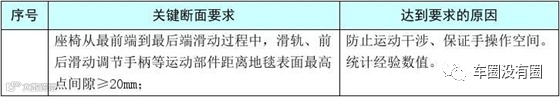
座椅

图(一)

图(二)
座椅R点与门护板扶手、车门抠手、开关位置关系推荐表(供正向开发门护板、座椅参考)

上述推荐标准的依据
以TOYOTA、DAIHATSU系列车型为例,统计R点坐标(左侧一、二排座椅),座椅R点距门护板扶手、内抠手及开关的位置尺寸、后排座椅空间距离。
表1


表2







风窗玻璃
前风窗玻璃


后风窗玻璃




侧风窗(固定)玻璃






6.3 外饰
保险杠
前保险杠
I型安装支架(卡钩背向钣金)



对翼子板、侧围钣金成型的精度(RPS)如下:

II型安装支架(卡钩朝向钣金) 断面1/3

II型安装支架(卡钩朝向钣金) 断面2/3

II型安装支架(卡钩朝向钣金) 断面3/3





后保险杠




















































>>END<<
免责声明:
版权归北京汽车研究院:王广臣所有,文中观点仅供学习交流,不承担使用后任何损失。
如涉及版权等问题,请您告知,我们将及时处理。
| 进 “国际汽车内外饰供应链群”,请加微 13120672097 或扫描二维码,备注内外饰。


推动全球汽车工业发展,助力汽车内外饰产业链互联
推动全球汽车工业发展,助力汽车内外饰产业链互联
中国上海国际汽车内饰与外饰展览会(CIAIE)多年来伴随着中国汽车工业健康稳定的发展,深耕汽车内外饰行业10余年,现已成为全球极具规模及影响力的汽车内外饰行业专业性展会。展品涉及内外饰总成、座椅、智能驾驶舱、塑料件、装饰件、方向盘、门板、顶棚、车身覆盖件、车身结构件、外观件、座舱电子、被动安全、保险杠、后视镜、车灯与车辆照明以及应用领域新材料、新技术、新设备、新工艺集中亮相,展会全面链接汽车内外饰上下游产业链。是企业市场拓展、品牌推广的首选平台,更是为业内人士提供了寻找新技术、新产品、新材料、新设备,了解市场先机的一站式商贸、技术及学术交流的专业平台。
时间:2020年8月7日-9日
地点:上海新国际博览中心
地址:上海市浦东新区龙阳路2345号
2020第三届中国国际智能座舱技术创新展览会
2020第四届上海国际汽车座椅创新与技术应用展览会
中日德汽车内饰件与座椅行业发展研讨会
中欧汽车环保座舱国际论坛
国际车辆用胶粘剂/密封胶技术高峰论坛
中国车用塑料技术论坛
中国汽车工业聚氨酯应用高峰论坛
新能源汽车与复合材料创新应用国际研讨会
车用纺织品材料/无纺布材料科技创新与产业发展论坛
中国汽车皮革与环保技术论坛
汽车保险杠系统技术论坛
汽车方向盘技术创新论坛
汽车顶棚内饰设计及工艺技术创新论坛
汽车智能车灯系统创新技术论坛
汽车车门系统创新技术论坛
中国国际汽车热管理峰会
中国新能源汽车NVH国际峰会
英佛会议展览(上海)有限公司
唯一官网:www.ciaie.com
电 话:021-66871823
传 真:021-51062285
E-mail:zf@info-shanghai.com

往期精彩内容:
↓↓↓ 点击"阅读原文" 报名参加 2020 CIAIE

