吊顶既具有美化空间的作用,也是区分室内空间一种方法。很多情况下,室内空间不能通过墙体、隔断来划分,那样就会让空间显得很拥挤,很局促。
设计上可以通过天花吊顶与地面来对室内空间进行区分,而天花所占的比例又很大。
那么问题来了,吊顶都有哪些施工工艺?一个规范化的吊顶安装工程到底如何做?
吊顶龙骨
吊顶龙骨架由主龙骨、覆面次龙骨、横撑龙骨及相关组合件、固结材料等连接而成。
吊顶造型骨架组合方式通常有双层龙骨构造和单层龙骨构造两种。
主龙骨是起主干作用的龙骨,是吊顶龙骨体系中主要的受力构件。次龙骨的主要作用是固定饰面板,为龙骨体系中的构造龙骨。
轻金属龙骨的优点:
■ 安装方便(规格标准化,构造装配化,构件配套)
■ 按其他用途及安装部位分为:承载龙骨、覆面龙骨、边龙骨等。
■长度有1800、2100、2400、2700、3000、3300、和3600mm;
■厚度有9、12、15、18mm(耐火板还有21mm和25mm厚),多用9mm和10mm。
■特点:成型方便、施工简单、造价适宜、装饰效果好等。
■表面可进行多种处理(涂料、贴纸、金属板、玻璃);
■需严格的防火、防腐处理(用轻钢龙骨、阻燃型胶合板);
■规格:500mm*500mm、600mm*600mm;
■装饰部位:医院、剧场等有吸音隔音要求的公共空间。
吊顶按使用材料分为轻钢龙骨吊顶、铝合金龙骨吊顶、木龙骨吊顶、石膏板吊顶、金属装饰板吊顶、装饰板吊顶和采光板吊顶。
选取自项目典型户型造型吊顶做工艺样板。包含以下:
龙骨全部安装完成,石膏板部分封板,石膏线部分安装,外露相关材料施工节点断面。
吊顶侧挂板转角包铁皮工艺:
(铁皮)高度应不小于侧挂板高度的 2/3;两侧转角宽度应不小于 100mm;要求采用 1.2mm 厚镀锌铁皮包角。
2、叠级吊顶防开裂(有灯带同样要求增加镀锌铁皮拉结)
0.8mm 厚镀锌铁皮拉结工艺:
叠级吊顶低位转角处第一层石膏板安装前,需在副龙及边龙骨下方用自攻螺丝固定;0.8mm 镀锌铁皮作为拉结(拉结铁皮需满足 50~80mm 宽)。
侧挂板龙骨基架造型内口 200mm 处增加横撑龙骨,以用来固定 L型 9mm 多层板。
叠级吊顶低位转角 L型 9.5mm 厚多层板加固工艺:
靠墙安装时需要做离缝处理,且封板前需做钉距弹线,前道工序增加的横撑龙骨需要做加钉加固。
叠级吊顶低位封转角 L型 9.5mm 厚石膏板工艺:
注意第一层石膏板与第二层石膏板错位处理,且两层错位间距需大于 300mm。
高层建筑禁止采用木方及大芯板做龙骨及挂板;必须使用符合消防要求的A类防火材料替代。
吊顶全轻钢龙骨基层骨架(适用于公区高位吊顶做法)△
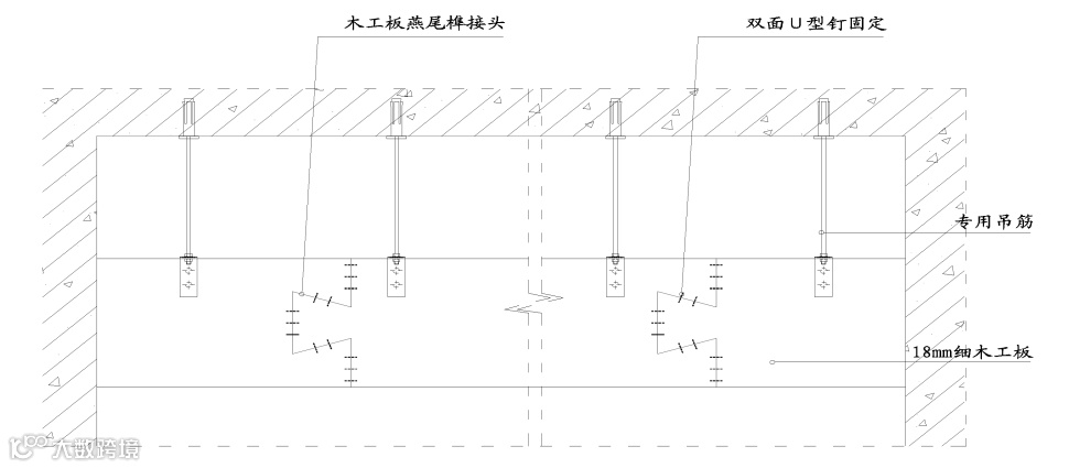
跌级吊顶侧挂板高度≥ 200mm 时,应设置燕尾榫。
吊顶及窗帘箱内非受力平接板均无需进行燕尾榫连接,以上所有设置燕尾榫部位背面需采用细木工板加固,每段搭接长度不小于 200mm,采用自攻螺丝固定。
侧挂板高度 200~ 400mm 仍为单燕尾榫;侧挂板高度 400~600mm 设置双燕尾榫;高度≥ 600mm 以上应采用轻钢龙骨基层制作骨架。
其中一处转角位封一层 L角(300mm*600mm 长)9mm 多层板;另一处转角位多层板、石膏板封板完成,同时将高低叠级处的装饰石膏线及反光灯槽(转角长度不小于 1000mm)安装完成。
其余转角位及天花高位大面均保留轻钢龙骨完成面,不封板。
天花低位封板部分的天花灯孔、风口及设备检修孔洞需全部开好,成品检查口需安装一个样板。
工艺样板说明标识,应采用统一格式打印,张贴在该项工艺样板施做位置的明显部位。
标识说明应包括但不限于:
样板名称、工艺工法主要控制点说明、材料品牌、规格尺寸及使用部位说明、施工节点大样图纸等;
吊顶工艺展示牌共分为三种:
工艺说明、工艺大样图、各工序标牌;展示牌采用 TK 板制作,尺寸统一为 200*80,采用双面胶固定在实体样板层上。
技术要点:
01、采用 50 系主龙骨,壁厚为 1.2mm,安装间距不大于 900mm;副龙骨为 50 系列,壁厚为 0.5mm,安装中心间距 300mm。
02、吊杆应采用热镀锌成品螺杆,直径不小于Φ8,吊杆长度大于 1200mm 的须采用 60 系主龙骨或 30x30mm 热镀锌角钢作反支撑加固处理。
03、吊顶低位侧挂板至墙体距离大于 300mm 的须增设一根主龙骨,主龙骨端头离墙或挂板不得大于 100mm;主龙骨端头离吊件悬挑不大于 300mm。
04、吊顶高位空间不够的位置可以采用卡式加强型主龙骨施工,卡式轻钢龙骨(间距不大于 600mm)膨胀螺栓固定,安装副龙骨(间距 400mm)。
05、卡式龙骨石膏板施工工艺步骤:
弹线放样→固定卡式轻钢龙骨(间距不大于 600mm)膨胀螺栓固定→安装副龙骨(间距 400mm)→面层铺装 12mm 厚单层石膏板→自攻螺丝固定。
技术要点:
01、叠级式吊顶低位的转角部位副龙骨面采用 0.8mm 厚,40mm 宽镀锌铁皮斜拉加固,减少吊顶转角位开裂风险。
02、镀锌斜拉铁片应延伸至边龙骨,固定平直、牢固。
技术要点
01、侧挂板转角处用自攻螺丝固定 0.8mm 厚镀锌铁片 90 度包角加固。
02、镀锌铁片高度同侧挂木基层板高度,每边转角宽度不小于 100mm。
技术要点
01、吊顶转角部位第一层采用 9mm 多层板,原则上 L 型整板转角内边裁成 300mm*600mm,用自攻螺丝固定,L 角内边长不得小于 300mm。
技术要点
01、吊顶转角处面层(第二层)需采用整张石膏板裁成 L 形,两端长于第一层基层板各 300mm,面层与第一层多层板及第二层板的夹层间均要求满涂白胶,自攻螺丝固定。
02、面层石膏板拼接缝与第一层板拼接缝按 300mm距离错缝安装。
技术要点
01、叠级高度≥400mm,竖向基层不得使用木工板直接吊挂,须采用轻钢龙骨基层制作骨架,封双层 9.5MM 厚纸面石膏板。
技术要点
01、天花叠级高度<400mm 的竖向采用 18mm 木工板基层吊挂制作,面层封单层 9.5mm 厚石膏板。
技术要点
01、叠级高度 ≥200mm,且< 400mm 的竖向基层采用 18mm 木工板基层吊挂制作,木工板拼接必须采用燕尾榫做法连接。
细木工板底板或周边挂板高度 300mm 以内的,需做一个燕尾榫铆接,榫长宜控制在 150mm 以内,榫高宜控制在雄榫处三等分左右。
细木工板底板或周边挂板高度300mm小于400mm的,需做两个以上燕尾榫铆接,每个榫长宜控制在 120mm 以内,榫高宜控制在雄榫处五等分左右。
且背部加衬板,所有铆接部位以内需自攻螺丝满加固,灯槽内必须用石膏板封平。
02、侧板挂板基层下口需与副龙骨齐平,木基层板须三防处理。
技术要点
01、吊顶高位处如设计做法为封双层 9.5mm 纸面石膏板,轻钢龙骨副龙骨需安装成单向中心间距 300mm,石膏板拼缝处设置横撑龙骨。
02、安装石膏板的自攻螺丝钉帽须沉入板面 0.5~1.0mm,纸面不破损,固定第一层板的螺丝间距为 200~250 mm,固定第二层的螺丝间距为 150~170 mm。
03、上下两层石膏板的接缝应错开,不得在同一根龙骨上接缝,板接触面须满涂刷白乳胶并用自攻螺丝固定牢固。
04、转角处接缝处石膏板基层黏贴 250mm 宽塑料网格布加强。
技术要点
01、高位处如设计做法为封单层 12mm 纸面石膏板的,轻钢龙骨需设横撑龙骨加固,中心间距为 600mm,即副龙骨与横撑龙骨形成 300*600mm 方格。
02、石膏板的长边(即包封边)应沿纵向副龙骨铺设,相邻两块石膏板之间应错缝拼接,留缝宽度 4-6mm。
03、石膏板安装前,须核对灯孔与龙骨的位置,严禁灯孔与主、次龙骨位置重叠。
技术要点
01、天花高位有挂装饰灯的位置需加固处理,采用双层 18mm 多层板,400mm*400mm,用 4 根吊杆直接吊挂在结构楼板上。
02、多层板须三防处理, 特殊重型灯具需按专业厂商要求,经设计复核,设置安装预埋件。
需安装轻型吊灯的部位,应预设 400mm x400mm 双层18厘多层板,板面与龙骨面齐平(多层板须采用Φ8镀锌吊杆固定于结构楼板底面,可不与四周吊顶围边龙骨固定连接),吊灯重量不宜超过30kg。
技术要点
01、石膏线应弹线安装,采用不锈钢自攻螺丝固定于轻钢龙骨或木基层上,螺丝间距不大于 600mm,沉入表面 2mm,石膏线对接处及转角对接处粘石膏须饱满必须用玻璃纤维丝紧贴线条后背再用纤维石膏加固。
02、大于 100mm 宽的石膏线,长度在 3000mm 以内须按整根加工。
工艺说明:
根据图纸确认风口的大小和位置
根据开好的风口与吊顶的高度确认帆布的大小长短
安装空调系统风管
龙骨的安装
风口的安装
工艺说明:
在顶棚和地面弹出玻璃隔断的位置线
安装固定下部的锚固件
再完成隔断上部的安装
中间填满橡皮垫或填充剂
最后用密封胶密封
工艺说明:
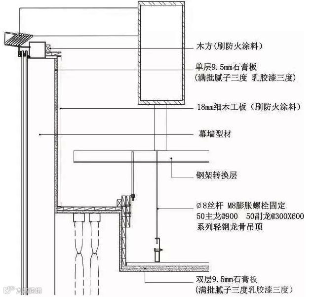
龙骨吊件与钢架转换层焊接固定,连接处满焊,刷防锈漆三遍
50主龙间距900mm,50副龙间距300mm,副龙横称间距600mm
18mm细木工板刷防火涂料三度,与吸顶吊件采用35mm自攻螺丝固定
9.5mm厚纸面石膏板,用自攻螺丝与龙骨固定
满批耐水腻子三度
乳胶漆涂料饰面
工艺说明:
龙骨吊件与钢架转换层焊接固定,连接处满焊,刷防锈漆三遍
50主龙间距900mm,50副龙间距300mm,副龙横称间距600mm
18mm细木工板刷防火涂料三度,与吸顶吊件采用35mm自攻螺丝固定
9.5mm厚纸面石膏板,用自攻螺丝与龙骨固定
满批耐水腻子三度
乳胶漆涂料饰面
龙骨吸顶吊件用膨胀螺栓与钢筋混凝土板固定;
50主龙间距900mm,50副龙间距300mm,副龙横称间距600mm;
9mm厚多层板刷防火涂料三度,用自攻螺丝与龙骨固定;
木饰面采用挂条固定;
加工定制内经300mm,外径350mm成品木饰面线条,与木饰面固定
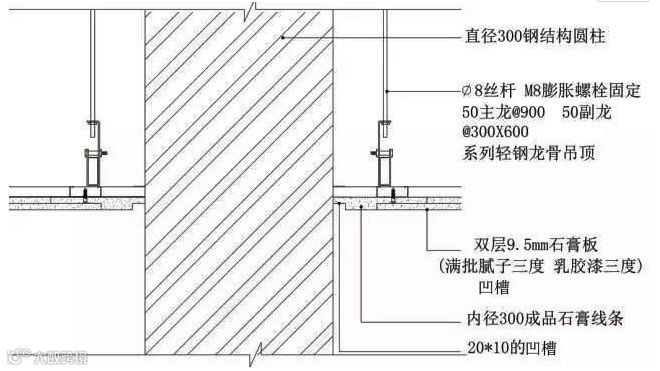
工艺说明:
龙骨吸顶吊件用膨胀螺栓与钢筋混凝土板固定;
50主龙间距900mm,50副龙间距300mm,副龙横称间距600mm;
加工定制成品石膏线条,内经300mm,外径450mm,预留20*10的凹槽;
9.5mm厚纸面石膏板与成品石膏线条用自攻螺丝与龙骨固定;
满批耐水腻子三度;
乳胶漆涂料饰面;
龙骨是吊顶的地基,如果龙骨没有安装好,那么吊顶就可以有脱落的危险,留下安全隐患,验收的时候需要检查龙骨是否牢固,有没有出现变形或者扭曲的情况等。
龙骨都是有相应的承重标准的,很多人都喜欢在客厅安装吊灯,在安装吊灯的时候需要注意龙骨的承重问题, 如果吊顶重量比较重,那么建议不要直接挂在龙骨上面,而应该外挂吊钩。
吊顶是室内装饰的一部分,那么对其美观性肯定是有一定要求的,验收的时候要注意黏贴的照面不要有脱落的情况,搁置的罩面板不能有漏、透、翘等现象。
使用镀锌钉的吊顶要注意钉头上需要涂上防锈漆,避免生锈了影响整体的美观。
吊顶的衔接问题包括罩面板和龙骨的衔接是否紧密,表面应该平整没有污染、折痕和缺角等问题,还需要保证接缝一直,压条顺直,无翘曲等缺陷,罩面与墙面、窗帘盒、灯具还应该交接严密,不能有太大的缝隙。
吊顶是位于顶部的,其验收是非常重要的,既需要保证安装的美观性,还要保证其牢固性。
相邻的主龙骨吊件应该是正反扣,并且连接铆钉,相邻的接头应该错开,以便加强它的稳定性。
次龙骨与主龙骨的连接应扣死,不扣死容易造成坍塌造成安全事故。
连接时必须锚固或用自攻丝固定,以免吊顶震动造成危险。
为防止木板变形,板H>300mm建议使用全龙骨吊顶。
e、吊顶侧板+木板高度
侧板H>300mm必须侧板加固,节约材料、且稳定性强。
1、起泡:主要原因有基层处理不当,涂层过厚,特别是木基层上做乳胶漆时容易出现起泡;防止的方法除涂料在使用前要搅拌均匀。
2、反碱掉粉:主要原因是基层未干燥就潮湿施工;未刷封固底漆及涂料过稀也是重要原因。如发现反碱掉粉,应返工重涂,将已涂刷的材料清除,待基层干透后再施工。
3、流坠:主要原因是涂料粘度过低,涂层太厚。
4、透底:主要是涂刷时涂料过稀、次数不够或材料质量差;如发现透底,应增加面漆的涂刷次数,以达到墙面要求的涂刷标准。
5、涂层不平滑:主要原因是漆液有杂质、漆液过稠、乳胶漆质量差。在施工中要使用流平性好的品牌,最后一遍面漆涂刷前,漆液应过滤后使用。

整理:弃医跨界的工程师
【免责声明:我们尊重原创,主要目的在于分享信息。所有文字和图片均从网络转载,版权原作者所有,如有侵犯您的权益请告知我们,我们将及时删除,对文中陈述内容和观点均保持中立,不对其准确性、可靠性或完整性提供任何明示或暗示的保证,仅供读者参考。】
评论处大家可以补充文章解释不对或欠缺的部分,这样下一个看到的人会学到更多,你知道的正是大家需要的。。。