搜索
首页
大数快讯
大数活动
服务超市
文章专题
出海平台
流量密码
出海蓝图
产业赛道
物流仓储
跨境支付
选品策略
实操手册
报告
跨企查
百科
导航
知识体系
工具箱
更多
找货源
跨境招聘
DeepSeek
首页
>
【船舶知识】船舶结构基本知识
>
0
0
【船舶知识】船舶结构基本知识
武昌造船
2019-12-18
1
导读:船舶结构基本知识
◎荐读丨智能化部
转自
丨
威海
卓迅信息科技
船舶结构基本知识。
一、船体的组成
船舶是一种浮在水上的结构复杂的建筑物,通常由主船体和上层建筑部分组成。
以上甲板为界,其下部分为hang主船体,其上部分统称为上层建筑。
船体内部空间又被各层甲板、横舱壁和纵舱壁划分,从而形成船舶的各个舱室。
1.主船体
主船体由甲板和外板组成一个水密外壳,内部被甲板、纵横舱壁及其骨架分隔成许多舱室。
主船体主要由船底结构、船侧结构、甲板结构、舱壁结构和首尾结构所组成。
主船体是上层建筑的基础,其内通常布置机舱、燃油舱、水舱、货舱等;
主船体的主要作用是参与总纵强度,保证船体能浮于水中并具有一定的强度。
2.上层建筑
上层建筑的结构与主船体内相应的板架类似,也是由围壁板、甲板、横梁、肋骨、甲板纵骨、甲板纵桁和围壁扶强材等构件组成。
上层建筑的作用:
布置船员或旅客工作、生活的房间以及布置各种装置和设备等。
二、船体的骨架型式
船体是由钢板和骨架组成的长箱形结构。
船体的骨架型式可分为:
1.纵骨架式
2.横骨架式
3.混合骨架式
1.纵骨架式
概念:
纵向骨材较密、尺寸较小,横向骨材较稀、尺寸较大的船体骨架型式叫纵骨架式。
结构特点:
优点:
总纵强度较好;
由于纵向开材布置较密,板的稳定性较好,可减小板的厚度,减轻结构的重量。
缺点:
施工较麻烦。
应用范围:
大中型船的甲板和船底及某些油船的船中段多采用纵骨架式结构。
2.横骨架式
概念:
横向骨材较密、尺寸较小,纵向骨材较稀、尺寸较大的船体含骨架型式叫横骨架式。
结构特点:
优点:
多数骨材横向布置,横向强度较好,施工比较方便,建造成本低。
缺点:
同样受力情况下,外板和甲板的厚度比纵骨架式的大,结构重量较大。
应用范围:
多用于中小型船舶上,在大型船舶的舷侧、下甲板和首尾部也多采用横骨架式结构。
3.混合骨架式
概念:
纵横骨材间距和尺寸相当的骨型式称为混合骨架式。
另外在主船体一部分采用横骨架式,另一部分采用纵骨架式的船体骨架型式也叫混合骨架式。
应用范围:
通常在大、中型船舶上,强力甲板和船底部采用纵骨架式,舷侧,下甲板及首尾端采用横骨架式。
三、船体外板
1.作用:
构成水密外壳,保证船舶浮力;
是船体的主要纵向构件,保证船体总纵强度及局部强度。
2.组成:
外板由一块块钢板组合焊接而成。
钢板的长边沿船长方向布置,板与板在其短边连接而形成列板。
相邻两列板之间的接缝为边接缝,同一列板上板与板的接缝称为端接缝。
四、主船体结构和名称简介
(一)船底结构
船底结构可分为单底结构和双底结构。
单底结构优点:
结构简单、施工容易;
缺点:
纵向强度不大,抗沉性较差。
双底结构优点:
船舶的抗沉性较好;
底部空间可装载油、水,装压载水调整船舶浮态,降低船舶重心,提高船舶稳性;
增加船舶的纵向强度。
1.单底结构
横骨架式单底结构
1)组成:
由中内龙骨、旁内龙骨和肋板组成。
a.纵向构件:
中内龙骨、旁内龙骨
b.横向构件:
肋板(每档肋位设置,在中内龙骨处间断)
2)用途:
横骨架式单底结构通常用于小型内河船及大型船舶的首尾区域。
纵骨架式单底结构
1)组成:
由中内龙骨、旁内龙骨、船底纵骨和肋板组成。
a.纵向构件:
中内龙骨,旁内龙骨、大量的船底纵骨
b.横向构件:
肋板(每隔几档肋位设置)
2)用途:
纵骨架式单底结构过去通常用于油船及小型舰艇上,目前很少使用。
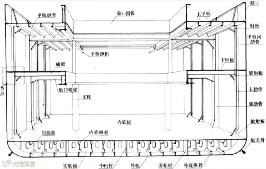
2.双底结构
横骨架式双底结构
1)组成:
由中桁材、旁桁材和肋板组成。
a.纵向构件:
中桁材、旁桁材
b.横向构件:
肋板(每档肋位设置)
肋板分为:
实肋板、组合肋板、水密肋板三种形式。
2)用途:
横骨架式双底结构主要用于内河中、小型客船和中、小型货船的货舱区域。
纵骨架式双底结构
1)组成:
由中桁材、旁桁材、外底纵骨、内底纵骨和肋板组成。
a.纵向构件:
中桁材、旁桁材、外底纵骨、内底纵骨
b.横向构件:
肋板(每隔几档肋位设置)
2)用途:
纵骨架式双底结构主要用于大型船舶,特别是大型油船的底部。
(二)舷侧结构
触侧结构是连接船底和甲板的侧壁,它直接受到船外水压力、碰撞力、波浪的冲击力等。
舷侧结构的分类:
1.横骨架式舷侧结构
1)结构形式:
a.单一肋骨式
b.强肋骨式:
由肋骨、强肋骨、舷侧纵桁组成。
2)用途:
常用于内河船的船侧结构。
2.纵骨架式触侧结构
1)组成:
由舷侧纵骨、强肋骨组成,在纵骨架式船侧结构中,用船侧纵骨代替肋骨,它不能支撑甲板重量,只能承担总纵强度。
2)用途:
主要用于少数大型油轮和矿砂船。
(三)甲板结构
甲板结构由甲板板、横梁、强横梁、舱口端梁、甲板纵桁、甲板纵骨、舱口围板及支柱等构成。
甲板结构可分为:
横骨架式甲板结构和纵骨架式甲板结构。
1.横骨架式甲板结构
1)组成:
纵向构件:
甲板纵桁
横向构件:
横梁、半横梁、舱口端梁、强横梁
2)用途:
常用于大型船舶的下甲板和内河船的甲板。
2.纵骨架式甲板结构
1)组成:
纵向构件:
甲板纵桁、甲板纵骨
横向构件:
强横梁(每隔几档肋位设置一根)
2)用途:
常用于大型船舶的上甲板和油船的主甲板。
3.货舱口围板结构
1)概念:
沿舱口四周设置的围板,一般指货舱口的围板。
2)组成:
露天货舱口围板结构由纵向和横向围板所组成。
围板上部设有水平加强筋、围板外部设有垂直加强筋。
3)作用:
舱口围板可防止舷外水流入或人员跌入舱内,并提高舱口区的结构强度。
4.甲板的支持结构
1)概念:
支柱是支撑甲板和平台等的柱子。
2)支柱的作用:
减少甲板纵桁和强横梁的尺寸,并将所受的力传递到下层较强的构件上。
3)支柱的位置:
支柱的上下支撑点应尽量设置在强力纵横构件的交汇处。
5.甲板板
甲板板是指构成甲板结构的板材,由纵向布置的板列组成。
在各层甲板中,强力甲板在保证船体总纵强度中的作用最大,其甲板板也最厚。
在同一层甲板上,船中部甲板板最厚并向首尾两端逐渐减薄。
在甲板开口的四周都应用复板加强。
在强力甲板中,沿左、右两舷舷边的列板称为甲板边板,是强力甲板最厚的列板。
(四)舱壁结构
舱壁的主要作用:
分隔船舱内部空间,保证船舶的抗沉性;
防止火灾蔓延及有害气体的扩散;
保证船体横向强度。
分类:
平面舱壁和槽形舱壁。
水密舱壁 (油密舱壁) : 能够防止水(油)渗透的舱壁称为水密舱壁(油密舱壁 ) ;
舱壁沿船长方向布置的,称为纵舱壁;
沿船宽方向布置的称为横舱壁。
1.平面舱壁
1)组成:
由舱壁板和舱壁扶强材组成。
舱壁板:
由多列钢板组合焊接而成。
靠近船底的一列板最厚,向上各列板厚逐渐减薄。
舱壁扶强材:
一般垂直布置。
当舱壁高度较大时,除扶强材外,还装设水平扶强材(水平桁材)。
2)特点:
安装大量的扶强材会造成船体重量增加,且施工麻烦。
2.槽形舱壁
1)用途:
槽形舱壁(波形舱壁)目前常应用于油船和散装货船上。
2)特点:
优点是强度要求相同时,槽形舱壁的
质量
比平面舱壁轻,并节省大量的型钢,又便于施工,清舱方便。
缺点是所占舱容较大,对装载包装货物不利。
(五)
首尾结构
1.首部结构
首部是从首尖舱舱壁到首柱的部分。船舶航行时,这部分经常受到波浪的冲击,水面漂流物和靠离码头时的碰撞,因而它的结构需要特别加强。
首柱的型式:有直立型、前倾型、雪橇型和球鼻型等几种型式。
2.尾部结构
在船体尾尖舱壁以后的区域,称为船尾部分。
这部分由于经常受到波浪打击、机器振动、舵运动等力量的作用,应和首部一样,需特别加强。
普通式船尾是由一端连接于尾舱舱壁、形成放射状排列的斜肋骨及斜横梁组成骨架,然后用外板包围而成。
尾柱是尾部结构的重要构件,它的作用主要是支持及保护舵和螺旋桨,并提高尾部结构的强度。
五、几种典型运输船的结构特点
(一)杂货船结构特点:
杂货船通常采用混合骨架式船体结构。
在货舱区设有两层以上的甲板,底部为双层底结构。
其中上甲板和双层底是纵骨架式结构,下甲板和舷侧是横骨架式结构。
上甲板和下甲板上开有较大的货舱口,舱口角隅或舱口两端中心线处设有支柱,有的设置半纵舱壁或舱口悬臂梁。
(二)散货船结构特点:
1.单壳体散货船结构:
混合骨架式船体结构。
只有一层全通甲板,底部为双层底,甲板下面靠两舷有两个顶边舱,双层底舭部处有向上倾斜的底边舱。
甲板和舷顶部、双层底和舷侧下部是纵骨架式结构,舷侧中部为横骨架式结构。
2.双壳体散货船结构
双壳体散货船是在单壳体散货船的基础上产生的,舷侧设内壳。
舷侧双壳结构可以是横骨架式,可以是纵骨架式。
在双壳内都设有水密或非水密的平台,而且内壳与底边舱及顶边舱相交处通常都应设有平台。
双壳体散货船横剖面结构:
1一上甲板;
2一顶边舱;
3一平台;
4一舷侧外板;
5一内壳纵壁;
6一横隔板;
7一底边舱;
8一内底板;
9一外底板
(三)集装箱船结构特点
集装箱船的货舱口宽度几乎与货舱宽度一样大,对船体的抗弯、抗扭和横向强度都很不利,在结构上应采取补偿措施。
其船体基本结构形式为双层底和双层舷侧结构,且在双层舷侧的顶部设置有效的坑扭箱结构;
也可用双层底和共有抗扭箱或其他等效结构的单层壳结构代替。
集装箱船的底部及抗扭箱的顶部强力部分(包括舷侧、内壳纵壁和甲板)均应采用纵骨架式,在其它处所纵骨架式和横骨架式均可采用,两个货舱口之间的舱口端横梁和甲板横梁应给予加强。
集装箱船横剖面结构:
1一中底桁;
2一纵
桁
;
3
一
集装箱;
4一舱口围板;
5一甲板纵骨;
6一纵舱壁;
7一围绕扁钢;
8
一
人孔;
9一
桁
板肋骨;
10一
平台甲板;
11一加强筋;
12
一
舭龙骨;
13一旁底桁;
14一内底纵骨;
15一内底板;
16一船底纵骨。
(四)油船结构特点
油船有单壳结构和双壳结构。
油船结构布置最大的特点设有纵舱壁,沿海小型油船,中线处设一道纵舱壁,横向分左右两个货油舱。
大型的油船设 2 一 3 道纵舱壁,横向分成 3 一 4 个货油舱。
1.单壳油船结构
单壳油船的甲板、底部和舷侧均为单层结构,甲板和船底采用纵骨架式,舷侧和纵舱壁可用横骨架式,也可用纵骨架式,大型油船多采用全纵骨架式结构。
为保证总纵强度和加强甲板及外板的刚性,所有板架上都装置密集的纵骨。
甲板和船底的中线面上还装有高大的制荡纵桁。
横向有环形的肋骨框架可增强船体的横向强度和刚性。
单壳油船横剖面结构:
1一船底板;
2一舷侧外板;
3一甲板;
4一纵骨;
5一强肋骨:
6一撑杆:
7一纵舱壁;
8一中内龙骨;
9
一
甲板纵桁;
10
一
强横梁;
11
一
肋板;
12
一
流水孔;
13
一
横舱壁;
14
一
水平桁;
15
一
垂直扶强材
2.双壳油船结构
根据现在国际防污染条约规定,为防止海洋污染,单壳油船逐步取消,载重量大于等于 5000T 的大、中型油船货油舱区都必须采用双壳结构。
双壳油船货油舱由双层底、双壳、,隔离空舱和甲板围成,双层底内和双壳内不允许装货油和燃油。
双壳油船货油舱的甲板骨架、双层底骨架应为纵骨式,船长大于 190m 时,舷侧、内壳和纵舱壁一般也应为纵骨架式。
货油舱区域以外的船体结构可为横骨架式或纵骨架式。
双壳油船横剖面结构:
1一甲板板;
2一甲板纵骨;
3一
舷侧外板;
4一内壳板;5一舷侧纵骨;6一内壳板纵骨;
7
一
开孔平台;
8
一
平台纵骨;
9
一
底边舱;
10一外底
板;
11一内底板;
12一内底纵骨;
13一船底纵骨;
14
一
箱形中底桁;
15
一
旁底桁;
16
一
槽形纵舱壁;
17
一
底凳;
18
一
顶凳
(五)滚装船的结构特点
滚装船是一种专用船舶,其目的是装载车辆和以车辆为装却手段的集装箱和货盘化货物。
其结构布置与一般货船有很大不同。
滚装船结构布置特点是首尾设有尖舱,机舱位于尾部靠近两舫处,高度很低,近似于封闭式。
船体中部是一个大货舱,货物用车辆从尾部的登岸跳板,通过尾门进行装卸。
有的船首部也设跳板,并设有首门,首门可采用罩壳式或边绞链式。
此外也有设置舷门进行装卸的。
上甲板上无货舱口。
船体内设有多层甲板,甲板间舱不设或尽量少设横隔壁。
为保证船体的横向强度,设置局部舱壁或强肋骨和强横梁。
下甲板下方设置左右边舱。
强力甲板和船底一般采用纵骨架式结构,底部为双层底结构。
升降平台设计成上有平台板、下有强横梁、桁材和扶强材等骨架的箱形结构。
—
END
—
点击下方“
阅读原文
”进入【
船舶知识
】专栏
阅读更多船舶建造知识
欢迎识别上方二维码关注我们
喜欢就点一下右下角的“在看”吧↘↘
【声明】内容源于网络
0
0
武昌造船
中国船舶集团有限公司所属武昌船舶重工集团有限公司官方订阅号。
内容
3377
粉丝
0
关注
在线咨询
武昌造船
中国船舶集团有限公司所属武昌船舶重工集团有限公司官方订阅号。
总阅读
9
粉丝
0
内容
3.4k
在线咨询
关注