大数跨境
0
0

百大肥西农产品物流园火热招商中,敬请关注!

百大肥西农产品物流园火热招商中,敬请关注! 百大物流园
2023-04-03
0


百大肥西农产品物流(简称“百大物流园”)项目一期火热招商中,项目位于安徽省合肥市肥西县严店镇G3京台高速严店出入口往南200米。

招商热线:0551-68886199


招商宣传片





物流园简介


百大物流园由合肥百货大楼集团股份有限公司全额投资建设。属肥西县招商引资及重点调度项目,是国家骨干冷链物流基地、安徽省重点建设项目、市县重大“菜篮子”民生工程。项目总占地约1500亩,净用地约1209亩,总建筑面积约117万㎡,总投资约45亿元。百大物流园全部建成投运后,预计年交易量450万吨、年交易额 500 亿元,为保障合肥乃至周边地区的“菜篮子”工程全面赋能。


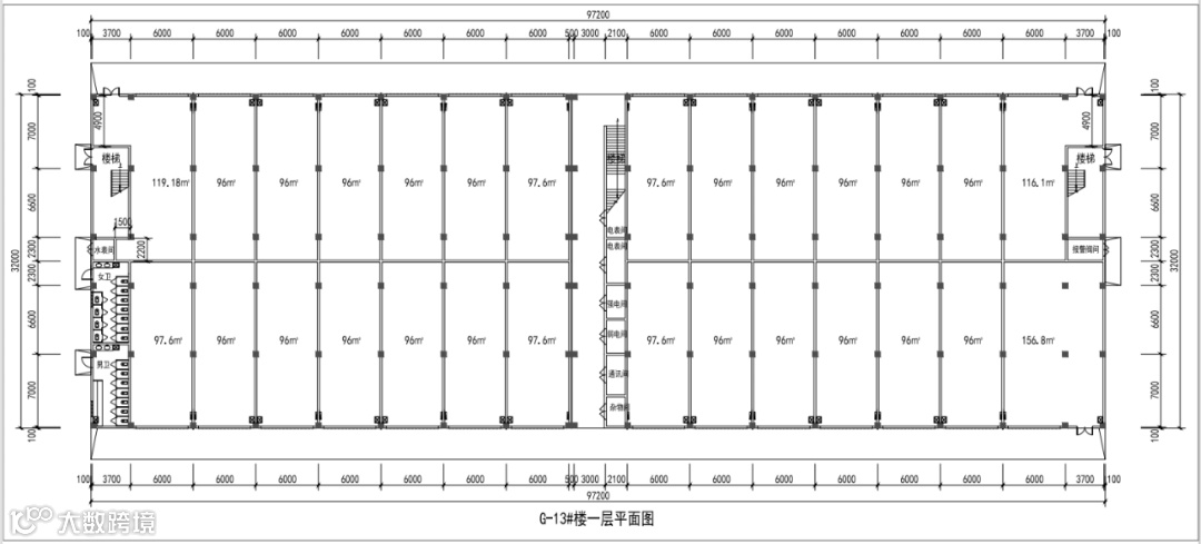
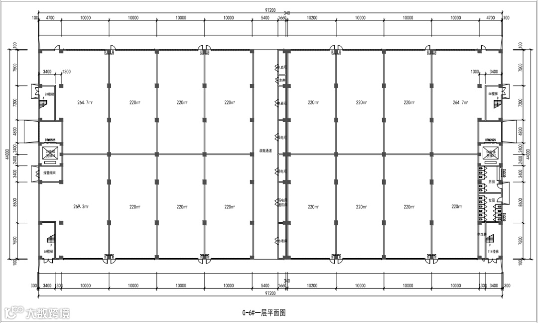
一期重点建设水产品、果蔬交易中心,计划2023年投入运营。水产品仓铺270间(主力户型:5m 宽*12m径深)、果蔬仓铺540间(主力户型:5m宽*22m径深、6m宽*16m径深)、商业内铺224间、车售位约450个;所有仓铺二层配备办公用房,果蔬仓铺三四层设有大面积配套仓储用房;设置大跨度网架钢结构停车大棚,提供500个全天候调货停车位;4.6万m²双首层,一层为冷链货柜专区、二三层为加工分拣专区,满足多元化需求,实现高效流通。
二期重点建设综合副食品交易中心及冷链仓储加工配送区。规划建设20万吨高标准冷库,以满足园区及合肥周边冷藏保鲜需要,打造服务安徽、辐射全国的现代化冷链物流体系。

1.水产品一层仓铺-示意图:


2.果蔬一层仓铺-示意图:



3.双首层一层冷链货柜专区-示意图:




诚邀入驻


一期水产品、果蔬交易中心

仓铺已开启意向登记,

诚邀广大商户入驻,共创农批发展新辉煌。






意向登记窗口






 

火热招商中  欢迎微信咨询




更多新闻,扫描二维码
关注百大物流园


 百大物流园

【声明】内容源于网络
0
0
百大物流园
百大物流园位于严店高速口200米处,是合肥国家骨干冷链物流基地核心项目,总占地面积1500亩,总投资45亿元。规划建设农产品交易、冷链物流、加工配送等功能区,打造农产品流通“买全球、卖全球”绿色通道。
内容 125
粉丝 0
百大物流园 百大物流园位于严店高速口200米处,是合肥国家骨干冷链物流基地核心项目,总占地面积1500亩,总投资45亿元。规划建设农产品交易、冷链物流、加工配送等功能区,打造农产品流通“买全球、卖全球”绿色通道。
总阅读29
粉丝0
内容125