
倾听来自济宁高新的声音
位于济宁高新区
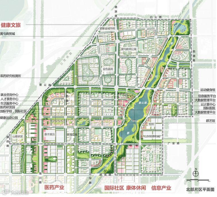
景云路与广安路之间
总面积62万平方米的景云湖项目
目前已开工建设
景云湖效果图
虎啸而谷风生,龙举而景云属
借“景云”祥瑞之意的景云湖项目
旨在打造成为蓼河新城北部
集风景与祥瑞的健康宜居片区
东起西浦路、西至瑞园路
南起群英路、北至白云路
轴带延展、环湖筑心
新城北区将以景云湖为中心
环湖围绕六大功能进行延展
功能定位
人才服务、信息服务
康体运动、文化休闲
主导功能
功能定位
健康生态体验社区
主导功能
功能定位
健康生态示范园
主导功能
另外,项目还将增设
多个商业综合体和对外公厕
运动场和售卖商业街等配套设施
同时,整体运用斑斓的色彩与弧形的设计
打造出一个全民智慧运动公园
随着蓼河新城建设的持续推进
相信,在不久的将来
“景云”不仅仅是一片生态之湖
更是高新人的养怡之福
编辑:秦浩
校对:曹井国
蓼河新城,带来新惊喜!![]()

