
金秋十月,随着兴荣集团供应链信息大楼的封顶,兴荣产业园迎来了三期项目的又一突破,园区建设工作开启了一个全新的发展篇章。园区设施现已陆续投入使用,正蓄势待发,迎接更多企业的高效进驻与发展。
“高楼万仞平地起,岁月匠心铸辉煌。”从蓝图初现到高楼耸立,每一砖一瓦都凝聚着兴荣集团和建设者们的智慧与心血。今日的封顶,是时间的见证,更是品质的承诺。这不仅是一座厂房建筑的封顶,更是无数企业发展与腾飞的起点。


企业入驻请联系招商部:
庄先生13906041532
陈先生13850057575
胡先生18250701181
邮箱:xr@amoyxingrong.com
地址:福建省厦门市同安区同集北路300号
三期项目
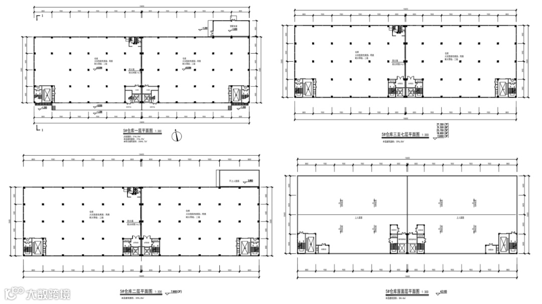
三期项目作为兴荣产业园发展的重要里程碑,总建筑面积达6万平方米,包含两栋7层框架结构的标准仓储与加工厂房双用途建筑,每层约4000平方米,层高设计灵活,能够满足各类企业的多样需求。三期项目不仅将园区总面积扩展至27万平方米,也进一步优化了产业布局,有效提升产业上下游物流效率,降低物流成本,利于产业链整合与行业互动交流,为形成更加集聚效应和优质的产业环境打下坚实基础。
❖高标准厂房:每栋7层,每层约4000平方米,厂房荷载按照1.5T/m²设计。
❖层高:1层7.9米,2-3层6米,4-7层5.7米。
❖先进配置:每栋配置4部9吨货梯,一楼整层自带1.3米高出货平台。

三期厂房平面图

三期厂房配置情况
园区概况
兴荣产业园是经国家发改委立项的厦门市重点物流园项目,是厦门打造国际性物流枢纽城市的重要支撑项目和抓手。由兴荣集团投资近10亿建设,建筑面积达27万平方米。产业园具有建设标准化、智能化、数字化与供应链和产业链高度融合的特点,并以绿色、低碳环保为理念,具备有效解决城市物流短板的能力。
兴荣产业园项目规模体量位居福建省前列。主要业务包含产业园厂房租赁、汽车销售与保养、物流与仓储、物业管理、加工制造等,目前园区已入驻有:汽车4S店、仓储、贸易、加工等企业。集团顶层规划园区,致力于将物流园打造成为集新能源汽车产业园、物流供应链、工业中转链、城市综合一体化的国际物流中心。
园区布局
产业园采用先进的功能分区理念,将生产区与生活区独立设置,高效管理。厂房建筑设计以简洁大方为特色,色彩上采用红白搭配,与周边环境和谐共存。立面设计开敞明亮,既表现了现代园区的高效快捷,又塑造了开放与稳重并存的现代企业形象。
园区内部设施不仅包括现代化的物联网与供应链系统,还覆盖企业的生产、管理等全业务流程。从信息、配货,到办公和生活设备设施,园区将为企业提供“一站式”全方位支持,帮助企业降低运营成本,提高生产效率。同时,光伏系统的应用为园区提供了持续、绿色的能源供应,符合现代化低碳环保的趋势。

企业责任
除了基础设施的建设,兴荣集团设施还积极参与区域内的社会与经济建设。园区的建设不仅创造了大量的就业机会,也为企业之间的合作与发展提供了优质的平台。通过创新的物流管理技术和供应链整合方案,兴荣产业园正成为区域经济的有力推动者。
随着园区日渐完善,更多的企业将加入这个充满活力与创新的高效产业平台。凭借卓越的区位优势和完善的配套设施,物流、汽车、电商、汽车4S店、加工制造等行业的企业将在这里找到最合适的经营环境。
未来,兴荣将依托这一产业园基地,加强物业服务和品质提升,为客户提供更加优质、高效、便捷的办公经营空间。同时,我们也期待与各位合作伙伴携手并进,打造一个充满活力、可持续发展的现代化标杆物流园区,共同推动区域的发展和繁荣。
<<< END >>>



