搜索
首页
大数快讯
大数活动
服务超市
文章专题
出海平台
流量密码
出海蓝图
产业赛道
物流仓储
跨境支付
选品策略
实操手册
报告
跨企查
百科
导航
知识体系
工具箱
更多
找货源
跨境招聘
DeepSeek
首页
>
在上海 有座Made in 泰润的模块化办公中心
>
0
0
在上海 有座Made in 泰润的模块化办公中心
泰润模块化智造
2016-05-19
2
导读:在上海 有座Made in 泰润的模块化办公中心项目简介:功能:办公室、会议室、接待中心特色:模块化建筑,光
在
上海
有座Made in 泰润的模块化办公中心
项目简介:
功能:办公室、会议室、接待中心
特色:模块化建筑,光伏发电配套
地点:上海 闵行区
集装箱数量:20个 (多规格)
上海闵行有座移动办公中心,是采用泰润装备自主生产的办公模块主体建筑,该建筑由20个保温箱体组成,一层面积550平方米,二层露台90平方米,屋面占地120平方米架设太阳能发电,主体结构高3米,2015年竣工。
小编实地探访
办公中心外景
办公中心入口
走廊外装饰
外观结构
安全出口
会议室外立面
景观布置
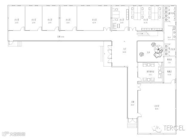
平面布置及拼箱结构
该办公中心的主体模块由20个不同规格的保温箱体组成,通过箱体连接达到一个大空间的使用条件。
由3个40尺高箱连成的无柱大会议室,内面积约90平方米
前厅休息室 由2个20尺高箱拼接而成,整面落地玻璃窗通透花园
走道宽度2.4米,由多个标箱模块连接组成
太阳能光伏发电
约120平方米光伏发电配套
卫生间配套
外观结构
【声明】内容源于网络
0
0
泰润模块化智造
江苏泰润物流装备有限公司 成立于2012年,注册资本1.6亿,从事特种集装箱、近海OFFSHORE、模块化建筑及整体装配式内装修的设计研发和制造。
内容
37
粉丝
0
关注
在线咨询
泰润模块化智造
江苏泰润物流装备有限公司 成立于2012年,注册资本1.6亿,从事特种集装箱、近海OFFSHORE、模块化建筑及整体装配式内装修的设计研发和制造。
总阅读
39
粉丝
0
内容
37
在线咨询
关注