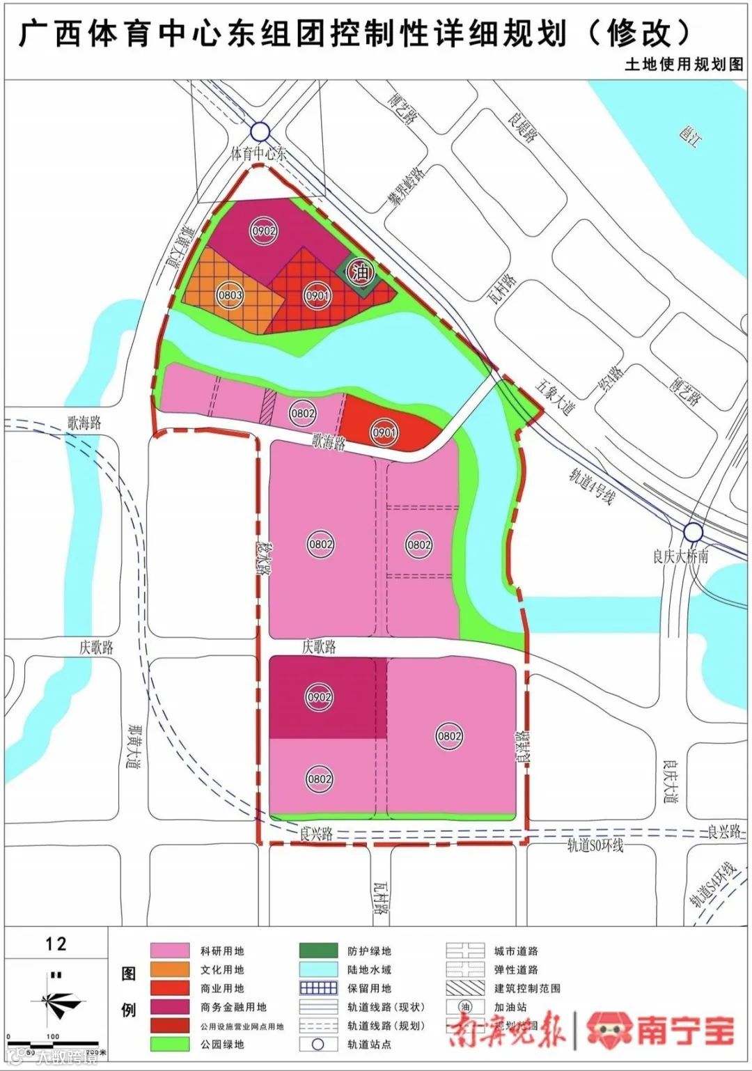
近日,南宁市自然资源局发布广西体育中心东侧组团、相思湖西片区及中关村二期单元控制性详细规划局部地块维护方案,拟对片区局部用地进行调整,涉及商业用地、居住用地及工业用地等,不断完善片区居住环境。
体育中心东侧组团规划
有两条轨道线路经过
根据《广西体育中心东侧组团控制性详细规划(修改)》(草案),规划维护范围北至五象大道,西至那黄大道及稔水路,南至歌海路及良兴路,东至良泽路及北侧水系,面积约0.83平方公里。

规划维护主要内容,为统筹协调区域发展,优化片区空间结构,进一步科学有效指导该区域用地开发建设,拟开展《广西体育中心东侧组团控制性详细规划(修改)》编制工作。
从土地使用规划图看到,片区内的用地主要为科研用地、商业用地、商业金融用地以及公共设施网点用地。值得注意的是,此次公布的控规图,除已经建成的南宁轨道交通4号线外,还规划有两条轨道线路经过该片区。轨道S0环线沿良兴路、那黄大道及歌海路走向,轨道S4环线经过良兴路附近。
相思湖西片区
增加一幅二类居住用地
根据《南宁高新技术产业开发区相思湖西片区控制性详细规划》局部地块维护方案(草案),规划维护范围位于高新区罗文大道、江北大道、育才路、规划学苑路围合区域内的局部地块。

规划维护主要内容,江北大道与鹏飞路交叉路口附近一地块按不动产权证的用地边界范围进行调整,调整前地块面积0.72公顷,调整后面积为0.68公顷,用地性质和规划指标维持原控规不变。将大学西路与鹏飞路交叉路口的一地块南侧支路东段按不动产权范围调整道路位置,西段调整为弹性道路。
将石埠路一地块由原规划机关团体用地调整为二类居住用地。将大学西路与罗文大道交叉路口的西北面一地块用地指标容积率不超过1.23调整为不超过1.3,建筑密度不超过48.03%调整为不超过50%,绿地率不小于26%调整为不小于25%,地块用地面积、用地性质保持不变。
中关村二期单元一住宅用地
调整为商业用地
根据《南宁市中心城区ZGC-02(中关村二期)单元控制性详细规划》局部地块维护方案(草案),规划维护范围位于高新区中创路、安吉大道、永林路、罗伞岭西路围合区域的局部地块。

(南宁市自然资源局网站供图)
规划维护主要内容,将中创路与罗伞岭西路交叉路口西南方向原5幅地块由原规划商业用地调整为一类工业用地,容积率不小于0.8,建筑高度不超过80米,绿地率不小于5%且不超过20%。取消原一幅地块内部的弹性道路。将芦村岭路附近一地块由原规划二类城镇住宅用地调整为商业用地。
近日,南宁市自然资源局发布广西体育中心东侧组团、相思湖西片区及中关村二期单元控制性详细规划局部地块维护方案,拟对片区局部用地进行调整,涉及商业用地、居住用地及工业用地等,不断完善片区居住环境。
体育中心东侧组团规划
有两条轨道线路经过
根据《广西体育中心东侧组团控制性详细规划(修改)》(草案),规划维护范围北至五象大道,西至那黄大道及稔水路,南至歌海路及良兴路,东至良泽路及北侧水系,面积约0.83平方公里。

规划维护主要内容,为统筹协调区域发展,优化片区空间结构,进一步科学有效指导该区域用地开发建设,拟开展《广西体育中心东侧组团控制性详细规划(修改)》编制工作。
从土地使用规划图看到,片区内的用地主要为科研用地、商业用地、商业金融用地以及公共设施网点用地。值得注意的是,此次公布的控规图,除已经建成的南宁轨道交通4号线外,还规划有两条轨道线路经过该片区。轨道S0环线沿良兴路、那黄大道及歌海路走向,轨道S4环线经过良兴路附近。
相思湖西片区
增加一幅二类居住用地
根据《南宁高新技术产业开发区相思湖西片区控制性详细规划》局部地块维护方案(草案),规划维护范围位于高新区罗文大道、江北大道、育才路、规划学苑路围合区域内的局部地块。

规划维护主要内容,江北大道与鹏飞路交叉路口附近一地块按不动产权证的用地边界范围进行调整,调整前地块面积0.72公顷,调整后面积为0.68公顷,用地性质和规划指标维持原控规不变。将大学西路与鹏飞路交叉路口的一地块南侧支路东段按不动产权范围调整道路位置,西段调整为弹性道路。
将石埠路一地块由原规划机关团体用地调整为二类居住用地。将大学西路与罗文大道交叉路口的西北面一地块用地指标容积率不超过1.23调整为不超过1.3,建筑密度不超过48.03%调整为不超过50%,绿地率不小于26%调整为不小于25%,地块用地面积、用地性质保持不变。
中关村二期单元一住宅用地
调整为商业用地
根据《南宁市中心城区ZGC-02(中关村二期)单元控制性详细规划》局部地块维护方案(草案),规划维护范围位于高新区中创路、安吉大道、永林路、罗伞岭西路围合区域的局部地块。

(南宁市自然资源局网站供图)
规划维护主要内容,将中创路与罗伞岭西路交叉路口西南方向原5幅地块由原规划商业用地调整为一类工业用地,容积率不小于0.8,建筑高度不超过80米,绿地率不小于5%且不超过20%。取消原一幅地块内部的弹性道路。将芦村岭路附近一地块由原规划二类城镇住宅用地调整为商业用地。

/近日关注/
关注!青秀区拟建一座体育综合馆
三鹤金蛇一号特级六堡茶限时4折......蛇年首款!复合香型限量大箩茶
本月底,南宁恢复通航拉萨!




