
无论交友还是生活,能和舒服的人在一起,为自己打造一个舒心的交际圈,打造一个健康的交友环境,便是最好的养生。但前提是,我们也要成为这样的人:懂得善待别人,懂得尊重谦和,懂得把握分寸,懂得真诚包容。多为对方想一想,站在事情另外一个角度想一想。
哇,好难啊!,即使再难也得坚持这样去做,因为这样养生至少可以多活十年,你可愿意!,美好一天从(养生)开始
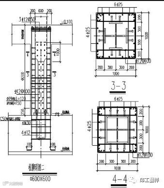
前提是不可丢掉学习,好哈!型钢梁钢筋翻样邀请一起谈论学习!
快速基础筏板钢筋翻样1(1)

点击上面标题下方蓝色邱工翻样即可关注公众号!
点击下面蓝色阅读原文即可观看学习视频,平台有很多其它免费视频提供给学习。

