从寒冬,到春天;从武汉,到全国。这是每个人的考验,也是每个人的战争。一次逆行,一份职责,一腔热忱,一份心意…...或许,你能做的只是一点,但14亿个一,可以铸就奇迹!
美好一天从“奇迹”开始!

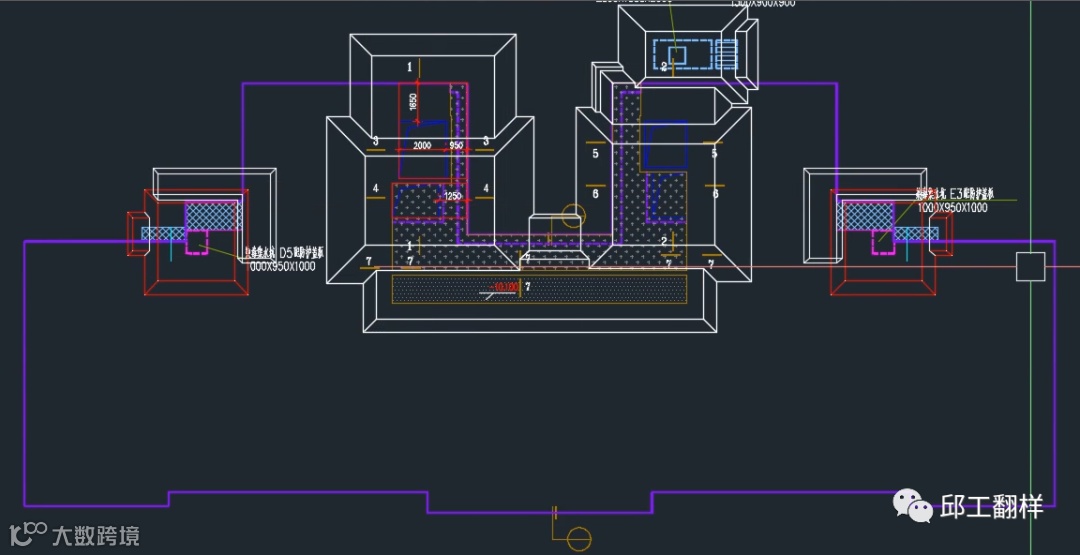
在做墙插筋之前需要理解基础图相互关系,那么我们可以利用画基础来完成,更简单直观的做出来,让我们做墙插筋位置及深度变化一目了然,达到我们想要的结果,欢迎收看本次直播,画完基础还可以直接用于筏板计算的哟!
快速基础筏板钢筋翻样1(1)

点击上面标题下方蓝色邱工翻样即可关注公众号!
点击下面蓝色阅读原文即可观看学习视频,平台有很多其它免费视频提供给学习。

