搜索
首页
大数快讯
大数活动
服务超市
文章专题
出海平台
流量密码
出海蓝图
产业赛道
物流仓储
跨境支付
选品策略
实操手册
报告
跨企查
百科
导航
知识体系
工具箱
更多
找货源
跨境招聘
DeepSeek
首页
>
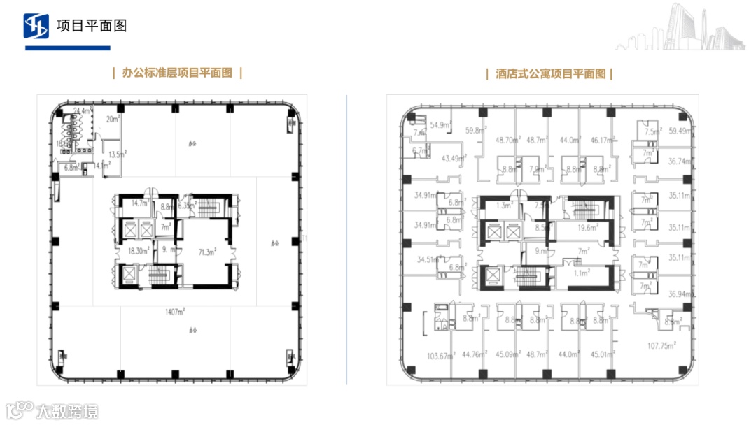
宝龙大厦1号楼项目招商推介
>
0
0
宝龙大厦1号楼项目招商推介
天津产权交易中心有限公司平台
2025-08-29
3
-往期回顾-
【声明】内容源于网络
0
0
天津产权交易中心有限公司平台
天津产权交易中心
内容
343
粉丝
0
关注
在线咨询
天津产权交易中心有限公司平台
天津产权交易中心
总阅读
315
粉丝
0
内容
343
在线咨询
关注