点击蓝字
关注我们
解放北路219号
资产情况
解放北路219号资产原为凯悦酒店,项目位于天津市和平区解放北路,坐落于海河河畔及繁华的金融商业地段,是天津地标性建筑。在中国近代历史上,这里曾是外国银行集中地,更有“东方华尔街”之称,现今也是天津金融机构的集聚地之一。
凯悦酒店是上世纪80年代天津市对外招商引资项目,是天津市首家集餐饮、商务、休闲于一体的四星级涉外酒店。于1986年建成并开业运营,2009年停业。解放北路连接了天津两大传统商圈,滨江道——和平路商圈和小白楼商圈。
周边酒店包括:利顺德、丽思卡尔顿、香格里拉;周边商业包括:海信广场、友谊精品广场、小白楼商业区;
周边大型优质住宅区包括:天津嘉里中心雅颂居、天津中信城市广场、汤臣一品;
周边政府机构包括:天津市财政局、天津市人大常委会、天津市发改委。
项目距离津滨轻轨地铁9号线十一经路站约500米;距离地铁1号线至小白楼站约500米;距离天津站(火车站)2.8公里。
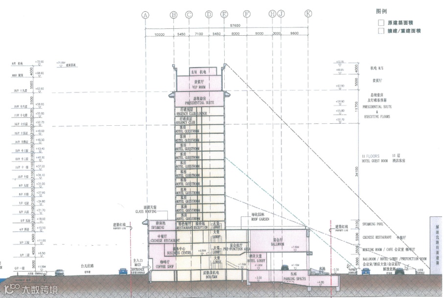
基础指标: 土地性质为商业用地,总占地面积5759.6平方米,地上建筑面积35548.86平方米。
目前建筑物布局为20层主楼、4层裙房、1层地下。国有土地使用权终止日期为2047年11月29日。
项目联系人:曲峥
联系电话:022-58922154
天津产权交易中心
扫描二维码 关注我们

