钢筋是建筑工程三大材料之一,钢筋的计算相对复杂且范围广泛,需要我们把图纸和钢筋平法结合理解。如在日常对量过程中,由于双方软件操作处理方式的不同,可能会导致钢筋量有几十吨的偏差。
本篇文章给大家列举了一些在日常建模算量过程中容易忽略的细节,以及在广联达BIM土建计量平台 GTJ2025软件中相应的处理办法,希望能对大家有所帮助。
温度筋的设置
为了防止混凝土板因热胀冷缩产生裂缝,在没有负筋的位置需要设置温度筋(一般在图纸说明里会提到)。22G101-1平法图集关于温度筋的布置方式及与负筋的搭接长度说明如下所示:


注:有的项目受力筋可以起到温度筋的作用,或者板上布满了面筋,通常情况下不需要再单独设置温度筋了。软件实操如下图所示:
在广联达中定义板受力筋,类别选择温度筋。

根据设计说明在广联达计算设置中修改温度筋的搭接长度。

筏板附加筋锚固长度
筏板附加筋通常情况下按照设计标注的范围布置,如果没有特殊说明不计算锚固长度,类似于植筋。由于软件默认为2*35d,需要将锚固长度修改为0。广联达中修改办法如下图所示:

例:下图中板底附加筋的长度为1550mm(不计算锚固长度)。

柱子的插筋构造
一般情况下柱子的插筋构造采用设置插筋(软件默认)的计算方式,但是有一些小型构件,比如短柱采用的是纵筋锚固,这时候就需要手动修改一下。通过下面的图片可以清晰分辨出两种方式的区别:

广联达中修改办法如下图所示:

拓展:纵向钢筋连接形式有:绑扎搭接、机械连接、焊接连接,不同连接形式下,柱子的插筋构造对工程量的影响如下:
(1)机械连接或者焊接连接,设置插筋、纵筋锚固两种设置方式钢筋量是一样的,只是设置插筋多了钢筋接头;
(2)绑扎搭接,设置插筋工程量>纵筋锚固工程量,因为设置插筋增加了搭接的长度。
纵向钢筋连接形式如下22G101-1平法图集所示:

柱纵筋伸入基础锚固形式:有全部弯折和角筋弯折两种形式,软件默认全部弯折。图集中提到,当柱为轴心受压或小偏心受压,独立基础、条形基础高度不小于1200mm时,或当柱为大偏心受压,独立基础、条形基础高度不小于1400mm时,可仅将柱四角插筋伸至底板钢筋网上(伸至底板钢筋网上的柱插筋之间间距不应大于1000mm),根据项目实际情况进行修改。广联达中修改办法如下图所示:

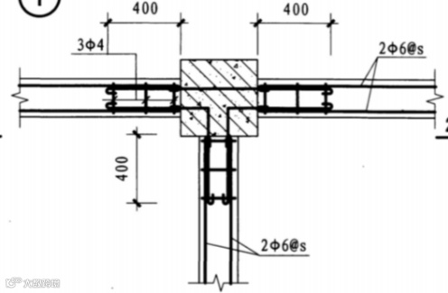
梁垫铁的计算设置
图集中明确当梁的主筋为双排或者多排时,各排主筋间的净距不能小于25mm,且不小于主筋的直径。现场可用短钢筋作垫在两排主筋之间,以控制其间距。布置的短钢筋就是梁垫铁,起到支撑作用。图集如下:

因为梁垫铁属于措施钢筋,需要有施工方案作为支撑,如果合同明确不计取,需要手动将软件默认的按照规范计算修改为不计算。广联达中修改办法如下图所示:

砌体通长筋和砌体加筋的设置
砌体拉结筋——
砌体通长筋:整个砌体墙横向通长设置
砌体加筋:砌体与砼构件等连接时设置,不通长

国标12G614-1,第5.4.1条中明确:填充墙应沿框架柱全高每隔500~600mm设2φ6拉结筋(墙厚大于240mm时宜设3φ6拉结筋),拉结筋伸入墙内的长度,6、7度时宜沿墙全长贯通,8度时应全长贯通。图纸中一般会出现在图纸总说明或者单个图纸说明中,图集如下所示:

注:通常情况下,如果整个砌体墙都设置了砌体通长筋和横向短筋,就不需要再设置砌体加筋了,因为在砌体墙中的通长筋的长度已经包含了锚固长度。

砌体通长筋、横向短筋在广联达软件中的处理方法:

砌体加筋在广联达软件中的处理方法:点击自动生成砌体加筋,在弹出的窗口中按照图纸要求选择加筋形式、设置钢筋信息。

圈梁转角加筋
工程为了提高项目整体的刚度以及抗震功能,设置圈梁必不可少。施工的时候,圈梁的转角接口以及丁字墙的接口处应放置转角加强筋,通常情况下地圈梁转角处放置2Φ10~12加强筋,丁字接口处放置4Φ10~12加强筋。04G329-3图集如下所示:

注:如果圈梁转角处有构造柱,由于构造柱的钢筋为圈梁钢筋提供了可靠的锚固部位,通常情况下就不需要再设置加强筋了。
圈梁加强筋在广联达软件中处理办法如下图所示:

洞口加强筋
洞口加强筋是板、墙上预留的洞口根据设计和规范要求对洞口附加的钢筋(通常在结构设计说明中提到),用来提高工程项目整体的稳定性。现浇板洞口加强筋一般放在底筋上面,面筋下面。广联达中板洞加强筋的处理办法:

广联达中墙洞加强筋的处理办法:
1、根据图纸具体尺寸,修改墙洞的锚固长度。

2、在墙洞属性列表中输入洞口每侧加强筋的具体信息。

总结
钢筋算量是工程造价的重中之重,钢筋算量是否准确关系着预算成果的精准程度。所以我们在平时工作中需要不断学习和积累,在深入理解钢筋的相关规范、图集的同时,还要吸收结构、力学的相关知识,多了解钢筋的施工工艺,做到精益求精。
*本文系马玉晴原创,独家来稿
转载务必申请授权,并注明作者与出处,违者必究
本文仅代表作者观点,仅供参考,如有异议,烦请留言
编辑:刘歌 李梅
审核:王迪 相杰




