大数跨境
0
0

中企出海,这波机遇你也可以抓住!

中企出海,这波机遇你也可以抓住! 广联达安徽
2025-04-29
0
导读:中国建企出海速度和规模增长迅速,智能CAD快速看图工具助力大家抓住机遇,实现职业的进一步发展。


在新的“大航海时代”,中国企业正以前所未有的速度和规模走向世界。出海已成为中国企业实现国际化战略、提升全球竞争力的重要途径。
根据美国《工程新闻纪录》(ENR)2022年全球250强国际承包商榜单,中国内地企业上榜79家,国际营业额占比达27.1%,连续多年位居全球第一
2022年中国对外承包工程新签合同额2530亿美元,完成营业额1550亿美元(数据来源:中国对外承包工程商会)。

出海建企有哪些?

头部央企主导:
中国交建、中国建筑、中国铁建等央企占据海外业务主要份额。例如,中国交建2022年海外营收超150亿美元,覆盖150多个国家。
民企崛起:
华为基建、江苏国际等民企在东南亚、中东市场表现活跃,参与智慧城市、数据中心等新兴领域。

出海的成果和挑战

带动经济发展

中企出海的同时,多数项目雇佣本地员工占比超70%,为当地创造大量就业,并带动建材、物流等产业发展。

面临的挑战

中国建筑行业企业出海过程中,施工和造价管理是核心环节,出海企业在设计审查、工程量计算、协同工作等方面面临诸多挑战,比如跨国协作、标准差异、时间成本压力等,都很明显。
这就需要更加智能的数字化工具!

智能的数字化工具助力中企出海


CAD快速看图推出的国际版同样支持多端使用,电脑(Windows、Mac)、手机(安卓、iOS)、平板全覆盖
例如在现场,手机版可离线看图,并添加各类标注,现场问题更是支持照片标注在指定位置,方便第一时间同步,减少消息滞后性

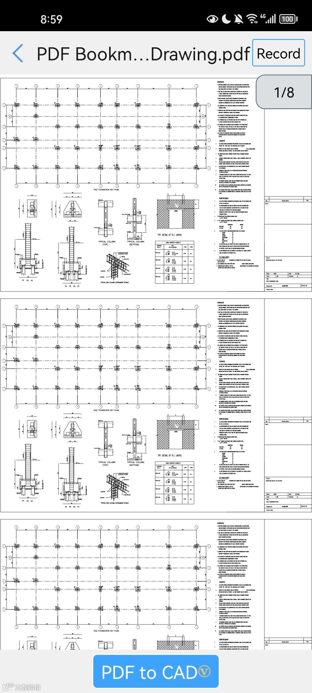
海外大量PDF图纸,也可以用CAD快速看图的PDF转CAD功能,轻松转换。

面对多国设计标准图层管理、文字查找、多种标注功能,帮助施工团队快速抓取关键信息(如结构尺寸、材料规格),减少因设计理解偏差导致的返工

或许对海外地质条件的不熟悉,也会增加变更发生的概率CAD快速看图高效的图纸对比功能,快速对比变更前后图纸差异,帮助企业及时调整预算

同时考虑到不同国家和地区的语言需求,以及国人和当地人的合作需求,目前已陆续支持多种语言,包括:
英语、西班牙语、法语、印尼语、日语、韩语、葡萄牙语、俄语、越南语、中文繁体、中文简体
既方便当地人看图用图,测量、标注,又方便国人随时切换外语和中文,大幅提升工作效率、减少沟通障碍。

如何切换CAD快速看图的语言


电脑端CAD快速看图国际版的工具栏右侧-语言-选择需要的语言。
手机端:自动识别手机系统语言设置,跟随切换。

另外,针对海外PDF图纸较多的情况,我们也有同样强大好用的PDF快速看图,辅助大家快速查阅、标注、测量PDF图纸。

好啦,心动的出海人,来这里获取强大的CAD快速看图国际版
CADReader(Windows/Mac/安卓/iOS下载链接:
https://dwg.fastcadreader.com/?from=gzh&article=001
或是同样强大的PDF快速看图国际版
PDF Blueprint(电脑版,请在电脑上打开,下载链接:
https://pdf.fastcadreader.com/?from=gzh&article=001

CAD快速看图:愿天下没有看不了的图纸

全套学习教程:https://cadclub.glodon.com/video/list?tid=1&cid=0&from=ask_ad1】

软件下载地址:https://cad.everdrawing.com/?from=gzh


PDF快速看图:为工程人打造,轻巧快速,可以测量、标注图纸的PDF阅读器

一文全通丨PDF快速看图测量合集

软件下载地址:https://pdf.everdrawing.co‍m/?from=gzh


建工计算器:适用于工程造价,施工现场,钣金计算等多个工程场景的全能型实用计算工具。

【热门案例】方格网法算土方量,原理、逻辑和公式!

下载地址:https://calc.everdrawing.com‍/?from‍=gzh


来源:云图产品部
文案:施晶晶
编辑:师青青 相杰
审核:杨娇 珈琪

【声明】内容源于网络
0
0
广联达安徽
广联达科技股份有限公司安徽分公司,立足建筑产业,致力于为您提供行业动态、政策法规、软件答疑、精品课程、本地企业招聘等,愿与您携手共进!
内容 1236
粉丝 0
广联达安徽 广联达科技股份有限公司安徽分公司,立足建筑产业,致力于为您提供行业动态、政策法规、软件答疑、精品课程、本地企业招聘等,愿与您携手共进!
总阅读595
粉丝0
内容1.2k