最近在一次结算对量的时候,碰到一些二次结构因图纸不详引起争议的问题颇多。由于设计的原因,有很多施工图纸对二次结构的细部节点没有详图,这就要求一个精通算量的预算人员必须知晓二次结构的内容和规范要求,去求证现场是否施工了的记录资料,进行汇总计算及内部核算,编制双方合同结算中的二次结构详实内容。使得二次结构的费用不再漏项。尤其是“反坎”的费用。
二次结构主要包括:
1、构造柱(T,L内外墙交接处,墙体长度超过5米处,门窗洞口宽度超过2.4米时洞口边缘位置等必须设置构造柱,外阳台的栏板中间等设置构造柱);
2、过梁(门窗洞口及预留洞口大于300mm必须设置过梁);
3、腰梁(墙体高度大于4米时必须设置腰梁);
4、门柱(大于2米高的门两侧必须设置门柱);
5、压顶(窗台处及女儿墙顶部必须设置压顶)
6、地面“反坎”。我们重点说说“反坎”的设置部位,以增强造价人员加深印象,弥补管理上漏算的工程量和组价漏算的费用。
“反坎”就是建筑行业行话的圈梁或者栏板止水带。民建正常部位施工的“反坎”有厨房卫生间底部止水带“反坎”,楼梯间外墙止水带“反坎”,阳台止水带“反坎”,空调洞口止水带“反坎”等。一般民建图纸上会有墙体节点大样说明,止水带的砼标号和配筋都有详细的设计图纸说明,预算员一般也不容易算丢工程量。但是还有一些建筑中,图纸并没有详细的二次结构设计说明,需要预算员自己收集影像资料和记录的“反坎”内容做为结算内容。案例是工业建筑中这些部位需要设置“反坎”止水带!
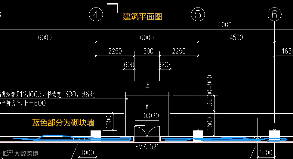
1、一层±0.00处设置“反坎”:图例是一个工业变电所,如果基础是承台基础。承台之间是地梁连接。地梁上面是砖基础(顶标高±0.00处),在砖基础与上部砌体连接处需要设置钢筋砼“反坎”止水带500高,如下图蓝色砌体部分:

平面图中外墙的高度就是从±0.00开始的,而且外墙也没有节点大样,设计图纸未注明这些部位,如果走变更通知的渠道确实费劲。经监理和业主同意,内外墙的底部要求做同墙宽高500的钢筋砼圈梁起到防水防潮的作用的“反坎”。

为了不耽误工期,现场保留影像记录资料,施工日志和施工交底等。我们预算人员算量的时候,像这种特殊的情况要及时沟通现场技术员,并且做好详实的记录,有必要的时候要求技术员办理联系函存档,没有经验的预算员在做材料计划的同时,尤其是提供钢筋料单的时候就能知晓这些反坎是漏掉的单项,钢筋砼“反坎”的费用肯定比同工程量砌体的费用高,总结下来一个变电所一层的砌体位置也不少,砌体下的“反坎”根据工程量直接费约4万元。

“老板挣钱不挣钱全靠预算员”这句话用在这里就是最好的见证了。
2、有些建筑楼层错层的外墙部位设置“反坎”:图例一个工业综合楼,三层地面图局部是屋面层。与屋面相接的砌体外墙下需要做钢筋砼“反坎”。如下平面图:

图纸设计还是相对粗糙,并未有“反坎”节点大样。但是现场施工必须做钢筋砼“反坎”(就是现浇楼板上外墙下做一圈钢筋砼圈梁止水带)。如下软件模型图1部位2部位相应外墙处:

挣得监理和业主确认此处做“反坎”。为了赶工期甲方同意按照乙方要求保存影像资料等记录做为结算依据。一个有经验的预算员这时应该引导技术员保存现场浇筑砼“反坎”的影像资料和联系涵。并要主动去对接清楚,做好笔录,进行实际算量组价编制结算文件的附件文本。如果能再内部核料内部分析成本,就更能轻而易轻的对应图纸和现场施工工序做出判断少算漏算的内容了。
3 、室内设备基础的位置设置“反坎”。如图纸:

图纸未说明设备基础四周需要做砼“反坎”。现场按照监理及业主要求,必须施工“反坎”。在工业建筑中这些地方最容易漏算“反坎”,看似简单设备图,但是设计图没有体现设备基础的四周“反坎”图,唯一就是日常给班组校核工程量 的时候才知道还有这些“反坎”内容,如果不校核,那么就很容易漏掉这些地方的“反坎”,多探索拓展业务始终是预算员要学习的内容。
仔细想想一个大项目二次结构也会产生不少的工程量。为什么能漏掉一些工程量呢?尤其是那些“反坎”的位置。总结一下主要有两点:
1、与现场施工形象进度脱节,只顾熟悉图纸上的内容,对现场局部施工不清楚;
2、预算未参与内部班组核量结算,未参与内部材料成本核算,比如砼总量,钢筋总量,模板总量等等。
如果以上两点能扎扎实实参与工作,就能提高算量组价的空间概念了。当然也就不容易漏项了。让造价人参与合理化管理是必经的模式!



