大数跨境
0
0

全过程造价管理:精准控价+计量实操

全过程造价管理:精准控价+计量实操 广联达上海
2025-05-09
2
导读:更多精彩内容,2025年5月15日(周四)下午16时,请锁定直播间,不见不散~

在工程造价的日常工作中,你是否有以下困扰:

频繁的图纸变更,手动对比易出错

复杂的面积计算,影响整体进度

现场问题处理不及时,后续结算难

本次课程为你一一解答!

2025年5月15日16:00

粽子老师在直播间等你

免费学习:https://v.plvideo.cn/watch/5081512?promoteId=Zua3aQ‍

扫码入群,免费领取干货资料+开播现金红包

本次课程将从结算管理框架体系、标后重计量管控、结算过程管理、计量实操要点四个维度,结合CAD快速看图软件的实际应用,系统阐述提升结算效率的创新方法。

一、全过程结算管理的框架体系

1、结算策划核心方法:强调早启动、早策划,统一竣工结算逻辑,明确工程结算价的组成和顺序。

2、工程结算价组成和顺序:详细解析了工程结算价的各个组成部分及其计算的先后顺序。

工程结算价由直接费、间接费、利润和税金四大部分组成,计算顺序依次为:首先汇总直接费(人工、材料、机械等直接成本),其次计算间接费(管理费、规费等),然后确定利润(按合同约定比例计取),最后核算税金(增值税等法定税费)。

二、标后重计量阶段管控要点

1、重计量管理体系:技术交底、施工交底等是工程项目的关键活动。需要搭建项目专属图纸资源库,实现批量上传和快速搜索。

对于交底方(项目负责人或者技术管理人员等)

1.存储图纸:超大容量,批量上传;

2.无需单独发图纸,云盘添加成员后,即可看图,并且保证成员看到的是统一版本图纸;

3.交底工程中,搜索图纸名称,快速找到图纸。

对于成员(参与项目的算量人员、施工人员等)

1.避免传图过程中出现问题(版本高、看不全、图纸无法解压缩等)。

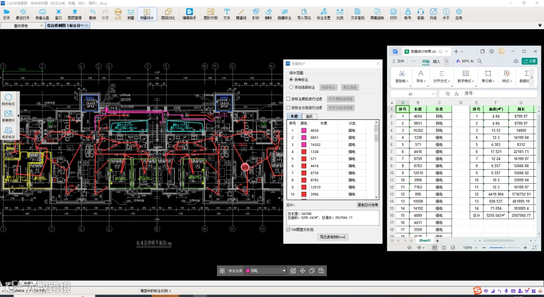
2、建筑面积快速计算实操技巧:提供了具体的计算规则和CAD快速看图软件的应用技巧。

①窗台与室内楼地面高差在0.45m以下且结构净高在2.10m及以上的凸(飘)窗,应按其围护结构外围水平面积计算1/2面积。

②CAD快速看图可以一键统计测量出的长度和面积,并且按照分类进行统计,统计结果还可导出到Excel,方便后续使用。


三、结算过程管理要点

1、变更应对技巧:遇到图纸变更,CAD快速看图可以一键对比新旧图纸,快速找到2张图纸的差异部分,图纸变更再多也不怕,效率提升50倍。

2、现场问题全岗协同:施工现场遇到的安装问题、水电隐蔽工程等可以随时使用手机版CAD快速看图拍照,图片自动插入到图纸对应位置,更可同步给经理、监理、业主。实现现场情况和图纸位置一一对应,方便影像资料管理及后续结算。


四、结算阶段计量实操要点

通过具体实例(如楼梯混凝土模板、屋面防水构造、门窗工程)演示了快速计算方法和实操要点。

1、楼梯混凝土模板的快速计算

现浇混凝土楼梯:整体楼梯(包括休息平台、平台梁、斜梁和楼层板的连接梁)分层按水平投影面积计算,不扣除宽度小于500mm的楼梯井,伸入墙内部分项目已包括不另计算。

整体楼梯与现浇楼层板无楼梯梁连接时,以楼层的最后一个踏步外边缘加300mm为界。

2、屋面防水构造工程量快速计算

屋面防水清单计算规则是按水平投影面积计算,定额计算规则按照各地定额规定计算,以下是计算的易错点和避坑策略。

3、门窗工程的快速计算

门窗工程量计算需要统计门窗个数,CAD快速看图的图形识别一键将门窗相同的构件个数数出来,结果还可以导出到Excel,方便后续使用。

五、课程福利

1、干货资料免费领

粉丝群免费领取:计价、土建、安装、装饰、市政、水利等课程,涵盖了从认识、会用、用好各阶段的课程内容;

还有安装造价识图案例清单变化点、一造必刷500题、广联达安装产品的操作手册和软件高频问题集。



2、互动有礼

观看直播间即可参与多轮抽奖和互动答疑,可获得CAD快速看图月度会员。


更多精彩内容,2025年5月15日(周四)下午16时请锁定直播间,不见不散~

免费学习

https://v.plvideo.cn/watch/5081512?promoteId=Zua3aQ‍


注:本文使用的软件CAD快速看图

获取方式:

复制官网链接到电脑浏览器地址栏打开,选择下载
https://cad.everdrawing.com/?from=gzh

CAD快速看图:愿天下没有看不了的图纸

全套学习教程:https://cadclub.glodon.com/video/list?tid=1&cid=0&from=ask_ad1

软件下载地址:https://cad.everdrawing.com/?from=gzh


PDF快速看图:为工程人打造,轻巧快速,可以测量、标注图纸的PDF阅读器

一文全通丨PDF快速看图测量合集

软件下载地址:https://pdf.everdrawing.co‍m/?from=gzh


建工计算器:适用于工程造价,施工现场,钣金计算等多个工程场景的全能型实用计算工具

【热门案例】方格网法算土方量,原理、逻辑和公式!

下载地址:https://calc.everdrawing.com‍/?from‍=gzh


来源:云图产品部
文案:师青青
编辑:嘉慧
审核:珈琪

【声明】内容源于网络
0
0
广联达上海
广联达数字科技(上海)有限公司,立足建筑产业,致力于为您提供行业动态、政策法规、软件答疑、精品课程、本地企业招聘等,愿与您携手共进!
内容 889
粉丝 0
广联达上海 广联达数字科技(上海)有限公司,立足建筑产业,致力于为您提供行业动态、政策法规、软件答疑、精品课程、本地企业招聘等,愿与您携手共进!
总阅读347
粉丝0
内容889