〈〈〈〈〈
你有没有发现,2016年~2023年装配式建筑稳定发展,行业标准持续更新,装配式技术逐渐成熟,装配式逐步走向规模化。行业大力推广绿色建筑,2025年目标装配式占新开工项目比30%,而钢结构又占装配式30%(9%)……
如果用一个词来形容钢混结构算量工作,你会想到什么呢?
难度大、不好算,又或是新业务挑战?
对于以前有钢混业务经验的,能够感受到其算量难度大、扣减难、手算不精准的问题;
对于未曾接触过钢混业务的,面临的挑战就有可能是图纸看不懂、业务不理解、算量没底气等等。
那钢混(型钢混凝土)结构算量主要是算什么呢?
大致包含:土建工程量+钢筋工程量+型钢工程量。
但是,钢混结构形式多样,组合形式复杂多变,要如何快速、精准得出其工程量?这是我们一直关注的问题…
赶快来听听使用软件的声音吧~
ANALYSIS
钢混业务分析
常见钢混结构
钢混结构算量
SKILLS
常用钢混结构
快速建模提量技能
(1)型钢混凝土项目,体量大、交互复杂,无从下手;
(2)砼、型钢、钢筋,多材质强交互,精准计算难;
(3)多人跨平台提量,重复工作量大、易漏项。
GTJ2025钢混模块智能建模
(1)型钢砼柱
手算:
①钢骨柱大样图和平面图组合呈现,步骤大多为单提砼或型钢工程量,再进行叠加或扣减;
②柱内钢筋造型复杂、型钢与钢筋交互排布、数量繁多;
③热轧型钢一般按标准规范进行计算,不同地区不同年份规则计算规则差异较大,反复查询五金手册过程繁琐。
智能建模:
钢骨柱/型钢砼柱:组合式创建->复杂钢筋/型钢截面自动识别->钢筋、钢骨可参考CAD底图快速修改属性->自动识别;
钢管砼柱:组合式创建->內灌混凝土尺寸自动反算->自动识别。
(2)钢柱、钢梁
手算:
大量主材信息表及平面图(体量大,规格多),重叠工程量扣减繁琐;手工统计几乎很难高效完成(易漏项)。
智能建模:
跨构件识别构件表、批量生成构件->批量识别钢柱/钢梁。
(3)节点细部-主要用于连接钢构主次构件的重点部位
手算:
①节点组成零件多,钢板形状复杂多变,主次构件重叠位置扣减繁琐;
②节点应用场景多、样式多、体量大。
智能建模:
①直接生成节点,内置540+节点,智能匹配;
节点参数灵活修改;
②同类型节点批量生成,支持二次修改;
③重叠位置、主材相交重复位置自动扣减;
④工程量自动归属。
(4)栓钉
手算:栓钉数量多,不同构件栓钉的规格排布不同,规则简单,统计繁琐,易漏量。
智能建模:批量布置栓钉。
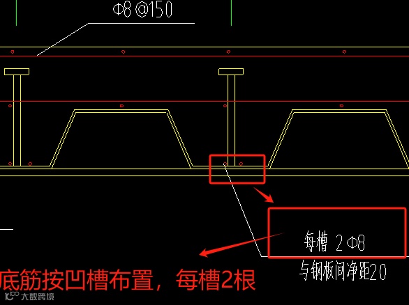
(5)组合压型钢板
手算:算量异常复杂,既算的慢,还算不准。
智能建模:新建参数化压型钢板-按压型钢板智能生成混凝土-按压型钢板凹槽智能布置受力筋。
(6)桁架楼承板
手算:
①钢筋工程量-支座筋标注位置需找钢梁为支座、长度按规范取值,计算效率低;升降板位置支座筋节点钢筋计算难度大;
②土建工程量-混凝土板底部和侧壁不需要计算模板,工程量拆分难;
③刷漆工程量-钢梁上方存在桁架楼承板时,防火刷漆面积需要扣减;实际相交位置较多不易统计、易漏项。
智能建模:
直线、矩形绘制桁架楼承板->现浇板组合自动扣减-支座筋自动按规范取值-型钢重叠面积自动扣减。
(7)零星构件
覆盖53+种构件类型,内置国标截面库(支持16种热轧截面、13种焊接截面、27种钢板形状)自动计算重量和面积,满足所有零星钢结构的精准提量。
更多钢混业务要点处理+软件实操相关内容请 查看11月21日【名师讲堂】一步到位 轻松掌握型钢混凝土工程建模实操直播回放,助您钢混结构高效建模、快速精准提量!
扫码直达
钢混建模实操课程
https://www.mohurd.gov.cn/gongkai/zhengce/zhengcefilelib/202203/20220311_765109.html
文案:熊莹
编辑:相杰


