基坑支护算量作为GTJ2025其中一个组件化模块,突破了支护类型多样、钢筋配筋复杂、节点形式多的三大难题,覆盖排桩、土钉墙、自然放坡、桩板挡墙、地下连续墙五大支护类型,解决手算复杂、钢筋计算难、Excel数据难沉淀的问题,实现复杂模型土建钢筋工程量精准计算,为基坑支护算量工作提质增效。
一
基坑支护案例工程
某地下室基坑支护工程
支护类型为:
排桩支护+两道混凝土支撑体系。
支护构件包含:
灌注桩、三轴水泥搅拌桩、冠梁、支撑梁及加腋、格构柱。
用户使用反馈:
1、很大程度上缩短工程量计算时间,而且时间减少约50%。
2、支护桩可以一键识别,可以查看钢筋三维,非常方便。
3、支撑梁钢筋加密箍筋的数量计算非常精准,另外对支撑梁水平加腋的加筋及混凝土工程量,做到既精确,又能快速提量。
4、格构柱的可视化,钢缀板、角钢、止水片的计算量多,软件直接输入参数,准智能布置,并且内置了型钢标,自动出量。
某安置房基坑围护工程
支护类型:
采用土钉墙支护,局部淤泥范围采用钢板桩支护。
支护构件包含:
放坡、土钉支撑、拉森钢板桩。
用户使用反馈:
1、算量时间:原来手算两天,用软件半天就算完了,效率比手算有大幅提升,而且算量更精准。
2、算量过程:标高上有碰撞的时候比较容易发现错误,方便修改。
3、结果呈现:三维模型很方便,汇报的时候比较直观。
某地下室基坑支护工程
支护类型:
地下连续墙支护类型。
支护构件包含:
地下连续墙、导墙、支撑梁(冠梁)、钢支撑、钢节点。
用户使用反馈:
1、算量效率相比手算提高很多,而且时间减少约60%。
2、地连墙-可直接在参数图中复杂钢筋信息,识别时可直接根据图纸截面类型反键构件,无需手动建立多个构件,且支持多种复杂钢筋三维,对量核量更方便。
3、导墙-支持一键生成,可以查看钢筋三维,非常方便。
4、钢支撑-按CAD线快速生成,无需手动绘制。
二
基坑支护核心功能
1
排桩支护类型
(1)支护桩
通过按图例识别,支护桩快速建模。
支护桩量筋合一,钢筋工程量计算准确,三维查看,核量对量方便。
(2)支撑梁
纵筋和箍筋都可灵活按照图纸布置,钢筋工程量按实计算。
支持按CAD线快速布置梁图元,中心线、边线均可。
一键生成支撑梁加腋,土建及钢筋工程量计算快速且精准。
(3)格构柱/钢桩
通过参数化图实现格构柱/钢桩建模,内置型材表,便捷出量。支持智能布置方式,快速批量布置格构柱/钢桩。
(4)钢支撑/钢节点
支持参数化建模,覆盖常见的8种钢支撑类型;线式钢支撑图元支持按CAD线识别,中线、边线均可。
钢节点:支持参数化建模,出量便捷;不同节点根据业务场景及构件关系,支持智能布置,实现快速建模。
2
桩板式挡土墙支护类型
桩间挂网:
支持智能布置-按支护桩布置快速完成建模,快速计算土建工程量。
3
土钉墙/自然放坡支护类型
(1)单/多级放坡
支持按CAD线一键生成放坡体,同时支持内部点识别,灵活选择对应建模方式,异形截面面积按实计算,挂网、喷浆等工程量计算准确。
异形截面面积按实计算,挂网、喷浆等工程量计算准确。
(2)土钉/锚杆/锚索/钢管支撑
按放坡实际位置布置,模型对量清晰,所见即所得。
4
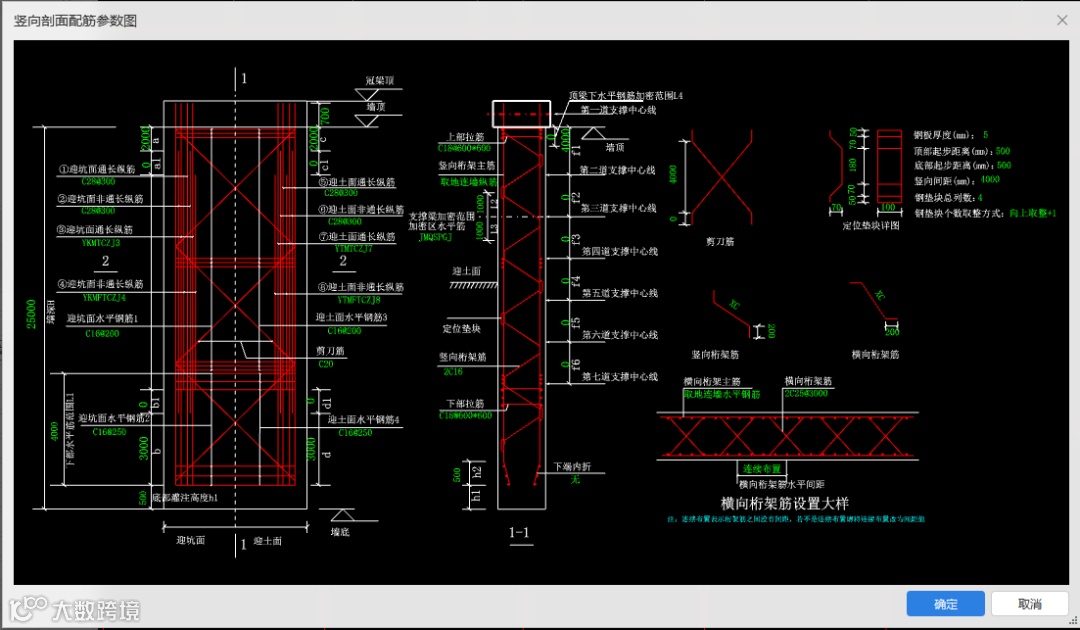
地下连续墙支护类型
(1)地下连续墙
提供4种截面类型,参数支持从CAD底图读取,通过“识别地连墙”快速完成建模。
精准计算混凝土、型钢重量及14种钢筋工程量,并且支持钢筋三维。
(2)导墙
支持按地连墙智能布置导墙,精准计算导墙土建及钢筋工程量,支持钢筋三维。


