在工程造价的日常工作中,你是否有以下困扰:
频繁的图纸变更,手动对比易出错
复杂的面积计算,影响整体进度
现场问题处理不及时,后续结算难
本次课程为你一一解答!
2025年5月15日16:00
粽子老师在直播间等你
免费学习:https://v.plvideo.cn/watch/5081512?promoteId=Zua3aQ
扫码入群,免费领取干货资料+开播现金红包
本次课程将从结算管理框架体系、标后重计量管控、结算过程管理、计量实操要点四个维度,结合CAD快速看图软件的实际应用,系统阐述提升结算效率的创新方法。
一、全过程结算管理的框架体系
2、工程结算价组成和顺序:详细解析了工程结算价的各个组成部分及其计算的先后顺序。
二、标后重计量阶段管控要点
对于交底方(项目负责人或者技术管理人员等)
1.存储图纸:超大容量,批量上传;
2.无需单独发图纸,云盘添加成员后,即可看图,并且保证成员看到的是统一版本图纸;
3.交底工程中,搜索图纸名称,快速找到图纸。
对于成员(参与项目的算量人员、施工人员等)
1.避免传图过程中出现问题(版本高、看不全、图纸无法解压缩等)。
2、建筑面积快速计算实操技巧:提供了具体的计算规则和CAD快速看图软件的应用技巧。
①窗台与室内楼地面高差在0.45m以下且结构净高在2.10m及以上的凸(飘)窗,应按其围护结构外围水平面积计算1/2面积。
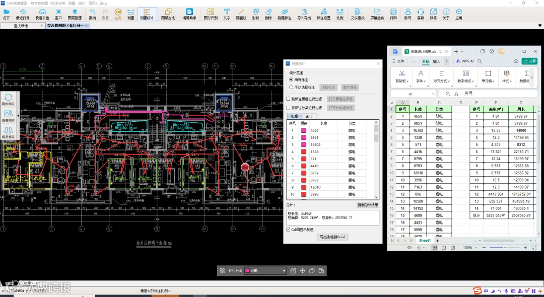
②CAD快速看图可以一键统计测量出的长度和面积,并且按照分类进行统计,统计结果还可导出到Excel,方便后续使用。
三、结算过程管理要点
2、现场问题全岗协同:施工现场遇到的安装问题、水电隐蔽工程等可以随时使用手机版CAD快速看图拍照,图片自动插入到图纸对应位置,更可同步给经理、监理、业主。实现现场情况和图纸位置一一对应,方便影像资料管理及后续结算。
四、结算阶段计量实操要点
1、楼梯混凝土模板的快速计算
现浇混凝土楼梯:整体楼梯(包括休息平台、平台梁、斜梁和楼层板的连接梁)分层按水平投影面积计算,不扣除宽度小于500mm的楼梯井,伸入墙内部分项目已包括不另计算。
整体楼梯与现浇楼层板无楼梯梁连接时,以楼层的最后一个踏步外边缘加300mm为界。
2、屋面防水构造工程量快速计算
屋面防水清单计算规则是按水平投影面积计算,定额计算规则按照各地定额规定计算,以下是计算的易错点和避坑策略。
3、门窗工程的快速计算
五、课程福利
粉丝群免费领取:计价、土建、安装、装饰、市政、水利等课程,涵盖了从认识、会用、用好各阶段的课程内容;
还有安装造价识图案例、清单变化点、一造必刷500题、广联达安装产品的操作手册和软件高频问题集。
2、互动有礼
观看直播间即可参与多轮抽奖和互动答疑,可获得CAD快速看图月度会员。
更多精彩内容,2025年5月15日(周四)下午16时,请锁定直播间,不见不散~
免费学习:
https://v.plvideo.cn/watch/5081512?promoteId=Zua3aQ
注:本文使用的软件为CAD快速看图

获取方式:
CAD快速看图:愿天下没有看不了的图纸
全套学习教程:https://cadclub.glodon.com/video/list?tid=1&cid=0&from=ask_ad1
软件下载地址:https://cad.everdrawing.com/?from=gzh
PDF快速看图:为工程人打造,轻巧快速,可以测量、标注图纸的PDF阅读器
软件下载地址:https://pdf.everdrawing.com/?from=gzh
建工计算器:适用于工程造价,施工现场,钣金计算等多个工程场景的全能型实用计算工具。
【热门案例】方格网法算土方量,原理、逻辑和公式!



