完全国产化自主知识产权的三维设计软件——
广联达数维房建设计产品
最佳实践案例分享!
来自中国五冶集团有限公司
五冶科技大厦项目

中国五冶集团有限公司是一家集工程总承包、钢结构及装配式、房地产开发、项目投资为一体的大型综合企业集团。其下属设计院共有100余人,其中设计院80人,BIM中心15人。
项目要求:
项目位于成都市锦江区,是一座综合性办公大厦。项目主要诉求是通过国产数维房建BIM设计产品实现以下的应用:
(1)全专业协同设计应用;
(2)进行设计算量一体化探索;
(3)进行管综深化设计辅助现场施工;
(4)设计审查一体化应用-IFC交付审查;
建筑类型:办公
结构形式:钢框
建筑面积:总建筑面积:15679.72㎡;其中地上8026.84㎡,地下7652.88㎡
建筑高度:24m

一、项目应用成果概述

本项目中,客户使用数维房建产品,完成建筑、结构、机电各专业的建模工作,及机电管线综合调整及出图工作;将模型导出ifc格式配合成都市施工图审查交付;并且在本项目实施过程中,逐步形成了企业数维房建平台的模板、构件、及BIM设计出图标准,上述标准资源通过数维协同平台自动提取和沉淀,形成企业的数字化资产,也能方便的在后续项目中进行使用。
二、各专业BIM设计制图
建筑、结构、机电专业建模出图: 本项目建筑出图20张,结构出图3张,机电出图32张。我们来看看设计师是怎么评价的:
数维建筑 :提供高效的识图建模能力,帮助设计师快速导入方案设计图纸,在数维中生成并深化成为施工图模型,并且一些高效建模及自动标注功能得到设计师的肯定,例如下面的一些高效的能力。
①识图建模: 识图建模+手动调整。节省一半以上的建模时间,前期处理cad图纸时间差不多,后期识别非常快,非常实用;
现阶段我们不仅原生开发识图建模能力,协助设计师高效建模,我们还联手业内生态伙伴红瓦,推出数维端的红瓦建模大师插件,为设计师提供更多选择,高效建模。

②门窗助手:数维房建提供完善设计资源平台,包括常见构件,设计选型,及构件制作;构件坞中提供7000+构件、2000+图例支持通过关键词、分类等多种方式来高效地检索构件。在设计选型上呢,提供厂家真实产品数据,更新及时、数据准确,支持按产品技术参数快速搜索,选型过程更加便捷、高效。构件设计上,提供专业化建模插件,用户可以自己制作所需的构件,门窗助手就是在构件制作的基础上开发的更符合建筑设计师习惯的专业门窗制作插件。设计师评价:使用数维门窗助手创建门窗,可自由随意组合,能非常高效快捷的生成想要的门窗样式,非常实用。

③门窗表、门窗详图:在出图阶段,设计师需要统计门窗表并绘制门窗详图,数维建筑,基于设计师完成的三维模型,可一键提取门窗表,生成门窗大样,图模一致,简单高效,得到建筑设计师好评。
数维结构:本项目主要应用了数维建筑快速识别计算模型生成设计模型的能力,并应用数维协同参照的能力,通过协同平台云端进行跨专业模型的提资参照。设计师评价到:数维模型通过上传云端数据进行互相协同调用,参照其他专业很方便,协同处理上几乎可以同布进行,实时更新。
数维机电:数维机电呢,在本项目,设计师主要运用了其各种自动布置,自动连接,及管综协调能力,来完成机电专业的建模及成果应用。
机电末端及设备批量布置,批量连接

喷淋管径计算自动标注

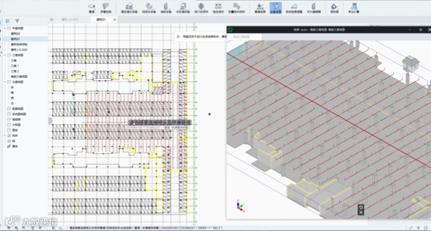
三、机电管线综合的应用
在深化阶段,数维管综模块提供排列对齐、升降偏移、智能连接、管综方案比选等一系列常用管综调整工具,大幅度提高管综效率。同事创新的管综方式,支持跨专业编辑,保证管综成果与设计成果的一致性。
项目机电管综流程

数维机电提供碰撞检查、警告分析工具,帮助设计师了解设计成果情况,提供排列对齐、管综方案比选、翻弯避让等功能来高效完成管综调整。

综合剖面图出图:支持多专业管道一并引出标注,可灵活设置标注内容和引出方向,满足复杂模型、多层管道剖面场景下快速标注出图的需求。

四、设计算量一体化
数维建筑的模型通过GFC文件导入GTJ产品进行工程量统计,提供切换算量类别映射的能力,提高算量准确率。

五、BIM施工图审查
最后将数维建立的模型导出IFC格式模型配合交付成都市BIM审图平台。

六、设计资源积累沉淀
基于项目正向设计实施,广联达客户服务团队与客户一起建立五冶数维正向设计标准。

在整个项目实施过程中,广联达服务团队,从项目策划,到实施标准制定,到业务开展实施,成果交付跟踪,全流程为五冶客户提供伴随服务,保障项目成功。

在2024年,广联达客户服务团队将持续为客户提供优质项目伴随服务,保障项目成功。


广联达数维房建设计一体化解决方案基于自主知识产权的图形引擎,以“端+云”为产品架构推出的数字化集成设计环境,通过基于统一数据标准的构件级云端协同机制为建筑设计全专业、全过程、全参与方提供数字化设计整体解决方案,赋能设计业务降本、增效、提升价值。通过构建数字设计平台,促进设计市场新生态,推动行业数字化转型升级。

感兴趣的小伙伴可以
点击文末“阅读原文”
免费试用数维房建设计产品
我们下期再见!
编辑:相杰
审核:李梅

