桩基对工程结构的作用至关重要,其设计水平对施工、造价的影响巨大,而这种影响往往是双刃剑。本文以喷灌挤压组合桩为例,从设计常见问题、图纸会审事项、造价细节注意三个层面,探讨设计对造价的影响。
1.1桩端位置确认
1.1.1解读设计说明

桩端持力层位置:在第10层粉质黏土,桩端必须达到此处。
进持力层深度:≥2d,且有效桩长≥26m。前述两个条件要同时满足。
确定进入持力层方式:现场取样。如何取样,看下面说明

可采用地质雷达等方法进行检测。检测后迅速扩大桩头、清孔验收。
1.1.2通过以上解读,有如下几个问题:
1)实际桩长和有效桩长不是一个概念,很可能不等值。
2)每颗桩的实际长度可能是不一致的,因为第10层粉质黏土在地下的分部不一定在一个平面。


1.1.3现场施工实际情况
一是:此桩施工工艺要求,在钻杆钻孔下去后,拔出的同时浇筑混凝土。此情况下,能否使用地质雷达进行测量,精确度如何?时间长短?如果不及时浇筑混凝土,就会发生塌孔的情况。
二是:抗拔桩的钢筋笼是伸入桩底的,而钢筋笼制作长度都是统一的,无法预测实际桩长而“量体裁衣”。

三是:钻机钻孔时,都会在顶部标定长度位置,这就意味着钻孔的深度是定值,即桩身长度也并没有“量体裁衣”。
四是:现场施工此类型的桩,桩基周边都是泥浆、堆土等,人靠近作业区是比较麻烦的。
上述情况都会给施工、结算带来麻烦。

1.1.4如何解决上述问题
应该从勘察与设计的衔接上,做足功夫:
一是:进行详细勘察,发现不良地质情况,让设计做好处理预案。
二是:利用勘察的优质成果,设计出现场能方便操作出来的桩长。
三是:有甲方的大力支持,完成上述工作,造价会有所增加。
这样就把设计与施工的衔接,施工与审计衔接的矛盾,化解在源头。
1.2单桩水泥用量
看设计说明中:单桩水泥用量不小于2.4T。

单桩水泥用量,是否包含桩身混凝土的水泥?
因为桩基施工过程中,需要水泥浆进行高压旋喷,固化桩周土体。
可以事先自行计算下,桩身混凝土的水泥含量,先区分个大概,然后再有针对性的有策略的提出问题。这个点的把握对于施工单位来讲非常玄妙。
1.3桩身侧板描述不精准
下图是桩身剖面。突出的三块就是桩身侧板,起到增加摩擦力及桩身稳定的作用。
示意图有,但设计说明中对其物理指标的描述不够全面。


设计说明中的描述存在以下问题:
1)5*15*3个,计量单位及组合混乱。对于不熟悉桩基设计的人来讲,看这个数字需要费力思考。其实就是侧板50mm厚,伸出150mm宽,桩周设置3个,呈120°角均布。
2)沿桩身的布设范围不明确。是否从桩顶至桩底扩径处都有?
从图桩身全貌就可很直观的发现,桩身侧板如果不明确范围,对于现场操作以及竣工结算,都无据可依。
1.4桩头防水做法未体现
设计桩顶标高一般伸入承台或筏板50-100mm,有的设计院不出具桩头防水做法详图。而此处恰恰是防水的薄弱环节,施工单位都很重视此处的细部处理。

举例做法
桩顶:2mm聚合物水泥防水砂浆。桩侧角:非固化沥青防涂料。
桩周:2mm橡胶沥青防水涂料300mm宽,延伸至桩侧。桩头钢筋:遇水膨胀止水条。正常防水:做附加层

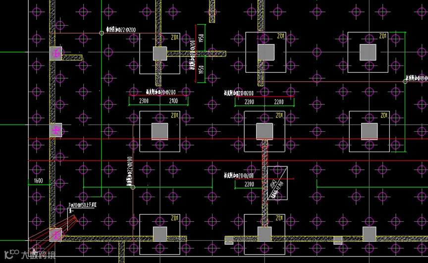
1.5桩数量不一致
平面标注数量与说明中所示数量不一致。这种情况一般以平面标注为准。

下图为桩平面布置图。现场便按此间距和布置进行放线、施工。

比如桩的平面图数量经查点为2660颗,而设计说明是2656颗。
1)第一判断则是要以平面图的2660颗为准。
2)与审计对量时,可能会产生疑问,要有书面证据,否则就会扯皮。
3)桩基总数还牵扯试验桩的数量问题,它是以桩总数为基数计算得来的。
2.1桩身混凝土材质
看下面设计说明:

只说明了混凝土强度等级为C35普通混凝土。
而常规来讲,长螺旋灌注桩采用的一般都是超流态混凝土。该类型混凝土和易性好,水泥用量大于310kg/m³,石子5-10mm,掺入外加剂,使得石子悬浮于混凝土中,坍落度一般在220mm左右,从而减少离析,减少钢筋笼下沉时的阻力,也不容易堵泵。因为一旦堵管,比普通泵送混凝土的维修时间成本更高,严重影响桩基工程的施工进度和质量。
混凝土是否掺入外加剂:设计说明无外加剂要求但地质勘察报告中有腐蚀性和规范要求的,可建议加入防腐阻锈剂。
此类型混凝土比常规细石混凝土增加15元/m³,需要各方同意方可。一般就采用图纸会审的形式固定下来。
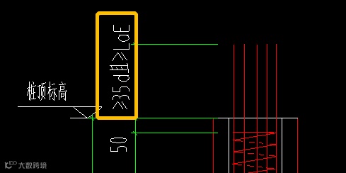
2.2超灌高度
看设计说明,一般都是要求在500mm。

此要求的实际可操作性如何,还需要结合桩头钢筋的露出长度。
继续看下面的桩头钢筋图示:要求≥35d且≥Lae,计算得出取大值为37*20=740mm
在设计说明要求的框架下。

通过上面两处设计点,可以得出超灌高度问题,如果只做500mm高,则:
一是:混凝土无法包裹住钢筋。在桩机移位清泥浆过程中会扰动钢筋。
二是:清理桩间土时,机械行路遇到露出钢筋,行驶困难,且会把钢筋压倒变形。
从施工操作性的角度需要把超灌高度固定在至少740mm数值上,可用图纸会审的形式。否则会产生审计的争议:桩身砼量、凿桩头量。
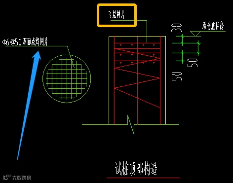
3.1试桩与工程桩构造差异
下图为试桩桩顶部构造,比常规工程桩多了3层网片,Ø6@50双面点焊网片。
试桩数量不少于3颗,用于反馈给设计参数使用。进行单桩竖向承载力的静载试验,其中一颗做破坏性试验。

最大的区别是,桩身钢筋的长度不同、配筋数量不同。
3.2抗压桩与抗拔桩的构造差异


3.3桩钢筋计算细节注意
1)内支撑焊箍的搭接长度。




2)桩头伸入承台内长度

3)螺旋箍筋搭接长度

4)试桩顶端网片

5)桩身纵筋的连接方式,一般采用直螺纹套筒。
6)桩身吊装用的“耳朵筋”。


7)桩身控位筋






