旧改算量,这些坑你踩过吗?
“拆改位置零散,加固业务类型复杂,计算工程量
难到崩溃?”
“老旧小区无CAD图纸,
传统方式耗时多?”
“安装水电管线路径复杂,
易错算漏算?”
“道路工程新建、拆除分别建立工程计算,
来回切换繁琐?”
新建更新一体化解决方案
破局而来!
广联达土建、装饰、安装、市政产品
重磅上线!即日起陆续推送中…
土建拆除
(1)算量场景:旧改项目中,需要对部分区域或局部位置进行拆除或凿除,按照修缮计算规则计算拆除工程量。
(2)算量难点:
● 难点1:拆改位置零散分散,涉及构件类型多,计量工程量大
● 难点2:拆除计算规则和新建计算规则差异,工程量计算容易出现争议
● 难点3:原始量和拆改量混在一起,提量难度大。
墙体、地面、吊顶、门窗拆除
墙体全部拆除
开洞局部拆除
(2)土建拆除解决方案
——局部拆除
● 快速标记拆除图元;
● 模型显示删除纹理;
● 工程量准确计算。
——局部凿除
● 布置灵活;
● 满足多种提量:面积/体积/数量。
灵活布置洞口
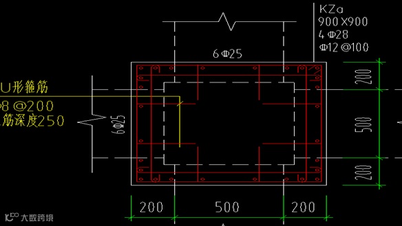
土建加固
(1)算量场景:
● 场景1:扩大截面加固,需要准确计算新增截面与原有构件之间的不同工艺的连接钢筋。
● 场景2:采用粘钢粘纤维加固,需要计算钢板的重量,纤维布的面积,以及螺杆、锚栓、压条等零星部件的工程量。
(2)算量难点:
● 难点1:扩大截面加固,钢筋种类多,节点复杂,手算难,提量难。
柱扩大截面
● 难点2:粘钢加固,涉及钢材种类多,手算效率低,提量难。
粘钢
● 难点3:原始量和拆改量混在一起,提量难度大。
(2)土建加固解决方案
——扩大截面加固
● 布置快:图元上精准布置加固图元。
● 看得清:加固模型高亮显示。
● 算得准:钢筋工程量精准计算。
——粘钢粘纤维加固
● 覆盖全:覆盖柱梁板常见粘钢加固业务、支持7类参数样式。
● 生成快:智能批量生成加固角钢、钢板或纤维布等零件。
——专有报表
● 灵活显示:改造前/改造后工程模型直观呈现。
● 提量简单:根据规格、材质等维度自动汇总分类。
● 专有报表:提供拆除、加固专有报表。
空调水管AI提量
——干管一框识别
(1)应用价值
● 识别管道: 一键框选,AI智能识别管道及系统、精准解析管径及标高;按系统-回路-管径展示识别结果;自动根据系统-材质-管径列项。
● AI智能技术:引入AI学习机制,即使遇到设计不标准图纸教一层即可省心一整个工程。
(2)解决方案
step1 选择识别范围
step2 右键后进入预览检查
step3 检查或调改预览管道属性
step4 生成管道图元、自动列项
——支管批量设置
(1)应用价值
● 设置支管管径:根据风机编号批量设置支管管径及标高,平面图有无标注均可一次性解决。
(2)解决方案
step1 选择识别范围
step2 右键后进入预览检查
step3 检查或调改预览管道属性
step4 生成管道图元、自动列项
step5 生成管道图元,自动列项
——冷媒管一并处理
(1)应用价值
● 识别管道:一键框选,AI智能识别管道及系统,冷媒管和空调水管同时识别,一个功能,一次操作,全部搞定。
(2)解决方案
step1 选择识别范围
step2 右键后进入预览检查
step3 检查或调改预览管道属性
step4 生成管道图元、自动列项
——校核清晰、教程齐全
● 预览校核:
系统校核窗体中,系统、回路、管径节点均支持单击反查,可定位到绘图区所在位置,清晰直观。
● 新手指引
新手指引:在空调水管构件下,软件右下角点击【空调水系统计算】章节即可看教学视频
教学视频:【识别管道】功能右键查看教学视频
帮助指引:【识别管道】功能内系统校核窗体上方点击“问号”,即可调出操作说明
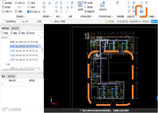
标段区域
——灵活绘制
(1)应用价值
新建标段/区域:区域绘制方式灵活多样能满足各类形状的区域。标段区域关系层级清晰呈现,对于施工方,施工过程中便于管理提量进度。
(2)解决方案
step1 新建标段/区域
step2 多方式绘制区域楼层、颜色设置
step3 区域检查显示
step4 显示/隐藏选中图元
——多维度、多方式查量筛量
(1)应用价值
● 查量:实时查看当前区域内全专业的工程量,并能自动定位所在位置。
● 筛量:支持按区域快速筛选工程量,工程量筛选支持场景更多样化,专业构件、查找图元、批量选择管、明细工程量-框选查量。
(2)解决方案
step1 双击区域构件查量
step2 专业构件筛选
step3 查找图元
step4 批量选择管
——灵活调整归属
(1)应用价值
● 区域归属设置:分专业灵活设置跨多个施工段的工程量归属方式。
● 图元所属区域:可自由调整区域归属,能灵活应对工程量划分归属变化。
(2)解决方案
step1 区域归属设置
step2 属性列表-图元所属区域
无CAD图纸【估算统计出量】
装饰城市更新的难点与挑战:
老旧小区无CAD图纸,传统方式耗时多。
解决方案:云尺算量
云尺算量是针对老旧小区外墙改造项目推出的一个利用手机照片进行工程量计算的功能模块,该模块采用了AI对象分割、图像处理、深度学习等前沿技术,解决老旧改需要现场实测实量的场景,减少繁琐的人工测量工作,提升项目的算量效率。助力用户高效完成老旧小区从无图纸到有图纸的算量全过程。
——AI一键估算
● 图像矫正:快速矫正拍摄角度问题。
● AI一键识别:一键识别外墙窗户、空调外机、墙面等工程量。
● 文件管理全过程:所有工程量相关图片、文档。
——尺寸测量
● 图像矫正:按比例矫正现场照片
● 快速测量:数量、长度、面积均可实现快速测量
外装改造:有CAD图纸【精确出量】
——外墙保温涂料
● 外墙保温:一键全楼层智能识别
● 按中心线面积/内外边线计算灵活调整
● 外墙涂料:无需建立结构模型
——外墙门窗侧壁
● 外墙门窗一键全楼层智能识别
● 门窗侧壁批量自动生成
● 侧壁独立出量/并入墙面出量
室内精装修改造
——精装墙面
● 墙立面对位:按立面图绘制复杂墙面,一键对位立面模型。
● 复杂造型:精准绘制复杂墙面造型。
——精装天棚
● 天棚造型:天棚造型精确绘制出量、跌级天棚按规则出量。
● 复杂造型:精准绘制复杂造型天棚。
——核量对量
● 精准核量:按地面生成房间,工程量自动并入房间。
●精准反查:随时反查工程量,对量更轻松。
小结
■装饰城更专版全新支持外装工程、内装改造工程;
■软件引入AI图像技术,无图纸一键算量;
■围绕旧改项目全生命周期算审提量精确、轻松;
■强力支撑新改扩建项目外墙及内装算量。
道路改造
(1)应用场景:
市政主次干路、支路、断头路、园区道路等道路及配套工程的维修、改扩建、新建。
● 难点1:道路改造需区分新建/拆除工程单独建立工程,汇总提量来回切换麻烦;
● 难点2:人工统计缝长、传力杆、拉杆等耗时易错,反查无依据;
● 难点3:多数工程没有拆除路面图纸,拆除路面工程量难以估算
(2)解决方案:
● 支持新建工程和拆除工程双区域建模,无需分开建立工程,新建/拆除工程同时汇总出量。
● 快速布置伸缩缝/切缝,自动计算缝长度、面积、传力杆、拉杆、防裂贴工程量,减少手动统计误差,方便后续反查对量。
● 支持按沟槽、基坑、管道、路面快速布置新建/拆除路面,没有路面图纸,也可高效计算改造项目路面工程量。
某道路工程模型
管网改造
(1)应用场景
给水、排水(包括排雨、污水)等井、给水节点、管的改造、新建和维护。
● 难点1:施工过程中,沟槽、基坑放坡系数需根据拆除路面反算,手算效率低且精度低;
● 难点2:沟槽的挖、填顶标高需要分别取拆除、新建路面结构层底标高,手算需要人工判断,易漏算错算。
(2)解决方案:
● 自动根据拆除路面反算沟槽、基坑放坡系数,快速精准计算管网土方量;
● 新增沟槽挖、填方顶标高自动取拆除路面、新建路面底标高,沟槽标高取值更准确,减少人为调整误差;
● 快速识别图纸并建模,内置井图集,基于扣减规则精准计算井、管、土方工程量。
某管网工程模型
土方工程
(1)应用场景
场地平整与地下大型土方开挖。
● 难点:房建、工业等大型土方处理散点多、数据大,公式难。
(2)解决方案:
●多场景应用适配
沟槽、基坑、路基土方、场坪、两期、园林土方等均适用。
●多源数据快速建模
方格网(三角网)基于dat/txt坐标、散点标高、方格网等多种数据识别。
●内置规则,协同扣减
支持各地区放坡系数等多种计算设置,自动协同精准扣减。
绿化、铺装
(1)应用场景:
园区、市政的绿植等移栽及路面等铺装新建、改造。
● 难点:园区、市政道路绿化百种图例的千、万棵数,统计抄图难,CAD统计难。
(2)解决方案
● AI自动识别自动分类计算
AI绿植一键识别图例和苗木表内容,15s完成1600个绿植数量计算
● 多方式批量识别铺装
快速精准识别异形铺装面积,自动计算铺装细部量。
END





