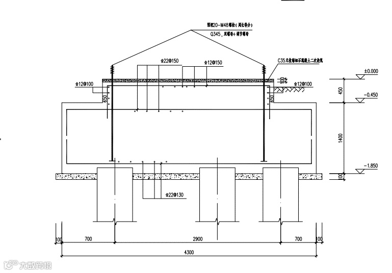
下图时下面半径2150,厚度为1400,上面是半径为1450,厚度为450的踏步式圆形桩承台,承台内除了配筋以外,还预埋20根直径48的螺栓


从剖面图可以看出,下面的园内底筋是Φ22@130双向,面筋是Φ22@150双向,上面的园内没有底筋,只有面筋Φ12@150双向。插入下面的园内指定长度650,在2013桩承台的参数图元里,唯独没有圆柱形的桩承台,但是可以定义自定义桩承台,我用自定义桩承台功能,我根据承台的配筋形式采用两个图元类别进行组合处理了此问题。下面都有圆形筏板,上面定义自定义桩承台,利用了桩承台和筏板的构件关系变相的进行了构件定义。计算结果完全符合设计图纸的要求。为扩大交流,本人将处理步骤在此进行分享,希望对用户遇到此类问题有所帮助,也希望有其他处理技巧的朋友参与分享和交流。更欢迎广大用户对分享过程有异议的提出宝贵建议;
1、新建筏板,厚度1400,不考虑封边,马镫按面筋规格选用,间距按1000*1000考虑,用园功能画图,输入半径2150,回车确定
2、定义筏板受力筋 C22@130底筋,和C22@150面筋,根据图示修改面筋和底筋的端头弯钩长度,筏板是1400,桩伸入承台100,顶面钢筋保护层考虑25,为了满足图示形式,底筋和面筋端头弯折长度都去600,使用单板和X Y方向布置钢筋
3、定义自定义桩承台,承台厚度取总厚度1400+450=1850,承台与筏板的钢筋扣减关系全部选不扣减,在承台单元里把没有参数的钢筋信息取消掉,保留顶面钢筋信息,同样使用园功能画图,输入半径1450,回车确定


汇总计算显示三维如下

检查下面筏板主筋没有被扣减,二者组合完美的处理了踏步式桩承台的配筋结构和钢筋算量


