核心价值
1、格式兼容
GstarBIM深度兼容Revit/SketchUp/CAD等50+格式,基于IFC标准实现无损传输,集成buildingSMART bSDD数据服务,便于设计项目的数据交互与协同。
2、全流程BIM整合设计融合建筑、MEP、室内及全屋定制家具设计需求,支持快速链接DWG、PDF与图片文档构建BIM模型,无需额外付费插件。
3、标准化BIM数据平台符合国际BIM应用标准,线上BIM资源库即调即用。支持bSDD数据服务,无缝IFC图档交换。
4、参数化智能建模相较主流的BIM软件,GstarBIM的参数化建模工具更便捷,包括双线变墙、两点插门窗,沿墙生成楼板及精细化屋顶创建等特色功能,显著提升设计效率。
5、双向联动出图体系3D模型与2D平面双向即时联动编辑,一键生成平、立、剖等平面图并支持多比例打印;自动计算空间面积,智能标注平面尺寸。
6、专业化室内设计套件提供铺贴、软装,照明等专项设计工具,支持多样化样式组合与细节调控,设计成果输出照片级图像渲染与实景效果。
7、高阶全屋定制家具设计专业级橱柜设计工具,标准柜体一次设计全局复用。特殊造型柜体自由构建灵活应对。
8、开放式构件生态无缝接入SketchUp线上线下模型库,支持自定义构件永久复用,材质直接拖放套用,所见即所得。
9、高效生产力工具灵活的图层管理系统,强大的视图控制体系,熟悉的快捷键方案,简洁的软件界面,友好的学习曲线,助力快速投入项目生产。
主要功能
1、建筑设计工具集
BIM参数化建模:基于参数化驱动技术,提供涵盖核心构件的智能建模工具,支持导入光栅图像、2D DWG平面图自动生成BIM模型。操作便捷,模型精准且包含完整BIM属性。
点云逆向建模:兼容 LAS/RCS 等主流点云格式,可将点云数据高效转换为可编辑的构件化BIM模型,轻松实现老旧建筑的逆向建模,显著提升逆向建模效率。
体量与场地设计:支持导入高程点、等高线等多源数据生成三维地形模型,提供高效的地形处理工具,实现场地模型精准构建;支持快速构建体量模型,便于方案推敲。
MEP管线设计:内置机电管线设计系统,支持暖通空调、电气布线与给排水工程设计;自动计算最优路由生成管道,自动添加所需管件,复杂布线瞬间完成。
BIM参数管理:支持对图元和构件添加BIM参数,集成buildingSMART bSDD数据服务,方便BIM参数的管理、传输和交互协同。
BIM项目协同:支持链接文件与中心模型协作模式,满足多专业协同与分区域模型拆分,保障项目团队全流程实时协同生产。
2、室内设计工具集
沉浸式室内全案设计:提供涵盖瓷砖智能铺贴、灯光、吊顶等全屋空间的设计工具,支持平面图至3D渲染全流程设计,通过材质、色彩、光影的实时模拟直观呈现方案效果;提供精准设计数据、物料清单与成本估算,便于项目管理与预算控制。
KBB全屋定制家具设计:集成高度灵活的橱柜参数化设计,在柜体上轻松创建和组合多种门板类型;高效的建模与修改能力,支持创建复杂的弧形柜体和匹配的弧形台面、踢脚板,满足高度个性化定制设计;智能出图引擎自动生成橱柜分解视图、板材切割清单和物料清单。
铺装设计:通过独特的铺装样式管理和高效的铺装功能简化复杂设计流程,满足多样化的辅装美学需求,精确的工程量统计功能深度集成,显著提升空间铺装设计的专业性和效率。
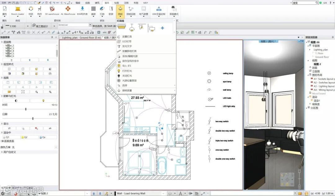
照明环境设计:提供灯光模拟系统,支持IES光源数据,实现从基础照明到创意光效的全流程高效设计,显著提升室内灯光方案的设计精度与执行效率。
构件库与材质库:提供可视化构件库管理面板,无缝兼容SKP、RFA、3DS等主流格式构件导入;材质库管理面板提供了从获取、创建、编辑到管理的整套解决方案。
3、文档/出图工具集
“模-图-数”联动出图:支持依据BIM模型高度自动化生成二维平面图,模型修改智能迭代平、立、剖和详图等视图,大幅提升出图效率。
灵活的图层管理系统:图层管理系统为出图提供了高效可靠的技术方案,依据出图需求灵活控制不同视口的图层可见性、线型、打印状态等,极大提升出图效率与准确性。
智能标注系统:一键自动批量生成墙体、门、窗、洞口等构件的尺寸链标注,尺寸标注与构件智能关联;支持标签手动或自动批量放置,标签与构件动态关联,属性变更标签自动更新。
二维出图工具:提供丰富的标准符号库并支持自定义,房间标记智能识别放置;标题栏支持高度定制化,关键信息链接项目参数;可生成墙面的正视图进行详细尺寸标注。
工程量统计:明细表数据直接自动从模型构件中提取,模型修改明细表自动实时更新,确保设计文档数据高度一致和准确可靠。
4、可视化渲染工具集
专业级渲染:内置渲染引擎自动修复噪点增强细节,物理级真实光影,影视质感直出,精准调控光源与模型复杂度,渐进渲染实时优化画质,输出照片级图像渲染与实景效果。
材质库与精细控制:提供丰富的预设渲染样式,支持对材质的亮度、反射、粗糙度、凹凸贴图、透明度等属性进行精细的微调,实现照片级真实感。
漫游动画:支持360°全景预览,生成漫游动画,并可根据构件“设计阶段”属性设定创建施工模拟动画。
D5渲染器互联:集成D5渲染器插件,模型一键自动同步至D5渲染器,光源、材质完美继承消除效果偏差,实时更新视图列表,设计到渲染的切换瞬间完成。

