鲁班大师(安装)全面升级V24.0.0
这次版本升级除了优化之前应用的功能和页面外,更增添了“新内容”,鲁班软件程开发团队呼应用户需求,不断迭代更新,只为给大家带来更简单便捷的使用体验!
一起来看看这次更新都有哪些变化吧!
新
增
新增点、线实体构件
1) 五大专业新增多义构件大类及其对应的点、线实体小类
2) 支持设置倍数,工程量根据图形绘制情况自动乘倍数
3) 支持设置汇总类别,可以将工程量归属于当前专业的各大小类下
4) 点实体支持一键转化设备和转化设备
5) 线实体支持线变线实体
可用于:
平面图上阀门数量可能相对系统图不够精确,且必须布置在管道上,目前支持在系统图上通过点构件替代阀门构件,布置/转化更方便;并且支持设置构件倍数,建模更灵活
优
化
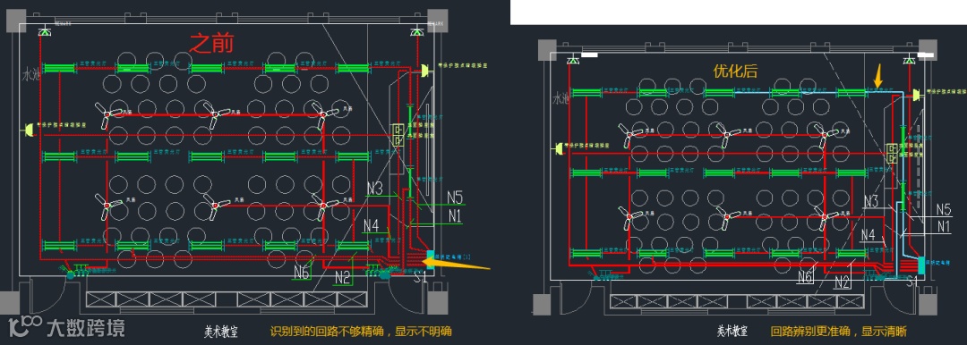
转化单回路全新改版,回路识别更准确,转化界面更明晰,支持管线类型更全面,修改更灵活方便
1) 简单三步即可完成转化
①选择回路CAD线
②选择根数(没有标注根数的直接右键跳过)
③在转化界面修改管线信息后即可转化
2) 回路识别更准确,选中状态展示更清楚
①回路识别算法优化,识别回路上管线和设备更准确
②支持多次左键选中CAD线进行回路分析
③所选回路高亮展示,与其他底图区分更明显
3) 全新转化界面,管线信息自动读取,并按照根数在表格展示
①支持自动读取系统编号中配置的管线
②按照开关和提取的根数排列成行,支持对不同根数管线分别设置管线
4) 支持系统编号中可配置的所有管线形式,修改更灵活便捷
①支持系统编号中可设置的所有管线形式,即新增支持电缆、线槽、组合管线等的转化
②点击管线即可进行修改,支持组合配置各种管线
5) 支持设置竖向管线的规格和根数
①支持设置灯具竖向管线的规格和根数,规格可以任意配置,根数可设置为多跟和单根
②支持设置其他构件竖向管线的根数,可设置为多跟和单根
更新为新的计算方式,对于图形的兼容性更强,有效防止计算卡住的发生
优化配线引线和跨配引线最短路径算法,工程量更加准确
1) 示例工程优化前的路径:
2) 示例工程优化后的路径:
优化CAD褪色功能,便于区分已绘制与未绘制的部分
褪色前
褪色后
优化转化电气系统中框选范围的显示,支持高亮显示出框到的内容
优化CAD线的显示,支持显示线型为GAS LINE的CAD线
优化前
优化后
鲁班软件双十一活动
正在火热进行中
学造价知识!抢现金红包!
拿惊喜大奖!

BIM合作咨询:
400-921-8880 15026656977
欢迎加入[建造阶段BIM应用] 行业交流QQ群 276740618
为方便本群管理,加群请备注姓名单位
# 了解更多

