••••
产业链支撑
••••



••••

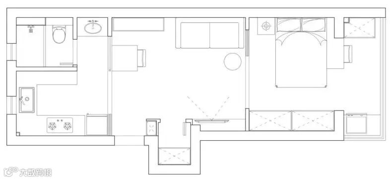
今天要给大家分享的是一套46㎡简约风小户型公寓装修案例,房子虽小,但五脏俱全。在简洁的的基础上,设计师也加入了不少舒适的软装,来营造出更惬意的居住氛围。
入户玄关处做了到顶的嵌入式鞋柜,然后把鞋柜底部和中间留空,方便平时的使用。另一侧做了黑框的玻璃门,很好地把厨房和客餐厅、玄关分开。
客厅沙发背景墙留白,搭配几块隔板,用来摆放书籍和装饰品。
粉色的沙发和床相互呼应,迷你的边几代替茶几让通行更加方便。
客厅电视背景墙做了嵌入式的收纳设计,各种书籍给这个空间带来了一些文艺感。
卧室和客厅之间也用黑框玻璃推拉门作为隔断,卧室的床尾做衣帽间的设计,搭配布帘显得更简洁。
卧室的床头背景墙是刷成了小清新的颜色,木质的床加上金属质感的吊灯和粉色的床品,整个卧室空间给人一种优雅、浪漫的感觉。
阳台在卧室一侧,以木质吧台作为隔断。地面以黑白灰三色六边砖粘贴,墙面一个百叶门的衣柜,搭配蓝色窗帘,带来一个文艺素雅的氛围。
阳台的另一侧则是洗衣机柜,把这个空间做成晾晒洗衣的空间,也是实用而轻松。同时加上绿植的摆设,让阳台更加有绿意,充满活力。
餐客厅一体化设计,简约的原木风餐桌搭配格纹桌布,带来自然清新的味道。
在餐厅内摆放斗柜和隔板,让小空间多出一些储物空间。
U字形的橱柜布局方案搭配隔板和吊柜的设计,让厨房拥有不少的储物空间,白与木的结合也显得更为轻松、舒适。
卫生间把洗手台外移,底部不做柜门用帘子代替,悬空的款式也方便打扫底部卫生死角,墙面做上储物柜,方便平时使用。
卫生间内部墙面铺贴与厨房同款的黑缝小白墙砖搭配水泥地砖,采用浴帘来分隔淋浴区和马桶,既节省了空间同时也保证了马桶在洗澡时不会被水溅到。马桶上方的空间也可以用来摆放一些零碎物品和绿植等。
内容均来源于网络, 版权归原作者所有如有侵权请立即与我们联系,我们将及时删除处理
— END —
••••
勾搭小编
••••

••••
新公寓人
••••
长按下图 > 识别图中二维码 > 关注/置顶
︾

(︶ε.︶メ)
新公寓人- 租住生活产业互动传媒;
我们创建于'租购并举'元年的2017年,通过行业动态、访谈、培训、线下活动、产业金服、供应链、快装等产业链服务,专注为住房/商办租赁行业上下游搭建产业链互动媒体平台,
欢迎关注我们,成为新公寓人!
﹋﹋﹋﹋﹋﹋﹋﹋﹋﹋﹋﹋﹋﹋﹋﹋﹋﹋﹋﹋﹋﹋﹋