
一、电力电缆路径走向图的概述
电力电缆路径图是描述电缆敷设、安装、连接、走向的具体布置及工艺要求的简图,由电缆敷设平面图、电缆排列剖面图组成,表示方法与电气工程的土建结构图相同。电缆路径图标出了电缆的走向、起点至终点的具体位置,一般用电缆路径走向的平面图表示,必要时附上路径断面图进行补充说明。
二、电力电缆路径图的识读与绘制基础
1. 电力电缆路径图的识读
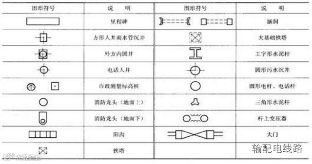
1) 根据GB/T 4728—2006 国家标准选用电力电缆线路常用管线图形符号来表示。
表1 电力电缆线路常用管线图形符号

2) 电力电缆路径图的识读
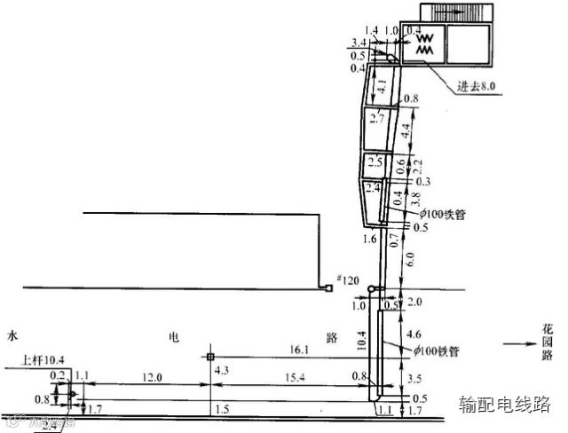
如图1所示,为电缆直埋地敷设平面图。
它比较概略地标出了设计比例、坐标指向,分清道路名称及走向、建筑标志物、重要 地理水平标高等电缆敷设的环境状况,标明了电缆线路的长度、上杆位置与架空线连接点及电缆走向、敷设方法、埋设深度、电缆排列及一般敷设要求的说明等。
由图可以看出:
a. 电缆的走向
从路北侧架空线路电杆引下(图示右上方),穿过道路沿路南侧敷设,到街道路口转向南侧,沿街道道路东侧敷设,穿过大街后进入终点。(按规范要求在穿过道路的位置时,应加混凝土管保护)。

图 1 电缆直埋地敷设平面图
b. 电缆的长度:
电缆全长包括在电缆两端实际距离和电缆中间接头处必须预留的松弛长度,终端接头处的松弛长度分别为2.05m和l.0m,总共约136.9m。
c. 电缆敷设方法:
此电缆共有两个终端接头和一个中间接头,电缆在两个终端头处和中间接头(图中标有1号的位置),电缆沿道路一侧敷设时距路边为0.6m,有三个较大的转弯,两次穿越街道。电缆穿越街道时采用直径为120mm的混凝土管保护,保护管外充填满砂土,其余地段直埋地下,在电缆上方加盖用砖铺设的盖板,尺寸大时选用混凝土盖板,如图右下角电缆敷设断面图A—A和B-B所示。
d. 有关电缆头制作、电缆安装工艺等要求,另外选用电缆接头的安装工艺样图表示说明。
三、电力电缆路径图的现场测绘方法和要求
电力电缆线路路径图是在电缆敷设后,在施工现场对电缆线路位置、走向、路径等进行实地测量、现场测绘而成的。
1. 现场定位与测量
1) 现场定位与测量,一般可依据城市规划测绘院提供的地理标志为基准定位依据,如河流、道路(名称)、走向、建筑标志物、重要地理水平标高等,进行二维坐标确定和测量推算。
2) 在测量电缆中心线到固定标志物的直线距离,作为电缆线路定位的依据。
3) 在城市道路、建筑群等复杂的地理环境中,如进行电力电缆非开挖敷设,可利用GPS定位仪给定的三维坐标信息和非开挖轨迹数据来确定电缆敷设路经与走向的定位和测距。
2. 现场测绘要求
1) 直埋电缆敷设的现场测绘图,必须在覆土前测绘。应沿着电缆线路路径走向逐段测绘, 并精确计算电缆线路累计总长度。
2) 要认定并记录电缆敷设地段的方位、地形和路名。标明绘制出电缆线路走向,路段的道 路边线和各种可参照的固定性标志物,如道路两侧建筑物边线、房角、路界石、测标等。
3) 要正确了解电缆敷设的地理状况、周边环境、埋设深度和其他管线的敷设,平行、交叉、重叠等相互影响因素。
4) 电缆路径走向弯曲部分,分别测量出直轴和横轴的距离,并沿着电缆测量出弯曲部分的 长度,一并标注在图上。
5) 电缆线路尺寸的应采用国际标准计量单位,“米”,“厘米”,“毫米”。并取小数点后一位, 第二位即四舍五入进行保留,保证测绘与定位的精确。
6) 并记录电缆的电压等级、型号、截面、制造厂等资料。
3. 正确选定测绘图的比例:一般为1:500。根据电缆敷设现场的实际需要,地下管线密集处可取1:100,管线稀少地段可取1:1000。
4. 为了简化电缆路径走向,一般选用城市道路规划和建筑设计规范的图形符号。如表2所示,可供参考。
表2 常用道路建筑图形符号

四、现场测量与绘制电缆路径图的基本步骤:
电力电缆路径图绘制是在现场测绘草图的基础上,精确地标出了绘制比例、坐标指向,道路名称及走向、建筑标志物、水平标高等电缆敷设竣工的环境状况,明确了电缆线路的走向、长度,上下杆位置和高度,穿越街道时采用的铁管敷设保护,敷设方法、道路管线长度、与架空线连接点位置等,并以电力电缆线路竣工图来表示。
绘制电缆路径图的基本步骤如下:
1. 手工绘制电缆线路走向、地理位置图,是用徒手绘成的无比例的原始草图。根据电缆敷 设施工现场,电缆路径、走向绘制而成的,具有现场实际测绘的真实性和准确性。
2. 应将现场测绘草图誊清。也可用绘图工具,按一定比例绘制,在现场及时进行校核,确 保绘制准确完整和数据精确。
3. 电缆原始测绘草图的样稿应按电压等级和地区分类装订成册,长期妥善保管,以便查考、复核与校对。
4. 根据现场测绘的要求,设定绘制比例:市区1:500,郊区1:1000。
5. 必须按电气工程制图的图线、图标规定、正确的画法、尺寸标注和文字符号等规范要求来绘制。并应符合电力电缆的GB/T 4728--2006国家标准。
6. 参照电缆设计的规范,依据城市规划测绘院的给出的道路地形,道路标高,正确标注电缆线路方位、走向、敷设深度、弯曲弧度与地理指(北)向,保证现场测绘与电缆路径走向绘制的正确性。
7. 应准确标注电缆各段长度和累计总长。标注各弯曲部分长度,进入变电站和上下电杆长度及电缆线路路径的地段、位置的标记。
8. 电缆路径图的走向绘制时,纵向截面图例应采用统一专用符号,以表示电缆终端、分支箱、电缆沟、电缆排管和工井、电缆隧道和桥架箱梁等。
9. 电力电缆穿越过道路的抗压护导管时,应注明管材、孔径和埋设深度。
10. 排管敷设应附上纵向断面图,并注明排管孔别编号。
11. 电缆与地下同一层面的其他管线平行、交叉或重叠,必须在图上标绘清楚,应加注文字补充说明,如图2所示

图2 电缆与其他管线平行交叉和重叠的标绘图
12. 电缆路径图的规范绘制,也可以采用计算机CAD软件绘制标准的电缆路径走向图,并以硬盘形式存档长期保存。
五、列出部分规范绘制电缆的路径、走向及竣工图示,给予识读学习和绘制的参照。
1) 某地区电缆路径(竣工)图-------电缆工程排管敷设方式示意

图3 某地区电缆路径(竣工)图
2) 地区电缆路径(竣工)图-------电缆工程排管、沟道、直埋敷设方式示意

图 4 某地区电缆路径(竣工)图
(3) 图 5为通过现场测量,精确绘制而成的电缆路径竣工图。

图 5 某电力电缆线路工程竣工平面图
----本文经输配电线路公众号授权转载----

道亨时代公众号主要服务于电力行业从业者,愿景为大家分享相关技术,部分作品或内容来自或参考相关文章,如涉及版权问题,请联系我们及时处理,由此带来的不便敬请谅解!
同时感谢公众号合作伙伴的鼎力支持!

道亨时代微信公众号:BJDHSDKJ
投稿和联系邮箱:25458091@qq.com

道亨时代&恒华科技 出色源自专业

